Hus 1 ( Vita huset):
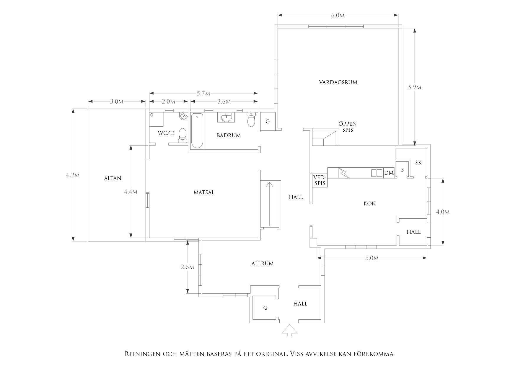
Disponerat över två plan rymmer detta drömhus ett stort kök i en kombination av klassiskt sekelskiftes-stuk och modern utrustning. Charmiga detaljer som mathiss och äldre vedspis som trots sin ålder ser nästan oanvänd ut. Här ryms enkelt ett större matbord med plats för 8 personer. Smakfullt avskärmande glasvägg i originalutförande som ger en öppen och ljus känsla.
En enorm salong med hög takhöjd som rymmer de stora sällskapen ger huset en karaktär som sällan skådas. En eldstad som är en naturlig plats att samla familjen framför under kommande juletider. Med ett golv i vackert fiskbensparkett under tak med bevarad stuckatur har ni en salong värdig nobelmiddagar.
Badrum i bra skick utrustat med alla förnödenheter för den stora familjen finner ni på entréplan. Genomgående ljust tema men med smakfullt utvalda förvaringsmöbler i mörka toner. Badrummet är utöver alla förnödenheter även utrustat med ett badkar som är en fridfull plats att koppla av på efter att man hängt i bastun som är benäget en våning ner.
Stor matsal som rymmer ett matbord för minst 12 personer i direkt anslutning till husets stora altan. En given plats att samla vänner och familj för trevliga middagar. Öppna upp altanen och låt barnen leka på den stora trädgården medans de vuxna med full uppsyn kan njuta av sin middag.
I direkt anslutning till matsalen finner ni även en mindre toalett med alla förnödenheter.
Allrum som även kan göras om till ett sovrum vid behov, rymmer enkelt soffgrupp och TV-möbel eller en dubbelsäng med tillhörande nattduksbord.
Ta trappan en våning upp till övre plan där hemmets sovrum är benägna. Här har ytorna optimerats och fördelats över tre rymliga sovrum samt en WC.
Övervåningens master bedroom är ett sovrum som är som taget ur en inredningstidning. Stort och väldisponerat med en utsikt över grönska. Här ryms enkelt en större dubbelsäng med tillhörande nattduksbord samt kontorshörna. I direkt anslutning till rummet har ni en egen klädkammare.
Sovrum 2 och 3 är båda väldisponerade och rymmer enkelt en större enkelsäng samt skrivbord eller annan möbel. Till båda rummen hör varsin klädkammare som underlättar vardagen.
Hus 2 ( Gula huset ) :
Rymlig tvåplansvilla som i dagsläget är fördelat som två separata bostäder.
Entréplan ( 3,5:a ca 50 kvm )
Ni välkomnas in genom huvudingången rätt in i den stora sällskapsytan med en vacker eldstad. I allrummet ryms med enkelhet en soffgrupp samt matbord med plats för 6 personer.
Större sovrum som enkelt rymmer en dubbelsäng med tillhörande möblemang.
Köksvrå som är utrustat med alla förnödenheter.
Mindre sovrum med platsbyggd våningssäng i anslutning till ett mindre rum som kan nyttjas som sovrum. I anslutning till detta rum finns även badrum.
Övre plan (2:a ca 50 kvm )
Väldisponerad och rymlig etta som enkelt kan göras om till en tvåa eller slås samman med nedre plan. Tillhörande balkong samt kök och badrum.
