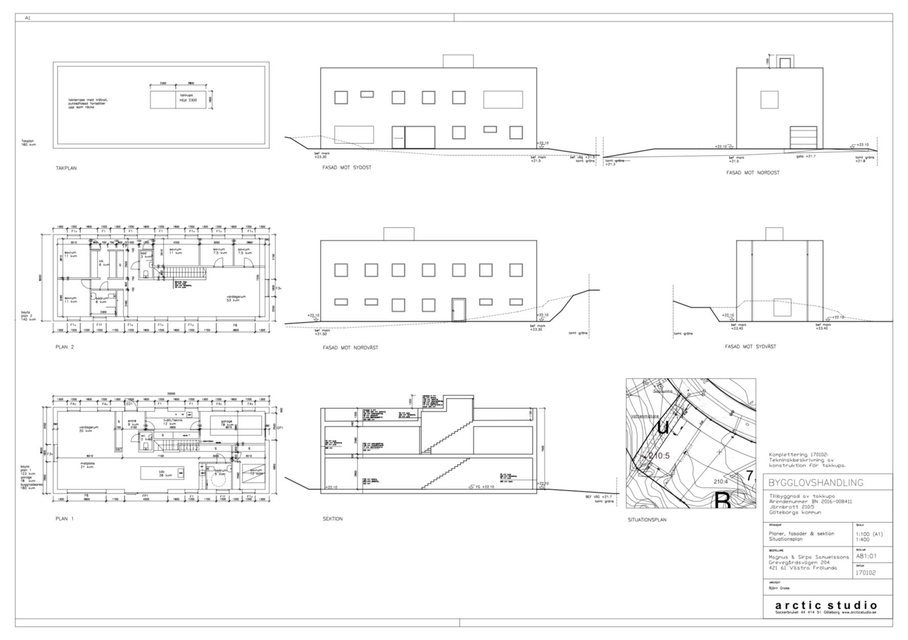
Välkommen till detta arkitektritade hus om totala 320 m² (280 m² boarea+40 m² biarea) i två plan:
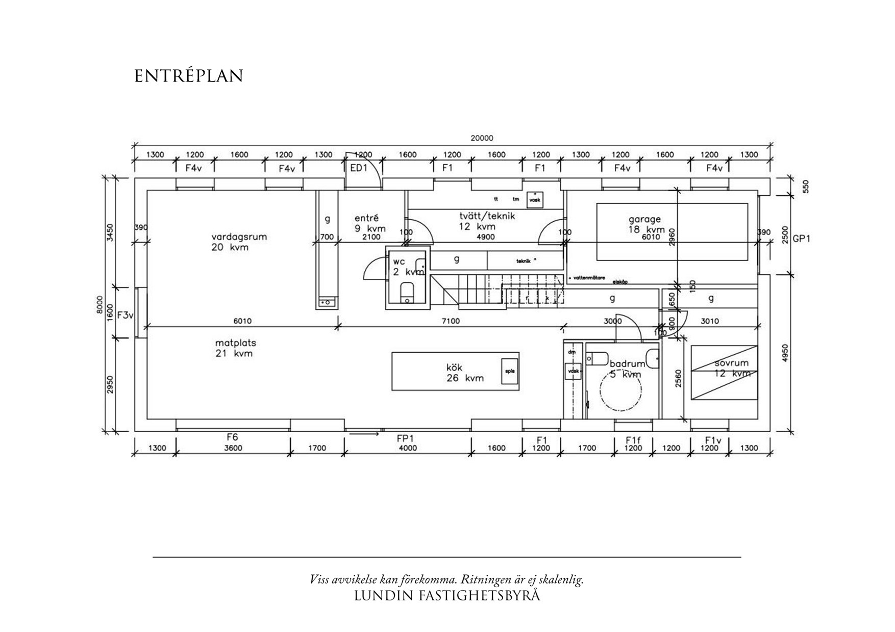
ENTRÈPLAN
Entré med välkomnande utsikt mot husets skjutdörrsparti som leder ut till en av de många uteplatserna. Mycket väl tilltaget rum med gott om förvaringsmöjligheter för både ytterkläder och skor som passar en stor familj. Inbjudande med det varma betonggolvet som möter de kalkstensputsade väggarna. Praktiskt med gäst-wc i anslutning till hallen.
Integrerat kök, matplats och vardagsrum om ca 70 m² med ljusinsläpp i flera väderstreck.
Stilsäkert svart kök med fokus på den gemensamma samlingsplatsen kring den fantastiskt generösa köksön. Integrerade köksskåp samt dubbla kylar och frysar under trappan. Varmluftsugn, micro, induktionshäll, takintegrerad fläkt, dubbla diskmaskiner samt dubbla kökshoar. Allt är noga genomtänkt för hur man som familj bäst nyttjar kökets yta. Arbetsbänk i björk utan skarv utgör kökets mittpunkt. Avsikten är att skapa en plats för att göra matlagningen och allt som hör därtill enkelt, roligt och socialt.
Direkt åtkomst till uteplatsen som sträcker sig som ett U längs tre av de fyra fasaderna. Perfekt frukostställe direkt utanför det stora fönsterpartiet med skjutdörr från Velfac. Skogen och berget på baksidan möter träaltanen. En liten damm med porlande vatten speglar sig i det enorma fönstret som osynligt livar med den svarta putsade fasaden.
Den naturliga matplatsen inomhus är placerad invid det stora fönstret och här finns det möjlighet för ett sällskap om minst 10 personer att äta middag. Alla fönster är inramade med vacker björkplywood som också återfinns i husets alla innertak. Mjukt material bryter av mot den putsade innerväggen och det vaxade betonggolvet.
Vardagsrummet är mer privat med ett fönster mot berget samt två högt placerade fönster mot husets entrésida. Plats för soffor, tv-möbel och övrigt möblemang. Integrerad belysning i fönsternischens ovankant är mycket stämningshöjande kvällstid.
Förbi köket finner man ett sovrum som idag används som master bedroom. Gott om plats för kläder i med skjutdörrsgarderober. I anslutning till detta rum finns ett badrum med dusch, wc, kommod och handfat.
Väl tilltagen tvättstuga finns även på entréplan. Lång arbetsbänk ovan tvättmaskin av modell Electrolux Ultra Care A Class Eco, 9 kg samt torktumlare, även den från Electrolux, Delicate Care. Praktiskt med stilrent klinkergolv och även här vackra fönstersmygar och tak i björkplywood som bryter av och skapar en mjukhet i rummet. Gott om förvaringsutrymme tack vare väggfast elfasystem med hyllor upp till tak. Invändig utgång till garage är via tvättstugan.
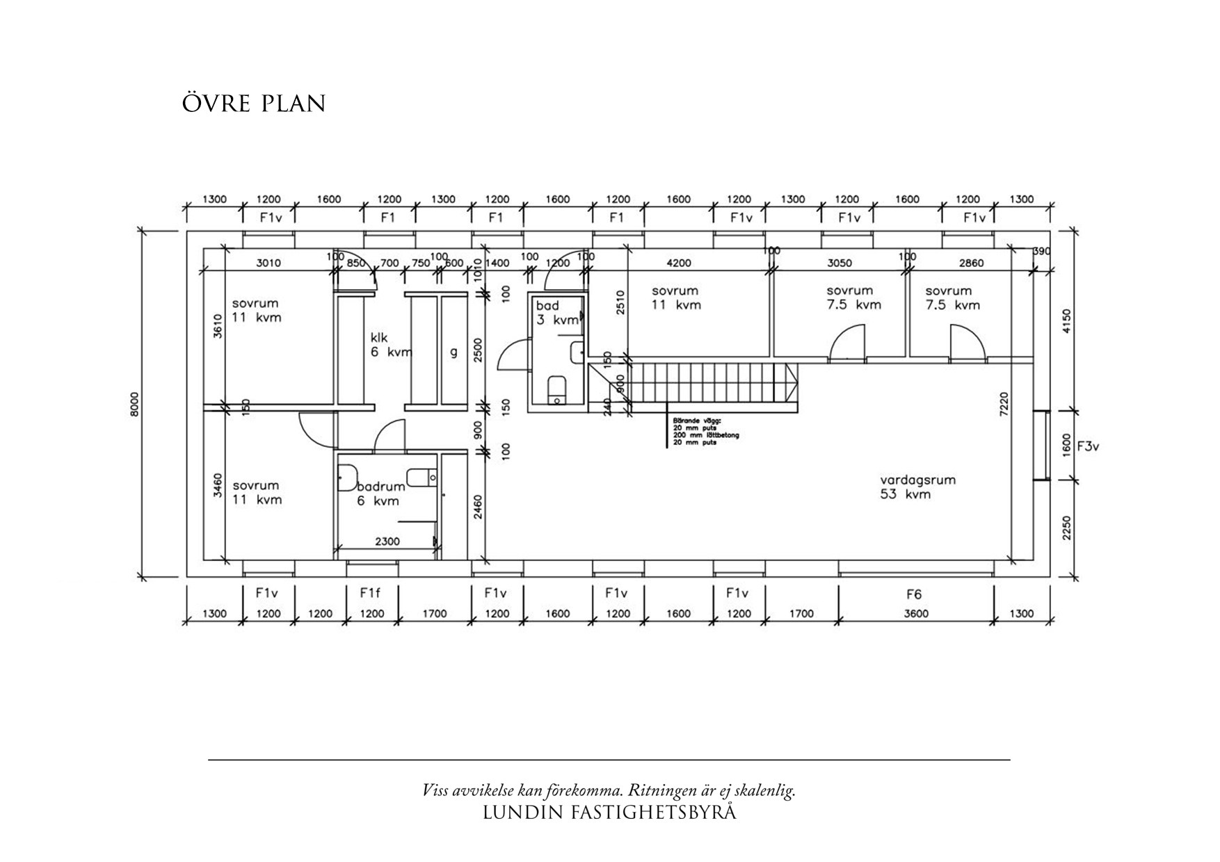
VÅNING TVÅ
Den stilrena trappan i björk leder upp till husets andra sociala sällskapsrum. Här skapar man, leker och umgås. Rummet är stort och pampigt med sina fönsterplaceringar. Detta våningsplan är tillägnat familjen och eftersom huset har hela fem sovrum här får den stora familjen plats. Även gäster kan stanna över. Alla sovrum inrymmer säng och tillhörande möblemang, vissa även dubbelsäng och större förvaringsmöbler. Gemensamt för alla är den harmoniska färgskalan med de putsade väggarna, de öppningsbara fönstren från Velfac samt betonggolv med komfortabel golvvärme. På detta våningsplan finns även här två helkaklade badrum med takdusch och fast glasvägg, kommod med handfat samt vägghängd wc. Alla husets badrum består av grå klinkerplattor a 60x60.
Klädförvaring i både garderober samt klädkammare.
TAKTERRASS
Stor takterrass med trädäck som erbjuder den där perfekt platsen att hänga på en varm sommardag. Här har man ett eget litet paradis utan insyn med sol från morgon till kväll med utsikt mot skogen. Tack vara de generösa (ca) 160 kvadraten får man plats med både långbord, loungehörna och till och med ett utekök. El, vatten och avlopp är uppdraget och tack vare att takbjälklagets bärighet har förstärkts skall här finnas möjlighet till att placera en mindre pool eller spabad. Takterrassen är den perfekta platsen för varma sommarkvällar.
