INTERIÖR: Lägenheten är mycket hemtrevlig med egen entré och det första man möts av är en framsida med gräsmatta, planteringar och altan i sydöstläge. Här kan man med fördel spendera långa helgfrukostar med solen som värmer en skön sommardag. Vill man avsluta dagen med grill och middag så är solen kvar här fram till sen eftermiddag. Underbar plats som förgyller vardagen!
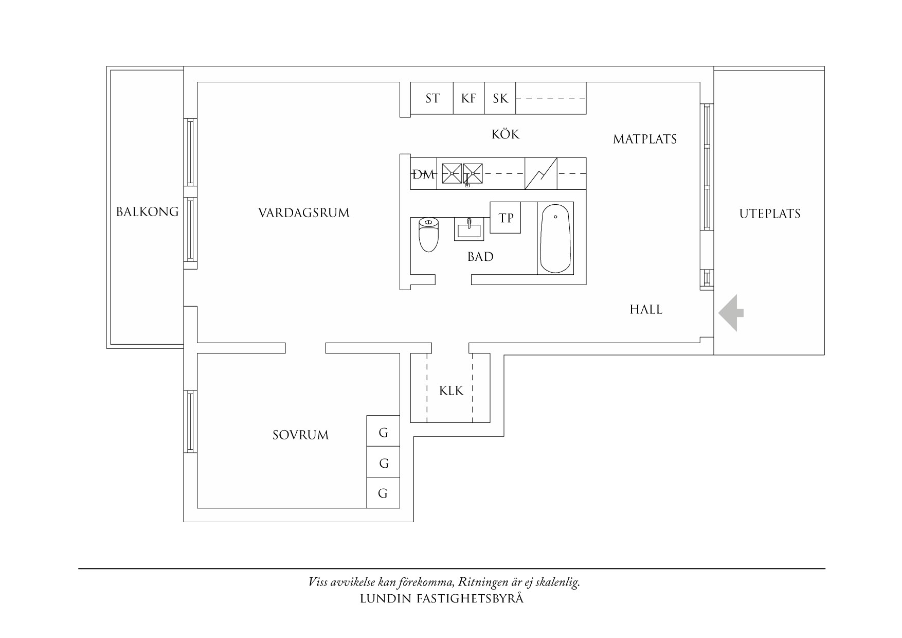
Innanför ytterdörren kommer man in i en hall med avhängningsmöjligheter direkt till höger. Hallen är ljus tack vare extra fönster bredvid entrédörren och ljusgenomsläpp från vardagsrummet. Möblerbar hall med plats för sideboard och goda förvaringsmöjligheter i en inredd klädkammare längre fram. Idag används klädkammaren som ett litet sovrum så det finns gott om plats för förvaring om så önskas. Vitlaserad furuparkett och ljust tapetserade väggar från Engblad & Co som följer med in till vardagsrummet.
Ljust vardagsrum som präglas av ett generöst fönsterparti med insynsskyddat läge. Härifrån nås även lägenhetens rymliga balkong som har utsikt över de grönskande omgivningarna. Vardagsrummet kan inredas med en soffhörna och matsalsbord. Vitlaserad furuparkett och tapetserade väggar med blommotiv i en dov grå färgskala, samma fina som återfinns i hallen.
I direkt anslutning till vardagsrummet finns ett välplanerat kök med gott om förvaringsmöjligheter och generösa arbetsytor. Köket har vita släta köksluckor, bänkytor i svart laminat, diskbänk i rostfritt och stänkskydd i vitt kakel. Utrustningen består av spishäll, ugn, fläkt, diskmaskin, samt kyl med frys. Furuparkett och fondvägg som går i grått från Morris och ger karaktär till köket. Ett litet fönsterparti mot sovrummet bidrar med ljusinsläpp utöver de stora fönsterpartierna i vardagsrummet.
I sovrummet ryms en dubbelsäng med tillhörande sängbord och en arbetshörna. Goda förvaringsmöjligheter finns i form av en måttanpassad skjutdörrsgarderob från MIRRO. Vitlaserad furuparkett och ljusgråa/vita tapetserade väggar. Ett stort fönster bidrar med ljusinsläpp.
Klädkammaren som man når från hallen nyttjas idag som ett extra sovrum, det är ett oerhört mysig plats för vila. Det finns ett litet fönster mot det större sovrummet i ovankant som släpper in ljus och passar utmärkt som ett litet sovrum. Önskar man så går det att använda som klädkammare och man kan dessutom sätta in en dörr från det större sovrummet ifall man önskar direktaccess därifrån. Idag har klädkammaren klätts i svart bröstpanel och blommig tapet från Boråstapeter upptill.
Snyggt och mycket stilrent badrum som renoverades under 2018. Ni möts av grått hexagonklinker och vita helkaklade väggar. Badrummet har behaglig golvvärme och inredning från Hafa. Inredningen består av wc, handfatskommod, spegelskåp, väggskåp, handdukstork samt badkar med avskiljande glasvägg. Här finns även en tvättpelare med tvättmaskin och torktumlare för extra vardagskomfort. I taket sitter infällda spotlights. Badrummet är renoverat av fackmän och garantier finns.
Den här lägenheten måste upplevas på plats - varmt välkommen på visning!
