Rumsbeskrivning: De 69,8 kvm är disponerade enligt följande:
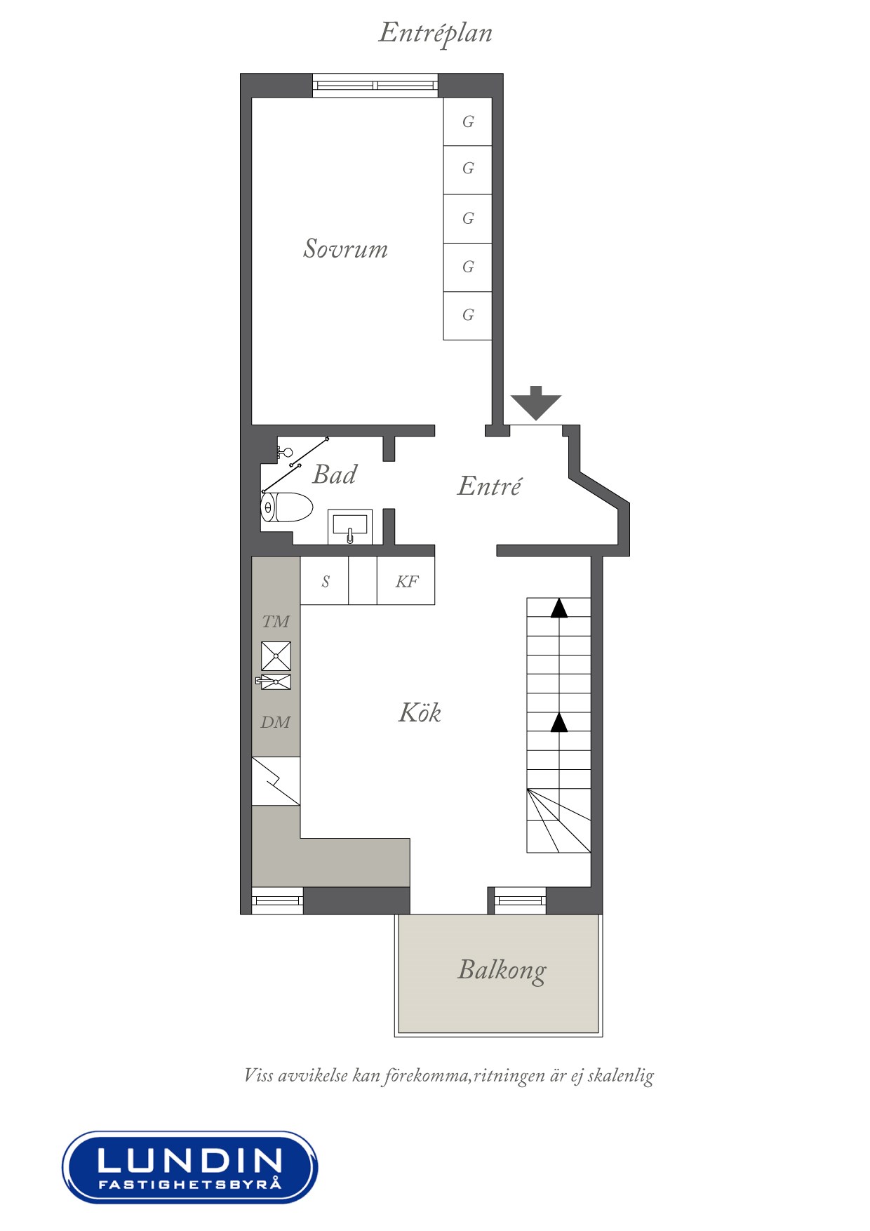
Entréplan
Innanför ytterdörren välkomnas ni av en hall med plats för avhängning i en fin nisch och generös takhöjd. Bevarat brädgolv och vitmålade väggar med en ljusblå mönstrad fondtapet.
Härligt kök med fint ljusinsläpp från flera fönsterpartier samt utgång till en stor balkong med högt och fritt läge. På balkongen kan man njuta av solens strålar och vidsträckt utsikt över takåsar och lugna omgivningar. Balkongen har även en markis när skuggan känns lockande. Köket har köksinredning i vitt, bänkytor av massiv ek och stänkskydd i härdat glas med svartvit trädmönstrad tapet bakom. Generösa arbetsytor och riktigt bra förvaringsmöjligheter med dubbla överskåp som utnyttjar takhöjden optimalt. Köket är utrustat med hällspis med ugn (Gorenje, installerad 2009), fläkt, diskmaskin (Siemens, installerad 2009), side-by-side kyl med frys med vatten- och ismaskin (LG, installerad 2010) samt tvättmaskin (Kenny, installerad 2014). Bevarat brädgolv och vitmålade väggar med en fondtapet. Från köket leder en trappa upp till lägenhetens andra etage som är beläget på vindsplan.
Sovrummet på entréplan har ett lugnt läge med fönster mot den grönskande innergården. Här kan man inreda med dubbelsäng med tillhörande nattduksbord samt skrivbord. Riktigt bra förvaringsmöjligheter i en garderobsvägg med fem garderober. Bevarat brädgolv och vitmålade väggar med en fin fondvägg i vit liggande träpanel.
Snyggt badrum som renoverades 2012 av fackmän (garantier finns). Mörkgrått klinkergolv och vita helkaklade väggar med fondvägg i grå natursten. Inredningen består av wc, handfat med kommod, spegel, badrumsskåp samt duschhörna med vikbara glasdörrar. I taket sitter infällda spotlights.
Vindsplan
På övre plan välkomnas ni av ett härligt vardagsrum som präglas av fint ljusinsläpp från en generös takkupa och karaktäristiskt snedtak. Här kan man inreda med soffa och tv-möbel. Grått laminatgolv och vitmålade väggar med en randig fondtapet i ljusgrått och vitt.
Sovrummet passar perfekt som barnrum med plats för både säng, skötbord, byrå och lekhörna. Grått laminatgolv och vitmålade väggar med en ljusgrå mönstrad tapet. Fint ljusinsläpp från en takkupa.
På övre plan finns även ett arbetsrum som kan inredas med skrivbord och förvaring i form av garderober och byrå. Grått laminatgolv och vitmålade väggar.

