Välkommen till

Beryllgatan 43

Beryllgatan 43
2:a Beryllgatan

Totalrenoverad med mycket hög standard

Välkommen till denna smakfulla bostad vilken just genomgått omsorgsfulla renoveringar i klanderfritt utförande! Ljust genomgångsläge och totalrenoverat kök från Kvik med stilren vit köksinredning och ordentlig matplats. Vitvaror från SIEMENS och givetvis utrustat med diskmaskin!
Stambytt rymligt badrum vilket håller mycket hög klass med kvalitativa ytskikt, klassiskt snyggt i grått och vitt och fullutrustat med dusch, golvvärme, handdukstork, tvättmaskin samt torktumlare!
Rofyllt sovrum med generös förvaring tack vare flertalet garderober. Bostaden har genomgående ljusa ytskikt och enhetliga golv vilket gör det lätt att inreda och trivas, dessutom finns infällda högtalare i taket i vardagsrum, sovrum och badrum! Snygga spotlights i hela lägenheten förhöjer yttrligare känslan av kvalitet. Härligt inbjudande balkong med utsikt mot innergården med sol från morgon till eftermiddag!
Här bor man lugnt i en trygg HSB-förening med närhet till gröna strövområden, kommunikationer samt salta bad. P-plats ingår i avgiften. Fantastiskt fin lägenhet som måste upplevas på plats!

Läs hela beskrivningen

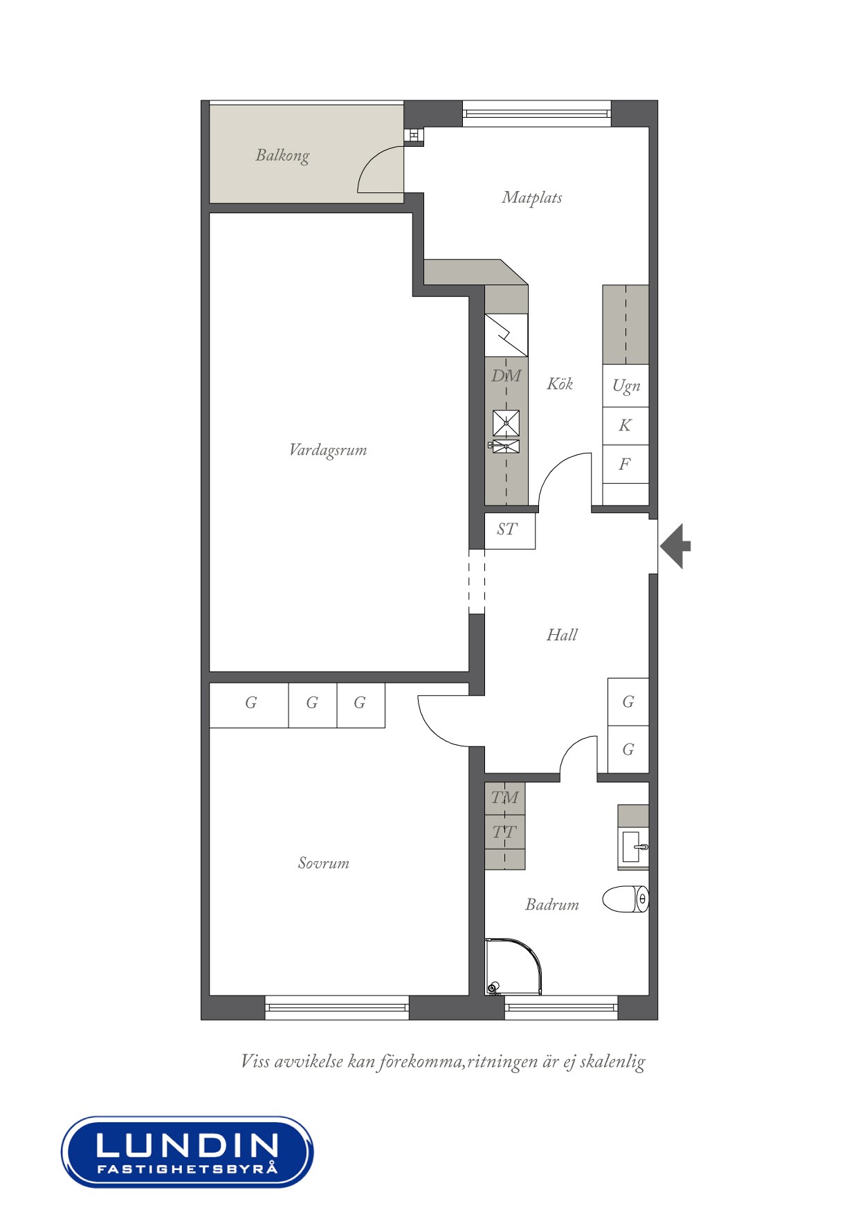
Planritning

Beskrivning

Högst upp i huset finner man den här moderna lägenheten.
Hall med grafitgrå klinker vilken löper vidare in i köket och vita väggar. I hallen finns garderober samt ett praktiskt städskåp.
Till höger ligger det nyrenoverade köket. Högsta klass på maskinell utrustning med vitvaror från SIEMENS, infälld diskmaskin och snygg mekanisk fläkt från Franke. Fullhöjds kyl- och frys, induktionshäll, ugn samt platsbyggd micro. Bänkskiva i kompaktlaminat och vita skåp. Tidlöst och snyggt!
Den tidigare passagen till vardagsrummet är nu en vägg med ett runt fönster i vilket möjliggör ett smartare möblemang i både kök och vardagsrum. Via köket når man ut till den härliga balkongen i bästa tänkbara läge med utsikt mot den gröna innergården.
Vardagsrummet är rymligt och lättmöblerat med snygg ny ekparkett, spotlights och vita väggar.
I taket sitter infällda högtalare. Vilket det även gör i sovrum och badrum!
Badrummet är totalrenoverat i samband med stambytet. Här finns tvättmaskin och torktumlare från SIEMENS, mycket snygg badrumsmöbel, dusch bakom vikbara väggar, fönster samt handdukstork. Dessutom utrustat med golvvärme för maximal komfort! Snygg grå klinker på golvet och vita väggar.
Sovrummet ligger insynsskyddat och har utrymme för dubbelsäng och annan möbel. Garderober utmed ena väggen innebär förstklassig förvaring.
Ett hem av riktigt hög standard, välkommen att trivas!

Beskrivning planlösning
Ekonomi
Bostad
Förening
Området
Tynnered
I Tynnered bor man nära skog, hav och storstad. Bebyggelsen består främst av flerfamiljshus men här finns även villa- och radhusområden. Flerfamiljshusens rymliga innergårdar med skyddande trädkronor, prunkande rabatter och stora gräsytor skapar goda möjligheter till lek och avkoppling. Mellan kvarteren finns gott om promenad- och cykelvägar.

För Tynneredsbon ligger havet och naturen på nära avstånd. Med cykel tar man sig lätt ner till Fiskebäcksbadet för salta bad eller till Sjöbacka fritidsområde för härliga promenader bland sjöbodar och vacker natur.

Matinköpen sker smidigt på Ica Fiskebäck alldeles i närheten och till Frölunda Torgs köpcentrum tar man sig snabbt och enkelt. Här finns ett stort utbud av affärer samt kulturhus, simhall och träningsställen. Göteborgs centrum ligger på bara 15 minuters avstånd med bil, buss eller spårvagn. Frölunda Torg är knutpunkt för ett stort antal buss- och spårvagnslinjer. Andra populära shoppingcentrum är Sisjön och köpcenter 421 som bara ligger några minuters bilfärd bort.

För barnfamiljer finns ett stort utbud av både skolor och föreningsverksamheter. Även vårdcentral, BVC och apotek finns på nära avstånd.

Möjligheterna till ett aktivt liv är många. I området finns gott om motionsslingor och bollplaner. Åkeredsvallen, Välen och Ruddalens Idrottscentrum ligger alla på behändigt avstånd.

Tynnered inbjuder till ett trivsamt boende nära skog, hav och storstadsliv.
Här finns alla förutsättningar att trivas!
Karta
Kartan laddas