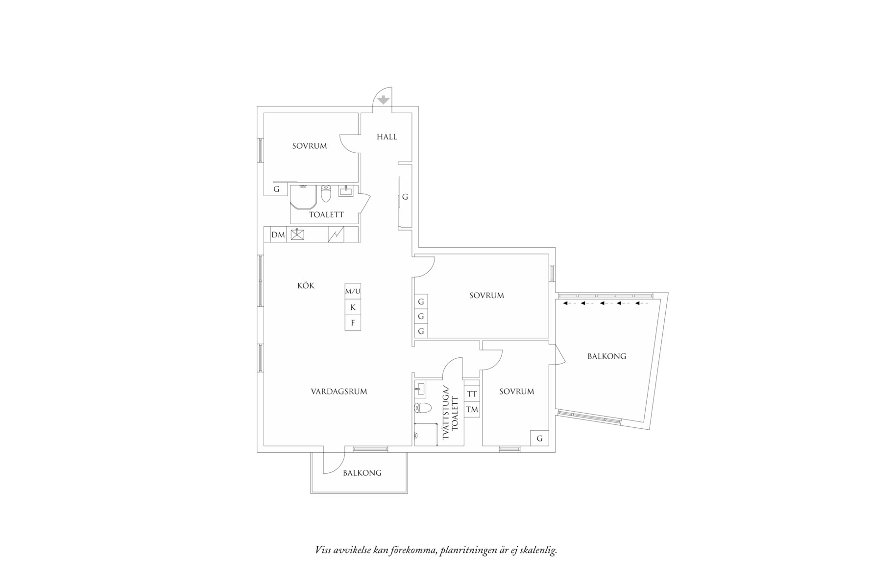
Bostaden disponeras enligt följande:
Välkomnande entréhall med plats för avhängning. Perfekt med den stora Elfa-skjutgarderoben med spegeldörrar som håller ordning på ytterkläder och skor. Entrégolvet har ljusa klinkerplattor men från hallen och i lägenhetens övriga rum, ligger ett enhetligt lackat ekparkettgolv. Fönsterbänkskivor i sten samt ekgolvlister ger också en fin karaktär till bostaden.
Rakt fram från hallen ligger det stora ljusa vardagsrummet med fönster i två väderstreck. Insynsskyddat läge med utsikt som sträcker sig både över de fina villakvarteren och ända upp mot vattentornet. Här är det lätt att möblera med såväl soffgrupp som matsalsplats och plats finns för både tv samt bibliotek och läshörna. Utgång till balkongen i soligt västerläge.
Vardagsrummet ligger i öppen planlösning med köket. Köket är i modernt klassiskt utförande och denna lägenhet är extra utrustad med en köksö framför fönsterpartiet. Detta blir en naturlig samlingspunkt för ägarna och dess gäster och häri inryms förutom massor av förvaring, även en vinkyl. Köksinredningen kommer från Myresjökök och är i vitt utförande med rostfria beslag. Laminatbänkskivan i grått matchar väl mot det överliggande svarta kaklet. Vitvarorna är från Husqvarna och består av kyl och frys i fullhöjd. Induktionshäll , mikro, ugn samt integrerad diskmaskin. Fläkt från Franke.
Bostaden har tre fina sovrum varav de två största nås från hallen samt att de är utrustade med garderober. Gott om plats för dubbelsäng, skrivbord, byråer mm. Det tredje sovrummet används idag som ett barnrum och det ligger i anslutning till uterummet.
Uterummet är ett härligt komplement till bostaden och med sina 17 kvm utgör det en generös lounge med plats för utemöbler. Här trivs man i skyddat läge större delen av året och glasrutorna som vetter åt öster går att öppna upp under årets varmare dagar.
Det största av de två badrummen är utrustat med tvättmaskin och torktumlare. Helkaklat med vitt kakel på väggarna och sandfärgat klinkergolv. Duschhörna med vikbara väggar samt wc, handfat med kommod, spegel med belysning, handdukstork samt spottar i taket. Över tvättavdelningen finns en praktisk arbetsbänk och däröver hänger förvaringsskåp. Fönstret ger ett naturligt dagsljusinsläpp.
Det andra badrummet ligger i anslutning till hallen och även detta är utrustat med dusch. Helkaklat med vita väggar samt grått klinkergolv. Takspotbelysning och stilren design. Handfat med kommod samt spegel med belysning. Wc samt handdukstork.
Helt enkelt ett bekvämt och bekymmersfritt boende i en välmående förening, perfekt beläget i centrala Kungsbacka!

