Varmt välkommen till en utsökt bostad med hörnläge, där alla tillval är noggrant utvalda för att få en hög finish med ett elegant resultat.
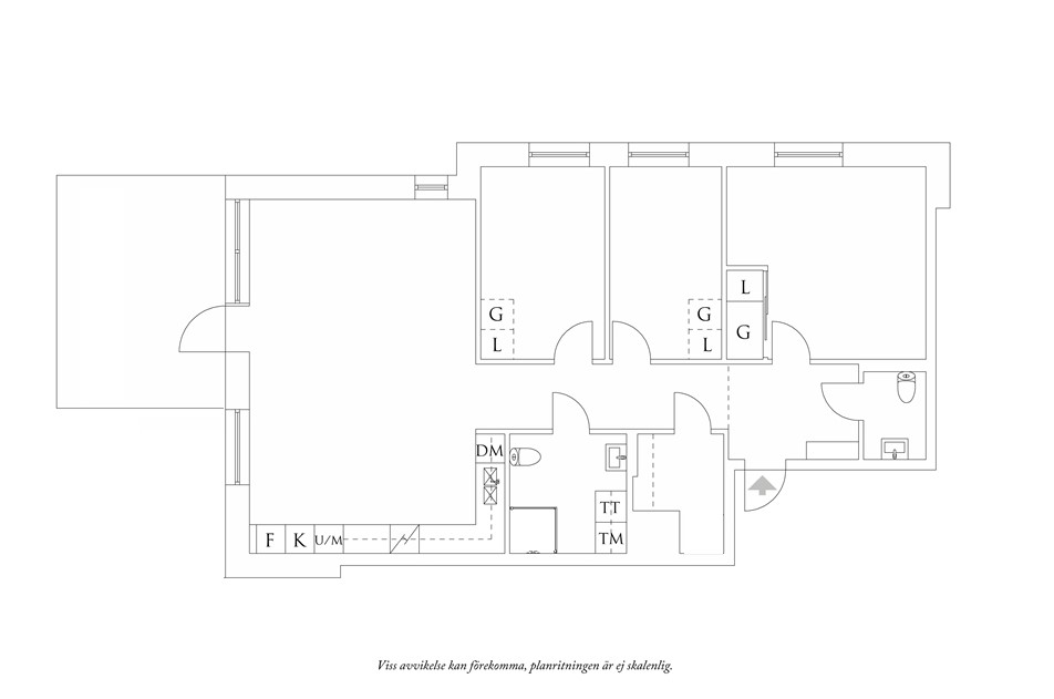
HALL
Spotlight i tak, klinkergolv i mörkare nyans och vita väggar. Här finns plats för avhängning och förvaring i en rymlig klädkammare.
VARDAGSRUM
Här finns plats för soffgrupp med tillhörande möblemang. Öppen planlösning mot köket och den perfekta platsen för långa middagar i goda vänners sällskap. Härifrån nås även bostadens tilltagna balkong med plats för både loungegrupp och matplats. Högresta fönster som bidrar med ljus. Utsikten från vardagsrum och kök är magisk. Se ut till Vinga en fin dag! Ljusspelet från fartygen som lämnar hamnen och beger sig ut på öppet vatten är hisnande.
KÖK
HTH-kök med en exklusiv känsla som går i vitt. Det rymliga köket i L-form ger gott om plats för arbetsutskott förvaring. Köket är utrustat med induktionshäll, integrerad kyl och frys, inbyggd varmluftsugn, inbyggd mikro, diskmaskin samt fläkt. Sittplats för ca 8 personer runt matplatsen. En mörk, mycket vacker och exklusiv stenskiva pryder köket. Öppen planlösning mot vardagsrummet.
SOVRUM 1
Parkettgolv och väggar målade i vitt. Här finns plats för dubbelsäng med tillhörande möblemang samt förvaring i en inbyggd skjutdörrsgarderob från HTH. Perfekt kontorsplats invid fönstret som vetter mot en vacker tall. Harmoniskt rum med hotellfeeling.
SOVRUM 2
Här finns plats för enkelsäng med tillhörande möblemang samt skrivbord. Två garderober pryder rummet.
SOVRUM 3
Används idag som sovrum men fungerar utmärkt som kontor eller liknande. Detta sovrum kunde man också vid nyproduktion välja bort så att sällskapsytan mot vardagsrummet blev större ifall man inte var i behov av det extra rummet. Vackert och avslappnat med vacker vy, fin parkett och väggar målade i vitt. Parketten går under väggen och då väggen är uppsatt i efterhand så är det relativt enkelt att ta ner den för att få större vardagsrum.
BADRUM
Mjuka ljusa färger på klinker och kakel. Badrummet är utrustat med WC, handfat med kommod, spegelskåp med belysning ovan, takdusch, tvättmaskin, torktumlare, handdukstork samt generös arbetsbänk med väggfasta skåp ovan. I taket sitter spotlights. För extra komfort har man även valt till golvvärme här.
WC
Helkaklat. Stor kommod, spegel med belysning och toalett finns här med direktaccess från hallen, väldigt praktiskt och en välkommen detalj som förhöjer kvalitén i lägenheten.
FÖRRÅD
Till bostaden hör ett källarförråd.
ÖVRIGT
Man har valt att utöka antal eluttag, dimbelysning i kök/vardagsrum, mer exklusiva innerdörrar vid nyproduktion. Tack vare hörnläget badar lägenheten i ljus och rymd.
