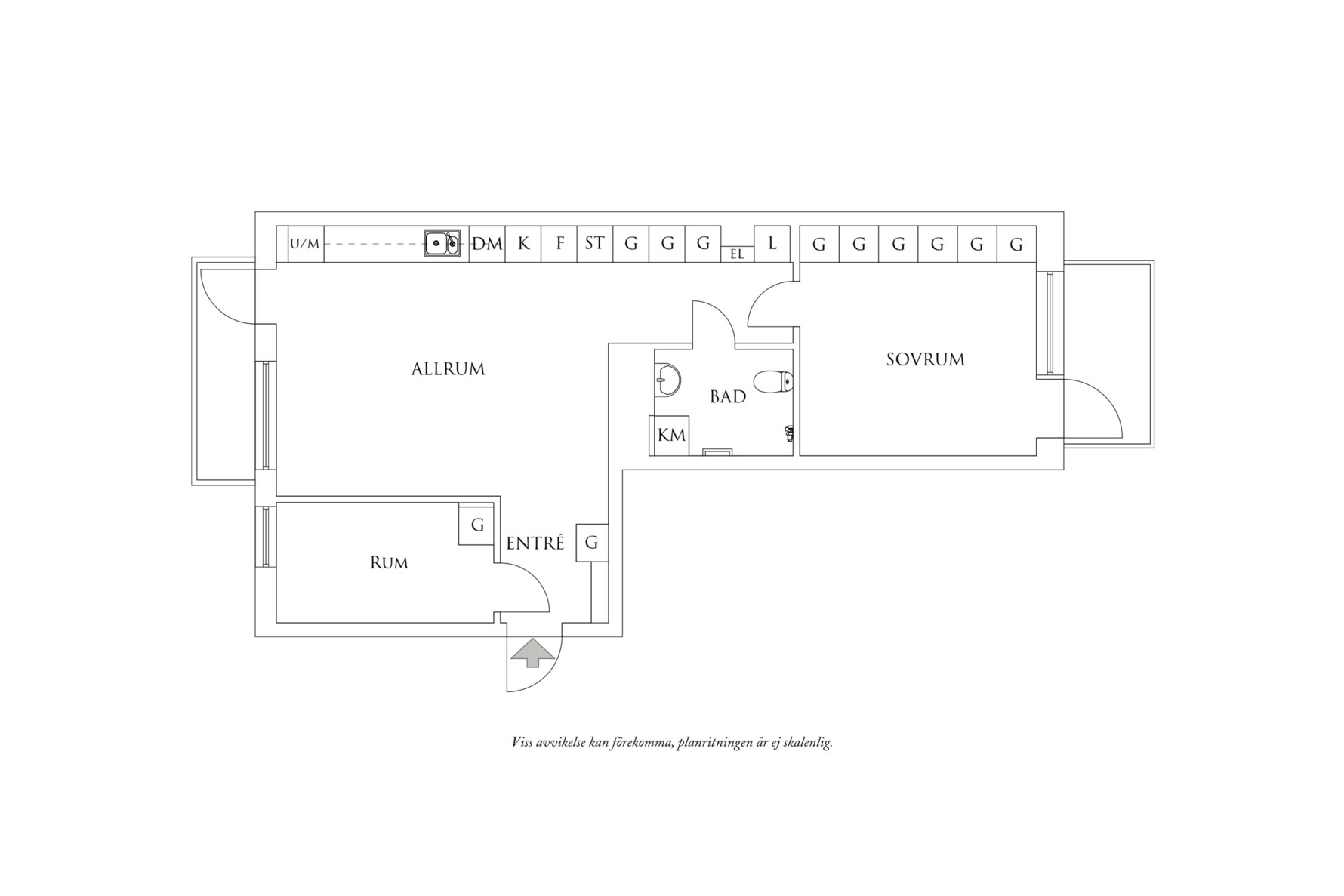
Bostaden disponeras enligt följande:
Inbjudande hall med plats för förvaring tack vare en garderob och utrymme för att hänga av sig ytterkläder och skor.
Mindre sovrum i anslutning till hallen. Passar utmärkt till ett barn eller som kontor. Även gästrum med bäddsoffa kan fungera fint. En garderob finns till förvaring. Väggen mellan detta sovrum och vardagsrummet kombinerat med köket går enkelt att ta ner om man hellre önskar ett större kök/vardagsrum. Se alternativ planlösning.
Härligt kök från Marbodal med öppen planlösning ihop med vardagsrummet. Utrustat med kylskåp och frys i full höjd, inbyggnadsugn, integrerad mikro, diskmaskin och induktionshäll. Samtliga vitvaror från Siemens. Plats för matbord och soffa. Ypperlig förvaring tack vare garderobsvägg som löper mellan köket och in mot sovrummet. Utgång till första balkongen.
Badrum med kaklade väggar och klinkergolv. Stilrena färgval och utrustat med dusch, handfat i kommod, kombinerad tvättmaskin/torktumlare, wc, samt handdukstork.
Generöst sovrum med plats för dubbelsäng och tillhörande möblemang. Garderobsvägg för god förvaring. Utgång till bostadens andra balkong.
Till lägenheten hör ett vindsförråd.
