Radhuset disponeras enligt följande:
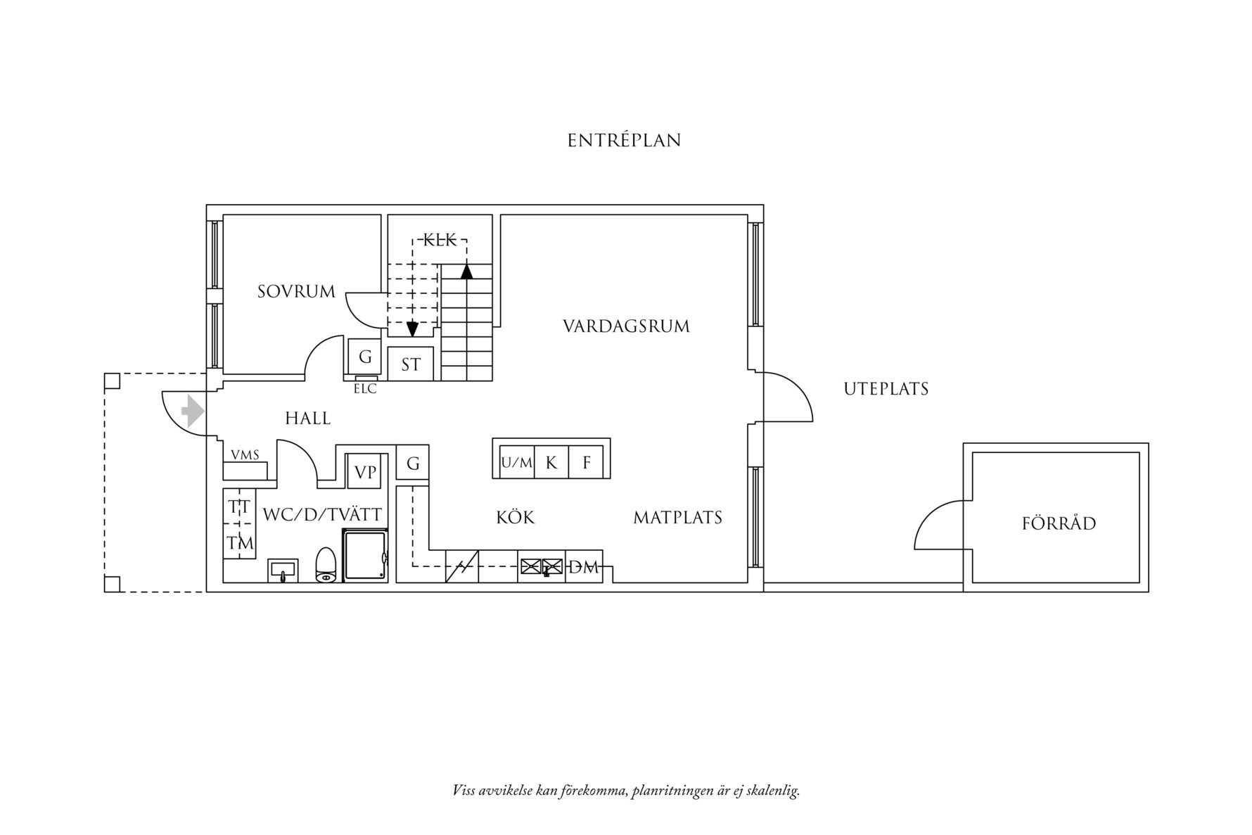
ENTRÉPLAN
Innanför ytterdörren möts man av en hall med plats för fri avhängning. Vid entrén kläs golvet av praktisk klinker men i övrigt är det genomgående trestavsparkett i ek och vitmålade väggar.
Trevliga sällskapsytor i öppet samband med ljusinsläpp från stora fönsterpartier samt utgång till en stor uteplats med altan i västerläge och härligt grönskande naturområde precis utanför. Den skyddade uteplatsen är en mysig oas som kan inredas med både loungemöbler, matplats, grill, solsängar och växter. Från uteplatsen nås även ett förråd. Vardagsrummet kan inredas med soffa och matplats.
Välplanerat arbetskök med generösa förvaringsmöjligheter och bra arbetsytor. Köksinredningen har skandinavisk design med rena linjer. Marbodalkök i serien Arkitekt med ljusgråa släta luckor kombineras med ljusa bänkytor och vitt liggande kakel. Högkvalitativa vitvaror med extra hög energistandard. Den maskinella utrustningen utgörs av induktionshäll, utdragbar fläkt, integrerad diskmaskin, inbyggnadsugn, inbyggnadsmikro samt kyl och frys i fullhöjd.
På entréplan ligger ett av bostadens fyra sovrum. Här finns plats för säng och skrivbord samt goda förvaringsmöjligheter i både garderob och klädkammare.
Badrummet på entréplan är rymligt och har en praktisk tvättsektion. Klassiska materialval med antracitgrå klinker och helkaklade väggar i vitt. Behaglig golvvärme för extra komfort. Inredning från Svedbergs och blandare från Gustavsberg. Inredningen består av wc, handfatskommod, spegelskåp med infällda spotlights, duschhörna med avskiljande glasvägg, tvättmaskin och torktumlare från Siemens med ovanliggande arbetsyta samt förvaringsskåp. Ett fönster bidrar med dagsljus.
ÖVRE PLAN
Via en gedigen trappa i trä nås övre plan som utgörs av ett allrum, tre sovrum, klädkammare samt badrum. Allrummet har utgång till en balkong i österläge med utsikt över omgivningarna. Det största sovrummet har plats för dubbelsäng och garderober medan de två andra har bra storlek med plats för enkelsäng och skrivbord.
Badrummet på övre plan har även det klassiska materialval med antracitgrå klinker och helkaklade väggar i vitt. Behaglig golvvärme för extra komfort. Inredning från Svedbergs och blandare från Gustavsberg. Inredningen består av wc, handfatskommod, spegelskåp med infällda spotlights samt badkar.

