Dokument & Länkar
Lundin Köparregister
Vi hittar din bostad
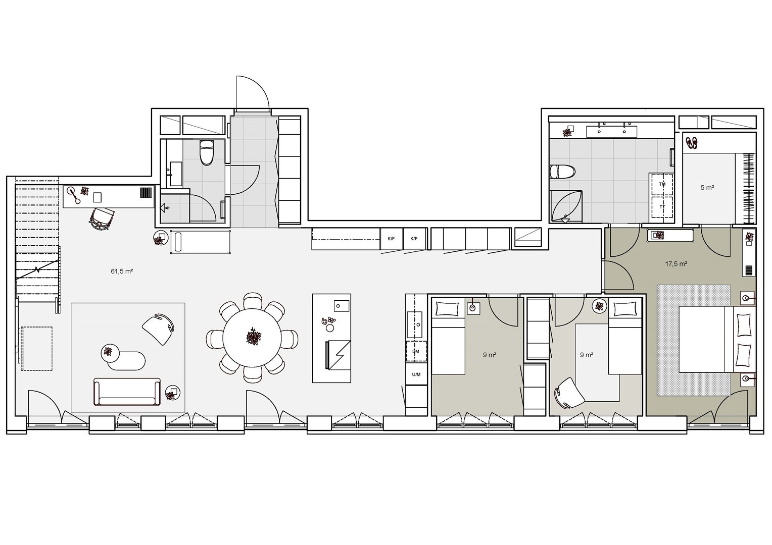
Unik takvåning i etage med fantastiskt ljusinsläpp och enastående vy över takåsarna och älven. Entréplan präglas av generösa sällskapsytor i öppet samband för matlagning och umgänge samlat kring en elegant eldstad. Köket har en stor köksö, utrymme för stort matbord samt generös vardagsrumsdel. Välplanerad privat sovrumsdel med tre sovrum varav det största har egen klädkammare och en en-suite. Det översta etageplanet är ett stort allrum med pentry samt privat takterrass om ca 27,5 kvadratmeter med enastående vy över takåsarna och älven. Våningen har väl utvalda materialval med bland annat platsbyggda snickerier, noga utvalda vitvaror och detaljer som matchar den här kalibern på boende. Detta penthouse är ett hem för dig som letar efter ett stadsboende med något alldeles, alldeles extra!
För mer information om bostaden;
https://www.nordr.com/se/bostadsportal/hitta-din-bostad/ciceron/till-salu/bostadsvaljaren/1-2501
Välkommen att kontakta mäklaren för länk till VR-tour i vår Penthouse!

Med Lundin Nyproduktion får du ett team av dedikerade mäklare som följer dig genom hela processen. Välkommen till din nya bostad.

Med Lundin Nyproduktion får du ett team av dedikerade mäklare som följer dig genom hela processen. Välkommen till din nya bostad.