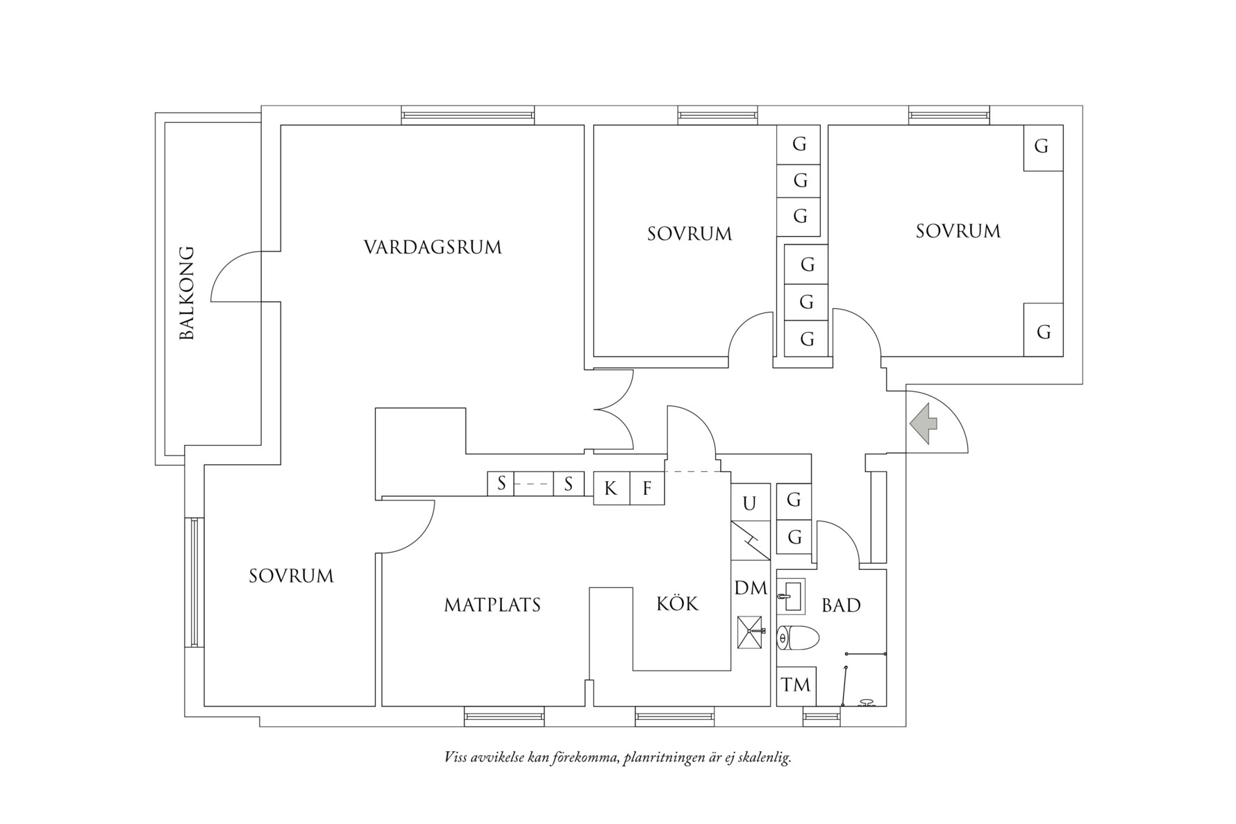
Innanför ytterdörren möts man av en hall som är lägenhetens nav och binder samman rummen. Här finns plats för fri avhängning samt förvaringsmöjligheter i två inbyggda garderober. Golvet kläs av parkett och väggarna är målade i vitt.
Rakt fram från hallen, via de fantastiskt vackra pardörrarna i mönstrat originalglas, ligger vardagsrummet som är bostadens hjärta. Rummet har ett eftertraktat gavelläge med ljusinsläpp från två väderstreck samt utgång till den ovanligt stora balkongen som vetter i bästa syd/västläge. Rummet smyckas av den fungerande öppna spisen med inbyggd vedförvaring. Den tidstypiska fiskbensparketten tillsammans med fönsterbänkar i sten bidrar med fin bevarad charm.
Från vardagsrummet nås ett sovrum som präglas av ett stort fönsterparti med grönska utanför. Här kan man inreda med säng, arbetshörna och garderober. Golvet kläs av fiskbensparkett och väggarna är vita tillsammans med två fondväggar i mintgrönt.
Trivsamt och väl tilltaget kök som nås från två håll. Köket renoverades 2002. Här har man låtit ta ned väggen mellan kök och ett tidigare sovrum för att få ett större kök med utrymme för stora middagssällskap. Köket har ljusgråa ramluckor som kombineras med bänkytor i trä och kakel i himmelsblått och grått. I taket sitter infällda spotlights. Den genomtänkta planeringen erbjuder gott om förvaring och generösa arbetsytor och det finns även ett bevarat serveringsskåp som bidrar med tidstypisk charm. Den maskinella utrustningen består av glaskeramikhäll (2002), fläkt, inbyggnadsugn (2016), mikro (2016) diskmaskin (2018) samt side-by-side kyl med frys (2019). Golvet kläs av trägolv och väggarna är vita. Härligt ljusinsläpp från två stora fönster som vetter mot öster och bidrar med morgonsol.
Lägenhetens största sovrum nås från hallen och här kan man inreda med dubbelsäng samt arbetshörna eller byrå. Goda förvaringsmöjligheter i tre inbyggda garderober med dörrar i trä. Golvet kläs av parkett och väggarna är målade i en mörkgrå ton som ger en ombonad känsla. Fönster i insynsskyddat västerläge.
Det tredje sovrummet nås även det från hallen och har fönster i insynsskyddat västerläge. Här kan man inreda med säng och arbetshörna. Goda förvaringsmöjligheter i tre inbyggda garderober med dörrar i trä. Golvet kläs av parkett och väggarna är målade i grått.
Till sist har vi badrummet som är renoverat av fackman 2010. Golvet kläs av mörkgrå klinker och väggarna är helkaklade i vitt med fondparti i mörkgrått. Inredningen består av wc, handfatskommod, spegel, handdukstork, duschhörna med vikdörrar i klarglas samt både taksil och handdusch. Det finns även en kombimaskin vilket underlättar i vardagen. Ett fönster bidrar med dagsljus.
Örgryte passar er som önskar ett centralt men ändå lugnt och tryggt boende med närhet till natur- och grönområden. Läget är optimalt med 5:ans spårvagnshållplats inom några minuters gångavstånd som tar er in till city på 10 minuter eller till Munkebäck och Östra Sjukhuset åt andra hållet. Det finns även fina cykelvägar och det är smidigt att ta sig ut på motorvägen för de som har bil. I närområdet ligger mataffären Tempo och det finns flera trevliga restauranger som tex Oizo och Intill. Här bor man även med gångavstånd till Delsjöområdets naturreservat med härlig natur och sjöar för svalkande bad samt Skatås med motionsanläggning och elljusspår. I närområdet ligger även Stora Torp med Delsjöns golfbana och restaurang. Lilla Torps Allé tar er till GLTK med tennisbanor, gym, bastu och sjukgymnaster.
