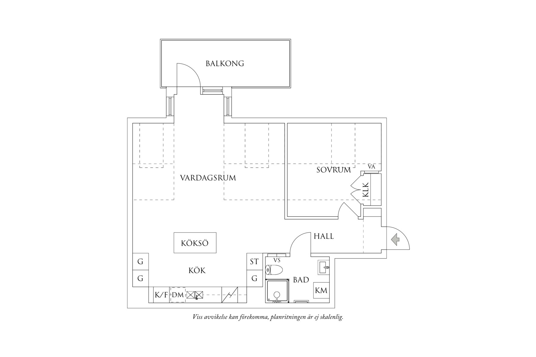
Lägenheten disponeras enligt nedan:
Vi välkomnas i en öppen hall med plats för avhängning direkt till höger innanför ytterdörren. På golvet ligger klinkergolv i granitkeramik som säljarna gjort ett extra tillval och väggarna är målade i ljusa kulören NCS 100-N. Från klinkergolvet övergår sedan det till genomgående parkettgolv i ask Skagen, även detta ett extratillval.
Köksinredningen är från påkostade Marbodal. Tillvalda köksluckor "Arkitekt plus sand" matchas med laminatbänkskiva Gomera. Ovanför bänkskivan ligger beige kakel "Ever grau". Köksutrustningen består av integrerad kombinerad kyl och frys, integrerad diskmaskin, inbyggd ugn rostfri/svart, inbyggd mikrovågsugn rostfri/svart, induktionshäll, fläkt med superkolfilter samt bänkbelysning Chef LED-spotlights.
Vardagsrummet som är i öppet samband med köket skapar härlig rymd och plats för goda vänners lag. Här kan med enkelhet inredas med soffhörna och tillhörande soffbord. Två stora fönster bidrar med härligt ljusinsläpp. Från vardagsrummet når ni bostadens balkong på 9 kvm. Ett ypperligt ställe att avnjuta härliga sommardagar.
I sovrummet finns det rymligt med plats för dubbelsäng med tillhörande sängbord. Här finns det förvaringsmöjligheter i två garderober och ett takfönster som bidrar med härligt ljusinsläpp.
Bostadens badrum är helkaklat och inredningen består av tvättställsblandare, takduschset Mora MMIX shower system, wc samt kombimaskin.
Totala extratillval hamnade på dryga 65 000kr.
