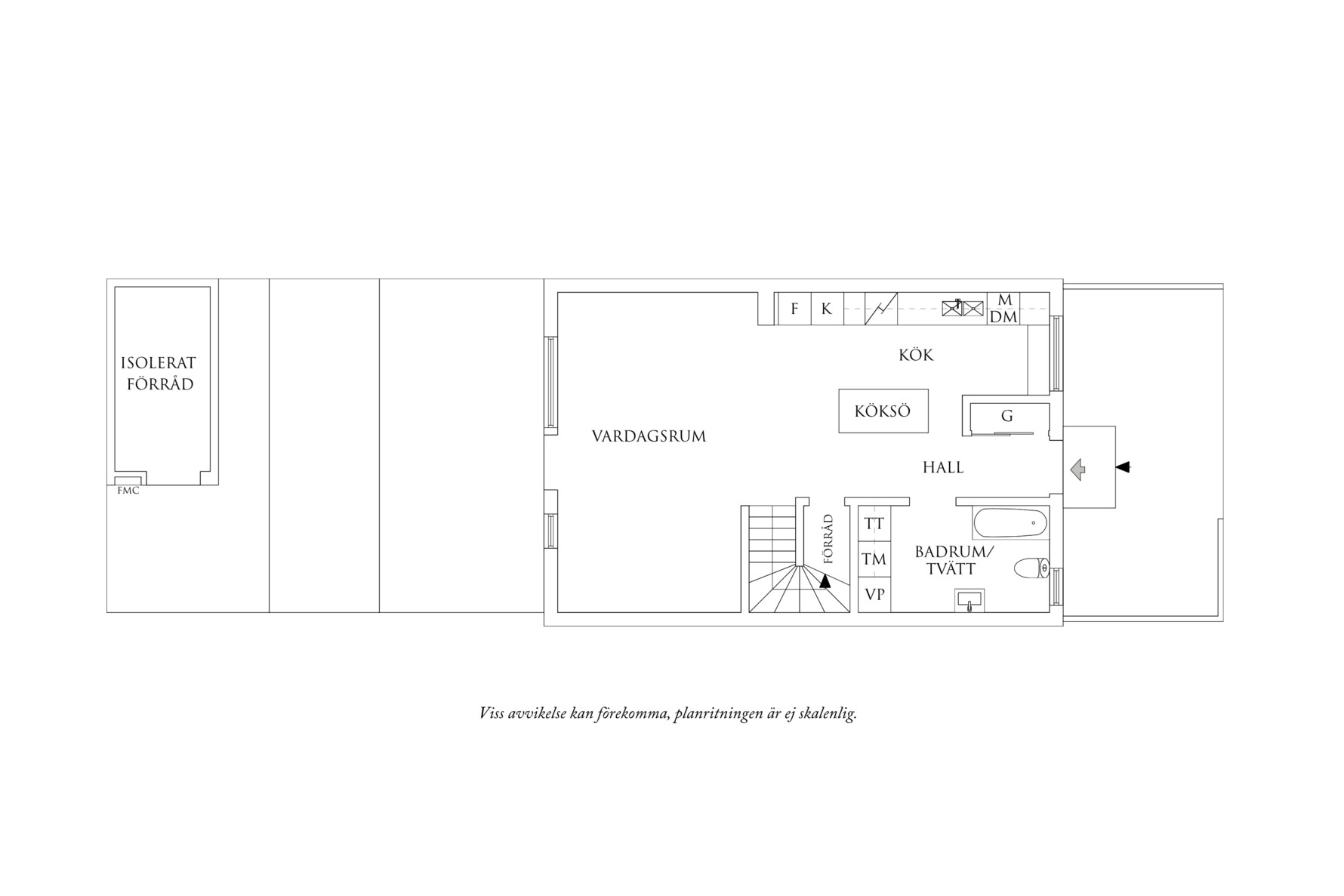
Bostadens 106 kvm disponeras enligt följande:
Välkomna till detta charmiga nybyggda radhus i det populära området Hills. Den här bostaden, som blev klar för inflyttning år 2021, erbjuder 106 välplanerade kvadratmeter fördelade över två våningar. På bottenvåningen hittar vi de gemensamma utrymmena, inklusive ett kök och ett vardagsrum som smidigt flödar ihop i en öppen och social planlösning. Köket är praktiskt utformat med moderna bekvämligheter och kommer från Marbodal. Skåpluckorna är i en elegant beige nyans, bänkskivan i gråmelerad färg, och blandaren från Tapwell är i mattsvart. Du får gott om arbetsbelysning från dimbara spotlights under överskåpen. Kyl, frys och diskmaskin är smakfullt integrerade. Hela bottenvåningen har underbart värmande vattenburen golvvärme. Badrummet på denna våning är helkaklat i samma harmoniska beige nyans och är utrustat med toalett, handfat, badkar samt tvättmaskin och torktumlare, som har praktiska väggskåp ovanför. Taket pryds av spotlights. Värmeanläggningen finns också här. Från vardagsrummet leder en dörr ut till en härlig träaltan som mäter cirka 18 kvadratmeter och har härlig kvällssol. En liten gräsmatta omger trädgården, som avslutas med ett praktiskt isolerat förråd vid tomtgränsen. På framsidan finns en mindre uteplats. Under trappan till övervåningen finns ytterligare förvaringsmöjligheter.
På övervåningen hittar du tre generösa sovrum, varav ett har en rymlig klädkammare. Badrummet på denna våning är smakfullt fullkaklat med beige klinker och mattvitt kakel. Det är utrustat med dusch, handfat och toalett. Spotlights i taket ger bra ljus. Hela bostaden pryds av ett vackert parkettgolv i ek med en vitmattlackad yta. Två parkeringsplatser ingår i avgiften, el finns framdraget för laddplats. Buss 759 går nu från området så man smidigt tar sig till Mölndals Centrum.

