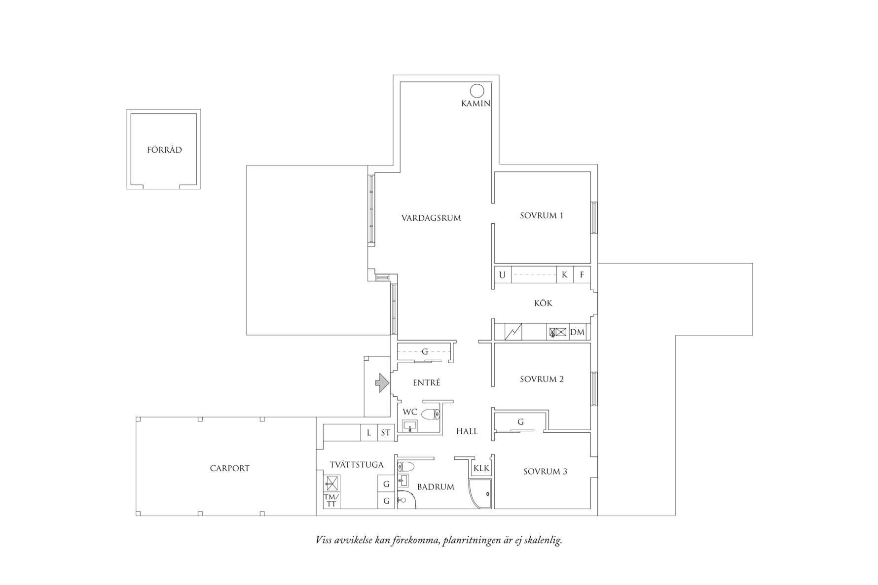
Bostaden disponeras enligt följande:
Innanför ytterdörren välkomnas ni av en rymlig och inbjudande hall med praktiskt klinkergolv. Här finns gott om förvaring i en generös skjutdörrsgarderob. I anslutning till hallen finns även en gäst wc, en smidig lösning för både familjen och gäster.
Vidare in i huset möts ni av det imponerande vardagsrummet som med sin generösa takhöjd skapar en fantastisk känsla av rymd. Här finns gott om plats för en stor soffgrupp och övrigt möblemang. Den stämningsfulla braskaminen blir en naturlig samlingspunkt under årets kyligare månader och bidrar med både värme och mysfaktor. Från vardagsrummet når ni altanen i soligt sydvästläge, en perfekt plats för härliga grillkvällar och sociala stunder. Huset omges av en tät och välskött Thujahäck som ger ett naturligt insynsskydd, och på tomten finns även ett praktiskt förråd om cirka tio kvadratmeter, perfekt för trädgårdsredskap och extra förvaring.
I delvis öppen planlösning mot vardagsrummet ligger det stilfulla köket med vita luckor från Marbodal. Kökets utformning ger en social och trivsam miljö, perfekt för umgänge och matlagning. Den maskinella utrustningen består av induktionshäll, varmluftsugn, fläkt, diskmaskin samt kyl & frys i fullhöjd. Från köket når ni även altanen i norr, en lugn plats att njuta av morgonkaffet eller en stilla stund utomhus.
Bostadens första sovrum nås från vardagsrummet och är väl tilltaget, vilket gör det perfekt som master bedroom. Här finns gott om plats för en dubbelsäng och kompletterande möblering.
Till höger om hallen ligger det andra sovrummet, idealiskt som barnrum med plats för både säng, förvaring och skrivbord. Ett stort fönster i norr släpper in rikligt med dagsljus och skapar en ljus och trivsam atmosfär.
Bredvid finns bostadens tredje sovrum, som med sin generösa storlek lämpar sig väl som master bedroom, barnrum, gästrum eller hemmakontor. Här finns gott om plats för säng och förvaring i en praktisk skjutdörrsgarderob. Dessutom har rummet en utgång till altanen i norr, vilket ger ett fint ljusinsläpp och en härlig känsla av rymd.
I anslutning till sovrummen ligger en rymlig klädkammare som underlättar förvaring och bidrar till ett prydligt hem.
Badrummet har en modern och stilren design med grått kakel och mörkt klinkergolv. Här finns wc, handfat med kommod, spegel, duschhörna med vikbara väggar samt ett generöst badkar som bjuder in till avkopplande stunder. Utöver detta erbjuder bostaden en stor och välutrustad tvättstuga med tvättmaskin, torktumlare och gott om förvaring i flera skåp. Tvättstugan har dessutom en praktisk groventré som leder direkt till carporten där det finns plats för en bil. Uppfarten framför huset rymmer ytterligare två bilar.
I Heljered, som är en nyare del av Kållered, bor ni med närhet till både natur och bekvämligheter. Sandsjöbackas naturreservat erbjuder härliga vandringsleder och grönområden, medan pendeltåg och bussar gör det enkelt att ta sig till Göteborg. I närområdet finns också matbutiker, affärer, Heljereds förskola samt Hallenskolan, vilket gör detta till ett perfekt område för barnfamiljen. Heljereds lugna och naturnära läge ger en harmonisk miljö att bo i.

