2019 lades trätrall på balkongen samt byte till takdusch. 2022 målades samtliga rum.
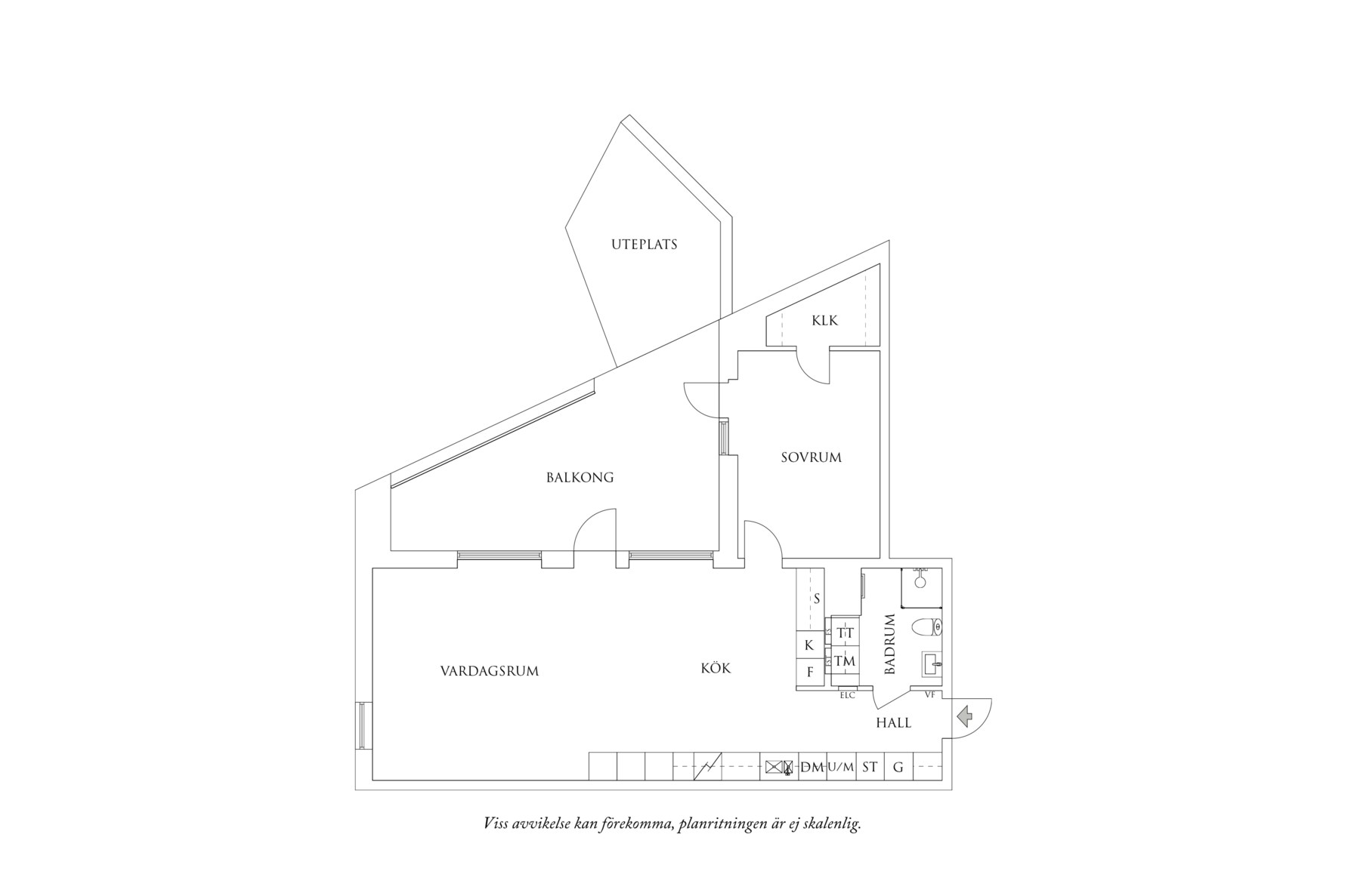
Bostaden disponeras enligt följande:
Redan innanför ytterdörren möts ni av en fantastisk och inbjudande planlösning. Hallen erbjuder goda förvaringsmöjligheter med avhängning och en integrerad sittplats som kompletteras av en garderob – perfekt för att hålla ytterkläder och skor organiserade.
Sällskapsytorna präglas av en öppen planlösning, en imponerande takhöjd på ca 2,60 meter och stora fönster från golv till tak som släpper in ett fantastiskt ljusflöde från två väderstreck. Den genomgående askparketten i en bomullsvit nyans ger ett elegant och enhetligt intryck. Här finns gott om plats för både en stor soffgrupp och ett matbord med plats för många gäster – den perfekta miljön för middagar och sociala stunder. Från vardagsrummet nås den rymliga balkongen med tillhörande stenlagd uteplats i soligt sydvästläge. Denna privata oas erbjuder plats för loungemöbler, grill och växter och blir en naturlig förlängning av bostaden.
Det stilrena köket från Marbodal har släta, sofistikerade luckor med rostfria beslag som kompletteras av spotlights under överskåpen, vilket skapar en elegant och funktionell arbetsmiljö. Köket erbjuder generösa förvaringsutrymmen och väl tilltagna arbetsytor som gör matlagningen till en fröjd. Den exklusiva maskinella utrustningen från Siemens inkluderar induktionshäll, varmluftsugn, mikro i ergonomisk höjd, integrerad diskmaskin samt kyl och frys i fullhöjd.
Sovrummet är avskilt från bostadens sociala ytor för att skapa en privat och harmonisk atmosfär. Den separata utgången till balkongen bidrar till en luftig känsla och ger en härlig kontakt med grönskan. En stor klädkammare ger bostaden utmärkt förvaring och kan även användas som en praktisk arbetshörna. För den som önskar ytterligare förvaringsmöjligheter finns utrymme att komplettera med fler garderober.
Badrummet är inrett i tidlösa och exklusiva materialval med vita kaklade väggar och ett stilfullt antracitfärgat klinkergolv som skapar en elegant kontrast. Utrustningen inkluderar wc, takdusch med klarglasdörrar, en smakfull handfatskommod, spegelskåp med belysning samt handdukstork. Tvättsektionen, med tvättmaskin och torktumlare från Siemens, arbetsbänk och överskåp från Marbodal, ger en smidig och funktionell vardagslösning.
Bostadens flexibla planlösning gör det möjligt att skapa ett extra sovrum genom att sätta upp väggar, vilket framgår av den alternativa planritningen. Denna anpassningsmöjlighet gör bostaden idealisk för den som behöver ett extra rum, perfekt som hemmakontor, barnrum eller gästrum.
