Entréplan:
Hall:
Inbjudande hall som är uppdelad i två avdelningar med plats för fri avhängning av ytterkläder. I entrén ligger en praktisk golvklinker och väggarna kläds av en ljus tapet. Här finner vi också en gästtoalett. Inre hallen har plats för fristående möblemang och öppnar upp mot både kök och sällskapsytor. På golvet ligger en klassisk ekparkett i vacker fiskbensläggning.
Bibliotek:
Biblioteket sätter prägel på huset genom sina platsbyggda bokhyllor i trä, gedigna takbjälkar och en storslagen öppen spis i vacker sten. Rummet är väl tilltaget och det finns gott om plats för både skrivbord och rejäla loungemöbler. 
Vardagsrum och matsal:
Pampigt och generöst vardagsrum som ligger i fil med matsalen har vackra fönsterpartier som bjuder på en storslagen utsikt över Göteborg. Tack vare husets höga placering är det ett fritt och ostört läge utan insyn. Från vardagsrummet finner vi utgång till en ljuvlig uteplats med fin utsikt. Samma vackra utsikt återfinns i matsalen vilket är rymligt och ger god plats för ett stort sittande sällskap. Genomgående vacker takdekoration och enhetligt parkettgolv i fiskbensläggning.
Kök:
Väl tilltaget kök, renoverat med en rustik och lantlig känsla. Tack vare kökets uppbyggnad erbjuds mycket bra arbetsytor samt gott om förvaringsskåp. Matbordet har sin givna plats invid det nischade fönsterpartiet likt ett burspråk och ger plats för ett sällskap på minst sex personer. Den unika öppna spisen i tegel bidrar till en otroligt mysig och varm atmosfär intill köksön och matplatsen. Köket är fullutrustat med påkostade vitvaror så som kyl och frys i fullhöjd, diskmaskin, inbyggd mikrovågsugn, inbyggnadsugn, glaskeramikhäll samt rostfri köksfläkt. På golvet ligger praktisk klinker i en varm nyans och väggarna kläds av en ljust mönstrad tapet. I anslutning till köket finner vi husets groventré med gott om förvaringsmöjligheter.
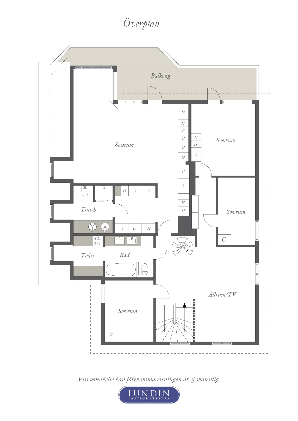
Övre Plan:
Allrum/TV
Trappan från hallen leder dig upp till husets övre plan och vi tar oss in i allrummet med god plats för både soffgrupp och arbetsplats för den som önskar. Vitmålade takbjälkar och listverk på väggarna. På golvet ligger en ekparkett och väggarna går i en gul ton.  
Sovrum:
Bostadens master bedroom är mycket rymligt med plats för soffa i det glasade burspråket med utsikt över staden. I övrigt ryms en dubbelsäng och för förvaring finner vi en garderobsvägg som sträcker sig över hela rummets långsida. Här finner vi även utgång till en härlig balkong som sträcker sig längs husets västersida. Ytterligare ett sovrum ligger med utgång till balkongen. Även detta är väl tilltaget med plats för dubbelsäng och bra förvaring i en platsbyggd garderobsvägg. Våningsplanet har förutom dessa rum, två sovrum till. 
Badrum:
Två badrum, det ena i anslutning till det större sovrummet. Helkaklat i ljus marmor på väggar och golv med vitmålad träpanel i snedtaket. Utrustat med wc-stol, dubbelhandfat i kommod samt duschhörna med glasvägg. Det andra badrummet ligger i anslutning till de andra sovrummen och allrummet med ljust kakel och klinker. Utrustat med wc-stol, dubbelhandfat i kommod samt badkar med massagefunktion. I anslutning till detta badrum ligger husets tvättstuga. Här har vi tvättmaskin, torktumlare samt gott om avlastningsytor.  
Vindsvåning:
Planet har två väl tilltagna sovrum som separeras av ett rum som bjuder plats för fristående möblemang. Charmen sitter i den bevarade och framtagna murstocken, plankgolven och takfönster. 
Källarplan:
I husets källarplan finns bland annat en vinkällare, hobbyrum, bastu samt förrådsutrymmen. 
Välkommen på visning!
                        
                        
            
                            
                            
                            
                            
                            
                            
                            
                            
                            