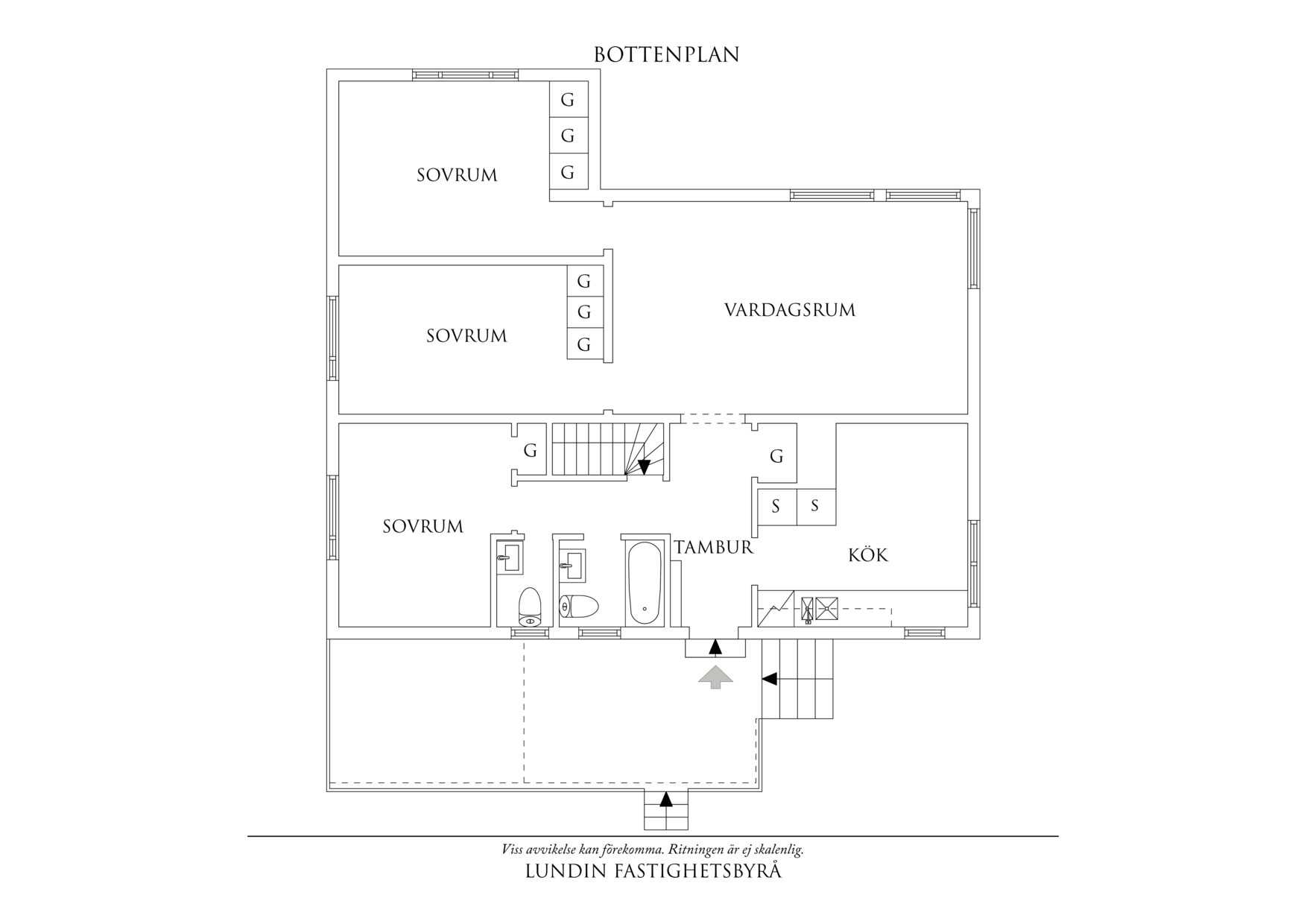
Entréplan
Hall
Välkomnande hall med plats för avhängning direkt innanför dörren samt en inbyggd garderob lite längre in. Ljusa mönstrade tapeter på väggarna och plastmatta på golvet.
Kök
Trivsamt och ljust kök med vita luckor och fönster åt två håll. Plastmatta på golvet och ljusa tapetserade väggar. Utrustningen består av kyl, spis med fläkt och diskmaskin.
Vardagsrum
Rakt fram från entrén når man husets vardagsrum. Här ligger en ljusgrön heltäckningsmatta på golvet och väggarna är har vita tapeter. Från vardagsrummet når man två av husets tre sovrum.
Sovrum 1
Det högra sovrummet av de två sovrummen som nås från vardagsrummet är något rymligare och har vita tapeter och en rosa heltäckningsmatta samt tre garderober.
Sovrum 2
Det vänstra av de två sovrummen som nås från vardagsrummet har en mörkgrön sjögrästapet och brun heltäckningsmatta samt tre garderober.
Badrum
Badrum i originalutförande med klinkergolv och halvkaklade väggar. Här finns toalett, handfat och badkar.
Toalett
Intill badrummet finns även en separat toalett med plastmatta på golvet och tapetserade väggar, toalett och handfat.
Sovrum 3
Rymligt sovrum med ljusgula tapeter och laminatgolv samt en inbyggd garderob.
Källarplan
Nedför trappan kommer man till det f.d. pingisrummet som passar bra som en gillestuga. Här är det uppreglade och tapetserade väggar samt betonggolv. I resterande del av källarplanet är det oinrett med målade betongväggar samt betonggolv. Här finns pannrum med en arbetsbänk och hyllor, tvättrum med tvättmaskin, torktumlare och dusch, matkällare, förråd samt garage.
