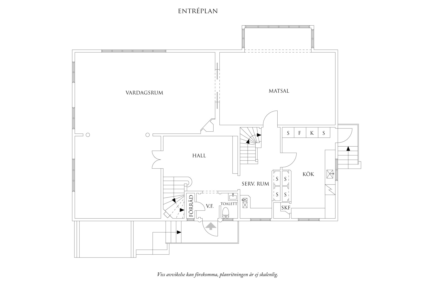
Entrévåning
Vi kliver in i den yttre hallen som präglas av tidlösa dörrar av mahogny. Direkt till höger finns en gäst toalett och till vänster ett förråd. Ett steg till och den inre hallen öppnar sig med all den ståtligt och värdighet dåtidens era präglade detta vackra hem.
Till höger finns köket, men vi väljer att gå till vänster och öppnar de otroligt vackra pardörrarna och kliver in i början på ett magisk vardagsrum. Högt i tak, vackert parkett golv och listverk präglar detta fantastiska rum. Man känner verkligen att det här har bjudits på otaliga middagar och ståtliga sociala sammanhang. Enligt rykten har även en prins skålat i dessa lokaler. Rummet öppnar sig vidare mot den vackra öppna spisen och ytterligare utsmyckade pardörrar som leder oss till bostadens matsal som rymmer hela släkten och alla vänner samtidigt. Vidare tar vi oss härifrån till det rymliga köket. Det finns en utgång från köket till kortsidan av huset och även en kökstrappa som leder till övre plan.
Övre plan
Vi går tillbaka till den inre hallen och en ståtlig trappa i mahogny leder upp till övre planet. Här finns fyra sovrum, ett badrum, ett stort allrum, ett blomsterrum och en fungerande mycket fin kakelugn. Man slås av alla de fantastisk fina detaljer som är så väl bevarade. Fönstren vid trappan är konstverk i sig själv.
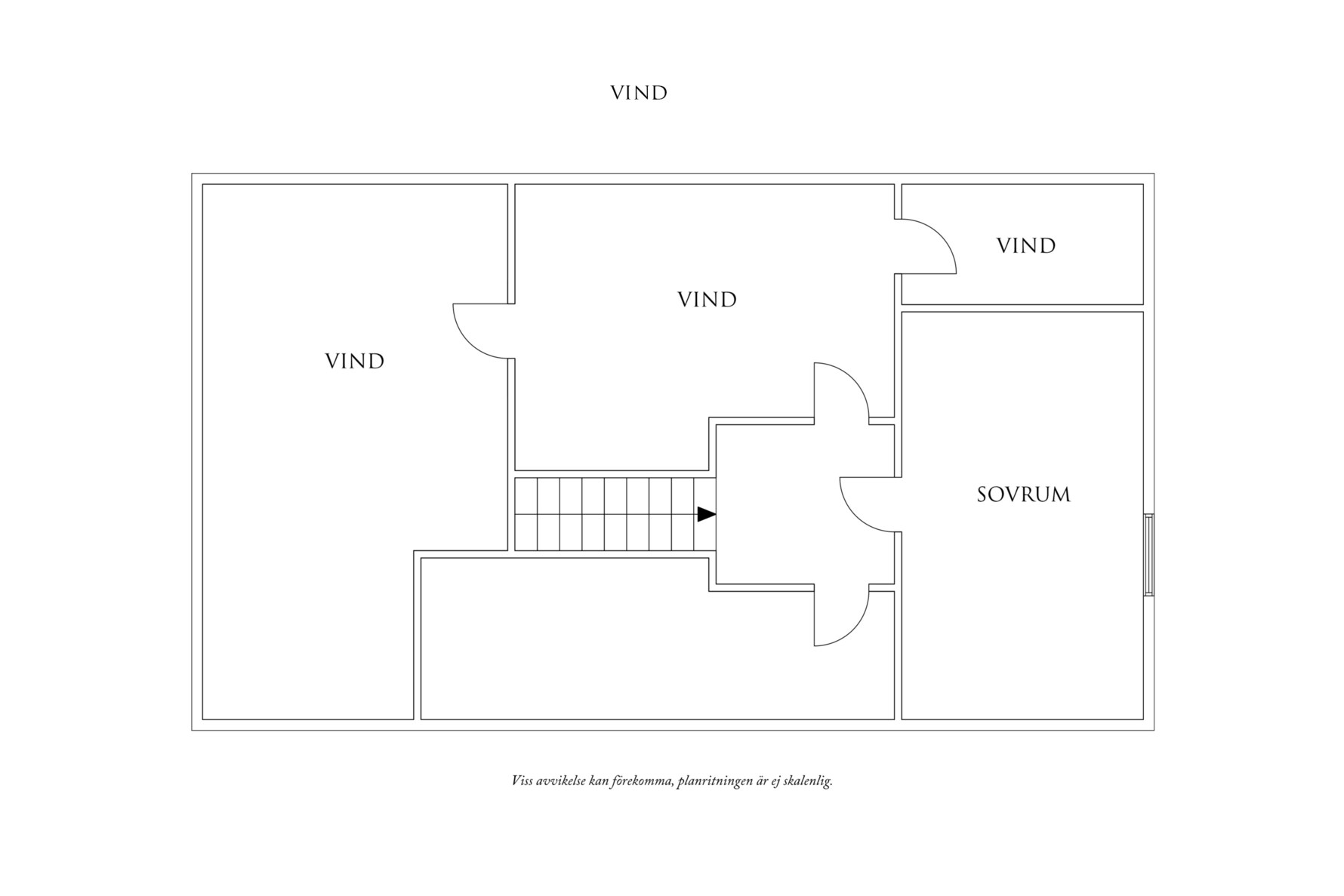
Vind
Här finns det ett inrett sovrum och en toalett samt väl tilltagna sidovindar och förrådsutrymmen. Vinden är mycket stor och har fantastisk potential!
Nedervåning
Trappa leder ner till det nedre planet. Även detta plan är väl tilltaget och har genomgående klinker på golvet. Här erbjuds både badrum, bastu, stor gillestuga med braskamin och ett spelrum. Perfekt för aktiviteter eller som ett eget hemmagym. Det finns även ett större skafferi och annan förvaring, samt utgång direkt till garaget och utgång till trädgården. Perfekt för tonårsbarnen eller att hyra ut!
För de som drömmer om att få möjlighet att skapa ett magnifikt hem med härlig känsla och välbevarade detaljer så är detta en möjlighet som mycket sällan ges!
