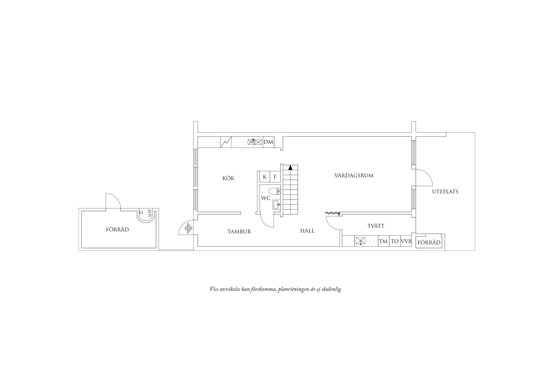
På entréplan nås huvudingången som har en möblerbar hall som leder till bostadens kök. Redan här ges en första hint av husets intention i den sociala regin är middagar tillagas medan gästerna känner en samhörighet eller när läxläsning skall kombineras.
Vardagsrummet har en tydlig karaktär för sällskapskvällar, trevliga middagar eller avkoppling efter en lång arbetsdag. I anslutning ligger uteplatsen som är en utmärkt tillgång under de varma dagarna oavsett om det vankas gäster eller avkoppling. På detta våningsplan finner du även en gäst-wc samt ett stort grovkök med plats för tvättavdelning.
På det övre planet finner du två sovrum samt en klädkammare. Allrummet på övervåningen knyter ihop rummen och blir en given plats för avkoppling innan läggdags. Här erbjuds även ett större badrum med fönster som bidrar till behagligt ljusinsläpp.

