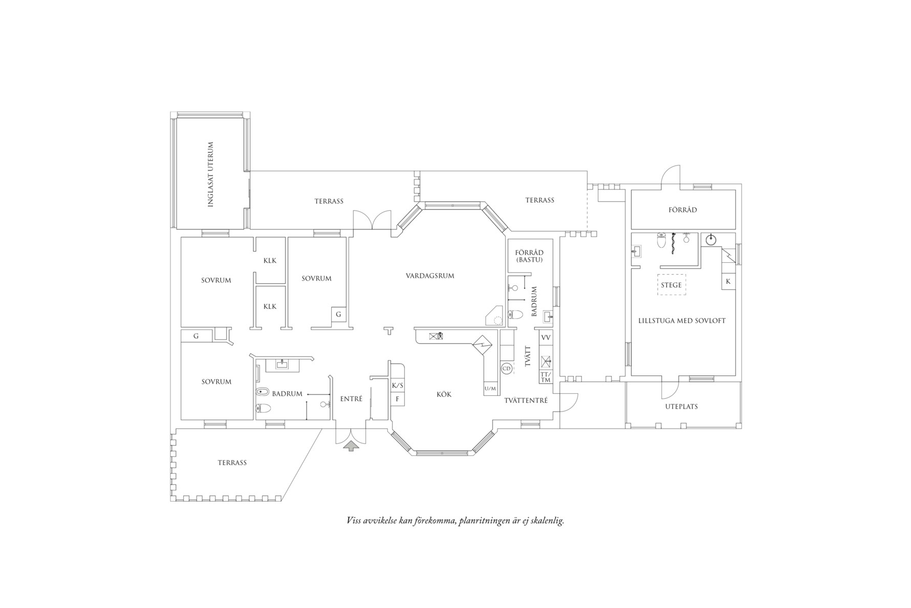
Entré/hall med gott om plats för ytterkläder och förvaring i garderober med skjutdörrar.
Stort badrum i anslutning till hallen. Badrummet har fönster, handdukstork och dusch. Ljust kakel på väggar och klinker på golvet.
Luftigt vardagsrum med glasat burspråk och utgång genom glasade pardörrar mot altanen och det inglasade uterummet som förlänger utesäsongen till både vår och höst. Vardagsrummet rymmer både plats för soffgrupp och matsalsbord för den som vill.
Stort och rymligt kök med fina arbetsytor och bra förvaring i vägg- och bänkskåp. Inbyggnads ugn- och mikro, hel kyl- och frys och diskmaskin. Glasat burspråk även här, plats för ett ordentligt matbord.
Tvättstuga i anslutning till köket med egen entré ut till gäststuga och trädgård. Tvättstugan är utrustad med tvättmaskin, torktumlare och tvättho. I anslutning till tvättstugan ligger ytterligare ett badrum med fönster och dusch, dessutom ett förråd som går att bygga till bastu för den som vill. Kakel på väggar, klinker på golvet.
Tre sovrum varav två med plats för dubbelsäng, bra förvaring i garderobssystem och klädkammare.
Perfekt avskilt från huset ligger den fina lilla gäststugan fullt utrustad med både köksdel och badrum. Dessutom ett loft ovanpå vilket gör att gäststugan rymmer många gäster. Gäststugan kan även vara en god ekonomisk intäkt då läget är mycket bra och efterfrågan stor.
Vrångö är framförallt känd för sin vackra natur som delvis består av naturreservat men också för sina fina sandstränder. Här finns flera badmöjligheter och många anser att det är skärgårdens bästa badö. På ön finns bland annat en välbesökt gästhamn, välsorterad affär som är öppen året runt, pensionat, vandrarhem, restaurang, kiosk och café. Från den gamla lotsutkiken har du panoramavy över bland annat Vinga fyr, Öckerööarna och fastlandet.
