Välkommen till

Tanneskärsgatan 137

Tanneskärsgatan 137
Önnered

Trivsamt radhus med gavelläge och naturen som granne

Välkomna till detta mysiga och välplanerade gavelradhus, beläget i populära Önnered! Här bor ni i ett trivsamt område med vacker natur och hav alldeles i närheten.

Läs hela beskrivningen
Patrik
ansvarig mäklare
Patrik Henningsson
Fastighetsmäklare & Senior Partner
0709-16 22 68 patrik.henningsson@lundin.se
Lundin Västra Göteborg

Med oss får du en lokal, heltäckande och modern mäklartjänst med stort personligt engagemang. Läs mer här.

Patrik
ansvarig mäklare
Patrik Henningsson
Fastighetsmäklare & Senior Partner
0709-16 22 68 patrik.henningsson@lundin.se
Lundin Västra Göteborg

Med oss får du en lokal, heltäckande och modern mäklartjänst med stort personligt engagemang. Läs mer här.

Bilder

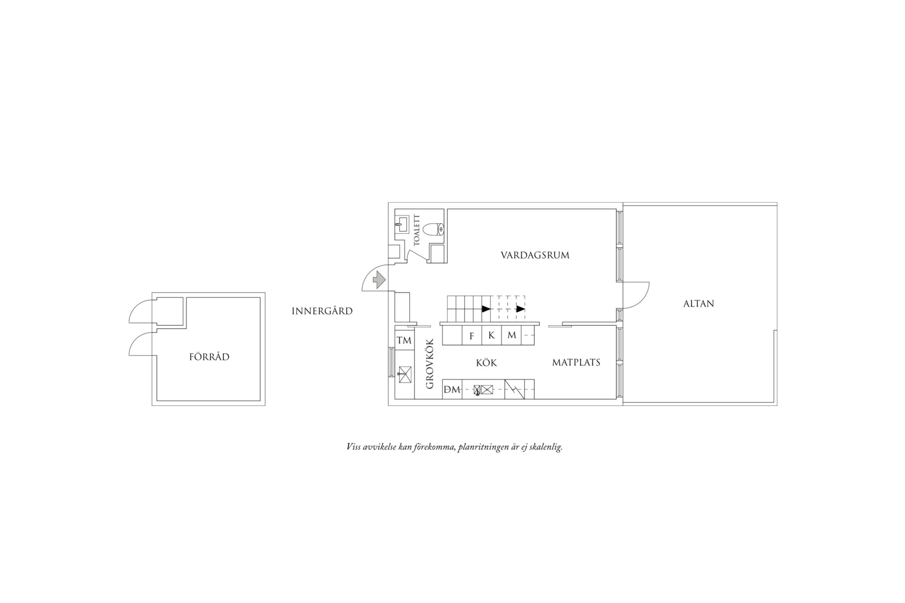
Planritning

Beskrivning

Entréplan:
Hall med plats för ytterkläder och förvaring i garderober.
Gästtoalett i anslutning till hallen.
Vardagsrum och kök i öppen och social yta med utgång till den mysiga trädgården som ligger med perfekt solläge.
Kök med ljusa luckor och snickerier och grovkök i anslutning till köket.

Övre plan:
Ett mindre allrum med plats för tv-hörna.
Två sovrum med plats för dubbelsäng och garderober.
Badrum med dusch och fönster. Kakel på väggar och våtrumsmatta på golvet.
Klädkammare.

Nylagt parkettgolv i ek i bägge våningsplanen.
Två förråd, ett på varje sida om huset.

Beskrivning planlösning
Ekonomi
Fastighet
Området
Önnered
Önnered är ett stadsnära område med vackra omgivningar. Området är ett gammalt jordbruks- och fiskesamhälle, vilket märks än idag när man besöker Önnereds hamn eller promenerar upp till Olles gård. Gården med anor från 1700-talet, är en rest av Önnereds by och förvaltas idag av Önnereds Kulturförening.

Här består bebyggelsen av en blandning av moderna villor och radhus i olika stilar. I området finns flera förskolor och två grundskolor; Högenskolan och Önneredsskolan.
Trevlig närservice finner man i Önneredsbodarna som rymmer mysiga butiker, pizzeria, frisör och hudvårdssalong. Flera mataffärer ligger på nära avstånd.

Med bil eller buss når du snabbt Göteborgs centrum eller Frölunda torg. Här finns ett stort köpcentrum samt Frölunda Kulturhus. Högsbo och Sisjöns industriområden har också flera köpcentra och stormarknader. Vid Opaltorget finns apotek och vårdcentral.

Genom Önnered och utmed havet går flera gång- och cykelvägar samt motionsslingor. Det finns flera föreningar i området med verksamheter inom exempelvis handboll, fotboll och sjöscouting. I Åkered och i närheten av Frölunda Torg ligger gym- och idrottsanläggningar.

Ett vackert promenadstråk utgår från Önnereds Brygga. Härifrån kan man promenera längs Eskils kanal, charmigt kantad av ett myller av sjöbodar och bryggor. Strax innan man kommer fram till Fiskebäcks hamn finns ett naturskönt rekreationsområde. Sommartid badas det vid badplatserna Ganlet och Rörvik.

Önnereds trivsamma och charmiga miljö inbjuder till ett skönt och aktivt liv nära havet och storstaden. Här finns alla förutsättningar att trivas!
Karta