Bostaden disponeras enligt följande:
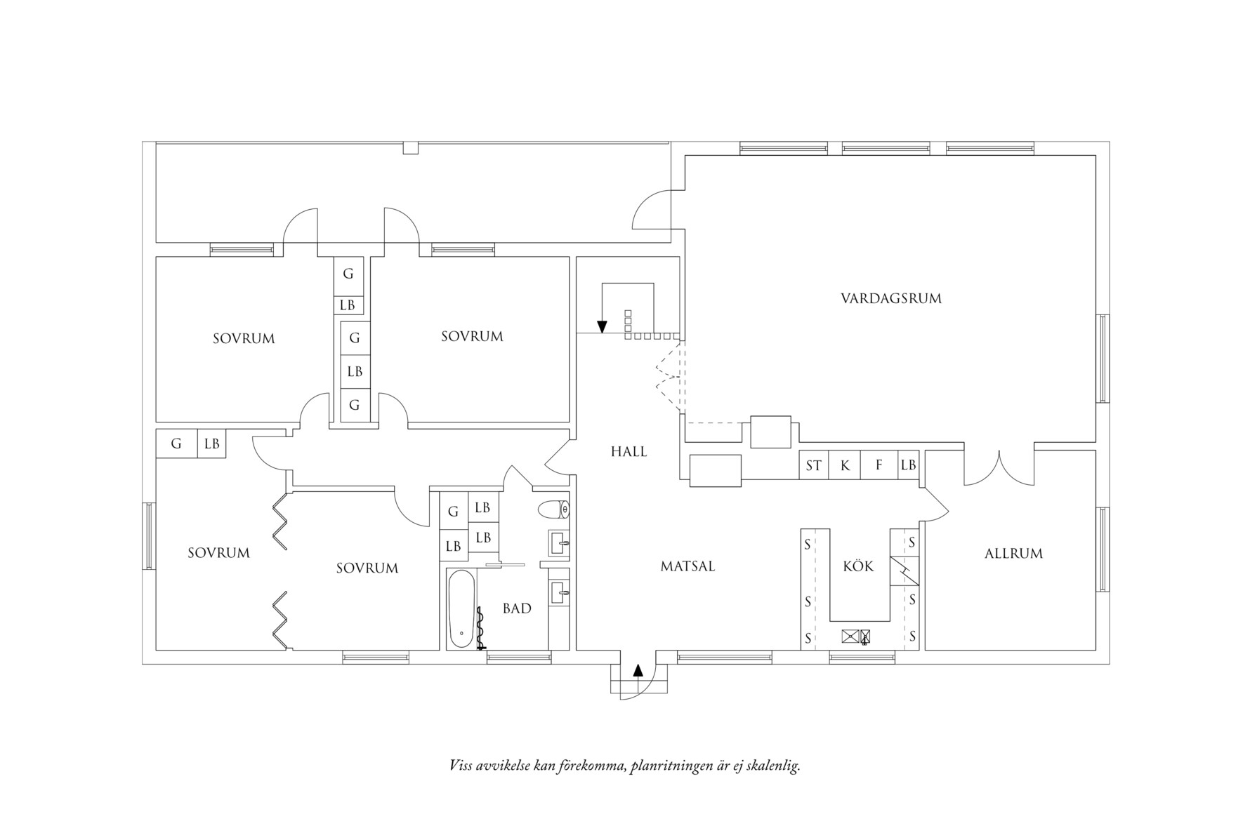
Stor härlig, välkomnande entréhall med fint marmorgolv med vattenburen golvvärme från slutet 90-tal. Ett spatiöst hobbyrum med inomhuspool med öppen spis och stora fönster i söder. Från tvättstugan har man genomgång via bastun till dusch och poolutrymmet. Ett större sovrum/hobbyrum med fönster i söder. Gäst-wc, tvättstuga och flera förråd samt utgång till gaveln i öster.
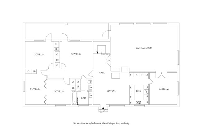
En ek-trappa i hallen leder oss upp till plan 2 som har ett spatiöst vardagsrum med öppen spis och fina parkettgolv samt utgång till en stor balkong i söder. Här finns även ett rum i vinkeln mellan vardagsrum och kök som har fönster i väster och med genomgång till ett klassiskt 60-tals kök i ljus ek (med följande vitvaror: spis, fläkt, kyl (sämre funktion), frys). Matplatsen i köket har en mysig eldstad i tegelväggen och ifrån detta rum har man möjlighet att gå ut till baksidan av huset och den skyddade uteplatsen i väster.
Badrum med nyare dusch, 4 sovrum varav två vid balkongen och två mot baksidan.
Pannrum med bergvärmepump från 2009 som fått ny kompressor och cirkulationspump 2021.
Huset har äldre men välbevarade ytskikt som delvis är i behov av renovering.
Här erbjuds en villa som kombinerar bekvämlighet, bra planlösning och goda förrådsutrymmen. Belägen på en barnvänlig och lugn villagata nära Hovåsskolan, med närhet till både naturen och havet med fantastiska promenadstråk och badmöjligheter inom räckhåll. Här bor du i en sann idyll med alla bekvämligheter runt hörnet.
Välkommen till ditt nya hem med ett högt och soligt läge – en plats att trivas på!

