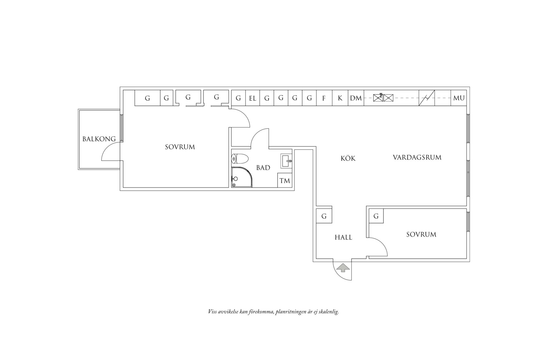
Bostaden disponeras enligt följande:
Innanför ytterdörren möts ni av en hall med plats för avhängning samt förvaringsmöjligheter i en garderob.
Genomgående i hela lägenheten ligger ekgolv och väggarna är vitmålade.
Vidare in i bostaden finner ni kök och vardagsrum i öppen planlösning. Trevliga sällskapsytor för nära och kära och ett generöst ljusinsläpp från ett stort fönsterparti. Vardagsrummet kan möbleras med soffgrupp och tillhörande möblemang samt matplats.
Stilrent kök från Marbodal med släta luckor i vitt. Ovan den mörka bänkskivan i laminat sitter vitt kakel. Här finns förvaring så det räcker och blir över i flertalet överskåp och utdragslådor. Köket är utrustat med inbyggs varmluftsugn, induktionshäll, fläkt, inbyggd mikro, integrerad diskmaskin samt kombinerad kyl och frys i fullhöjd, allt från Siemens.
Det stora sovrummet rymmer med lätthet en dubbelsäng med tillhörande sängbord samt plats för förvaringsmöbel. Här finner du utgången till bostadens möblerbara balkong i ett soligt västerläge.
Längst väggen mellan kök och sovrum löper en hel garderobsvägg, inbyggda och målade i samma kulör som köket.
I anslutning till hallen ligger det andra sovrummet som passar perfekt som barnrum, kontor eller gästrum. I dagsläget är det inrett med säng och skrivbord. Förvaringsmöjligheter finns i form av en garderob.
Modernt badrum i diskreta färger med grå klinker och vitt kakel. Inredningen består av WC, vit handfatskommod och ovansittanade spegelskåp för smidig förvaring, handdukshängare samt duschhörna med glasväggar. Praktisk tvättavdelning med kombinerad tvättmaskin/torktumlare samt arbetsbänk och förvaringsskåp ovan.
