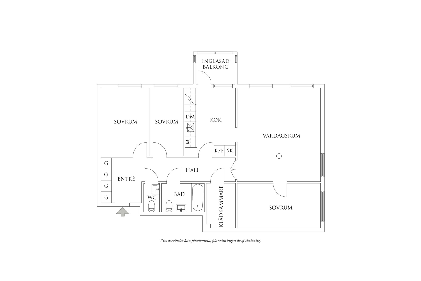
Innanför ytterdörren når man den kvadratsmarta hallen som har generös förvaring i fyra inbyggda originalgarderober som skapar tidstypisk karaktär till entrén. Det finns även utrymme för fria avhängningsytor. Följer man det ljusa golvet och de de ljusmålade väggarna vidare når man bostadens alla rum.
Längst in i bostaden bakom pardörrar i trä med glaspartier är det stora och ljustapetserade vardagsrummet beläget. Här är det gott om härlig och social yta för både soffgrupp och matplats. De vackra originaldetaljerna från husets bebyggelse blir framträdande dels genom golvet som kläs av ekparkett i fiskbensläggning såväl som i fönsterbrädorna av marmor.
Från vardagsrummet i soligt gavelläge har man direkt anslutning till köket från Ikea (2017) som har en vit köksinredning. Stilrena inslag i trä blir kontrasterande till det ljusa köket och återfinns både i kökets handtag och bänkskiva. Den maskinella utrustningen och består av spis med induktionshäll, frånluftsfläkt, inbyggnadsugn, inbyggnadsmikro, integrerad diskmaskin samt kombinerad kyl med frys. Köket är praktiskt med väl tilltagna arbetsbänkar och utrymme för matgrupp. Från köket har man utblick över den inglasade balkongen som i sitt västerläge både bidrar med ett fantastiskt ljusinsläpp och blir ett ytterligare rum för avkoppling under årets varma månader.
Det första sovrummet ligger längst in i lägenheten med anslutning till vardagsrummet och inrymmer mindre dubbelsäng med tillhörande sängbord. Den bevarade fiskbensparketten klär golvytan även här. Trevligt ljusinsläpp kommer från fönster som vetter åt två väderstreck.
De andra sovrummen ligger med nära anslutning till hallen och är rofyllt målade i antikgrått (2020). På golven ligger Slottsplank i ek, även det från renoveringen 2020. Det något mindre av rummen inrymmer en enkelsäng med mindre förvaring och kan med fördel användas som gästrum eller så kan det inredas till det perfekta hemmakontoret. Det andra intilliggande sovrummet kan inredas med dubbelsäng och tillhörande sängbord eller så blir det ett generöst utrymme för barnrum.
Lägenhetens nyrenoverade och toppmoderna badrum från 2021 är inrett i granitkeramik inspirerad av Ekebergsmarmor (Bricmate Glanshammar Honed) som klär både väggar och golv vilket är ett stilfullt materialval som harmonierar med väggfärgen Kalk från Jotun. Badrummet är utrustat med vägghängd wc och handfat från Duravit, badkar från Nordhem, blandare och spolknapp från Tapwell, spegel med dimbar belysning samt handdukshängare från Smedbo. Här kan man njuta av skön golvvärme under klinkers. I taket sitter infällda och dimbara spotlights.
Den lika moderna och stilrena gästtoaletten, även den från 2021 har granitkeramik inspirerad av Kolmårdsmarmor (Bricmate Kolmården) och resterande väggpartier är målade i tonen Tidlös från Jotun. Både wc och handfat är signerade Duravit och blandare samt spolknapp är ifrån Tapwell.
Som extraadderad lyx i tillvaron har bostaden en rymlig walk-in-closet!
