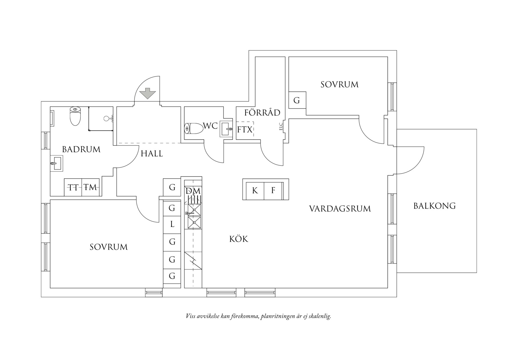
Hallen är rymlig med bra förvaringsmöjligheter som utgörs av garderob. Ljusa ytskikt och mörk klinker innanför ytterdörren som avgränsning. Klinkern övergår till en trestavsekparkett med bomullsvit pigmentering som är genomgående för hela hemmet. Från hallen nås ett av sovrummen samt badrum och utformningen väcker intresse in till sällskapsytorna.
Den öppna planlösningen mellan vardagsrum och kök inger en känsla av rymd och ger valmöjligheter till er inredning. En härlig och väldisponerad yta med sociala karaktär, något som genomsyrar hela bostaden. I anslutning finns den härliga balkongen som kan inredas med loungemöbler, middagsbord, grill och växter.
Köket är från Vedum och har mörkgrå släta skåpsluckor med push-to-open funktion. Praktiskt utformat med bra arbetsytor och gott om förvaring i över- och underskåp. Ljust kakel som stänkskydd ovanför bänkskivan i kompositsten ger en modern kontrast och de rostfria vitvarorna skapar ett smakfullt och stilrent intryck till köket. Vitvaror från Siemens som utgörs av induktionshäll, inbyggd varmluftsugn, inbyggd mikro i ergonomisk höjd, integrerad diskmaskin samt kyl och frys i fullhöjd. Frånluftsfläkt från Franke.
Sovrummen är till sin fördel placerade avskilt från sällskapsytorna, vilket upplevs privat och genomtänkt. Rummen har en behaglig ljusgrön färg med inspiration från naturen vilket ger en rofylld känsla och skapar lugn för återhämtning. Båda rummen är väldisponerade med bra förvaring integrerat.
Badrummet inreds i en stilren och tidlös färgskala som utgörs av vitkaklade väggar och mörk klinker. Inredningen består av WC, golvvärme, dusch med raka duschväggar i klarglas, kommod med spegelskåp från Svedberg, handdukstork och skåpsförvaring. Det finns naturligtvis en tvättsektion där tvättmaskin och torktumlare från Siemens är placerade under arbetsbänken och skåpsförvaring ovanför. En frihet att slippa anpassa sin vardag efter tvättider.
Gäst-WC har vitkaklade väggar och mörkgrå klinker vilket blir enhetligt med badrummet. Inredningen utgörs av handfat och skåpsförvaring för hudvårdsartiklar.

