Denna bostad kommer snart ut till försäljning. Är du intresserad? Gör din intresseanmälan här så blir du kontaktad av ansvarig mäklare. Du kan även maila direkt till mäklaren på malin.andersson@lundin.se.
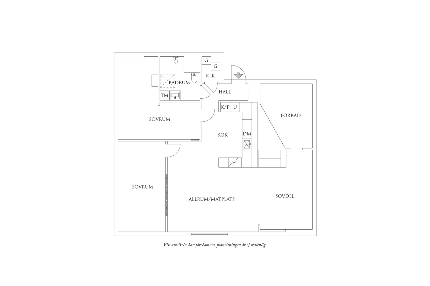
Här finns chans att förvärva en vindslägenhet med en golvyta om cirka 80 kvm, vilket ger möjlighet till tre rum samt mycket förvaring.
Innanför ytterdörren möts ni av en hall med plats för avhängning samt en klädkammare till höger med smarta hyllsystem som erbjuder goda förvaringsmöjligheter. Den inbjudande och varma känslan framhävs elegant av stavparketten i ek, och lägenheten har genomgående ljust nymålade väggar i en grå nyans.
Vidare in i bostaden möts ni av ett vackert parkettgolv i holländskt förband som skapar ett stilfullt intryck. Här finner ni ett rymligt vardagsrum med trevliga sällskapsytor i öppen planlösning, vilket präglas av snedtak upp i nock om cirka 3 meter samt ett vackert bågformat fönster. Det vackra fönstret ger ett generöst ljusinsläpp, skapar karaktär och bjuder på utsikt. Här kan man möblera med både soffa, matsalsbord och övrigt möblemang.
För den matlagningsintresserade skapar det renoverade köket från 2024 fantastiska möjligheter till många fina minnen och goda middagar. Varje detalj har planerats med stor noggrannhet. Det moderna köket har luckor i ljus greige nyans, och den mörka bänkskivan tillsammans med det låga stänkskyddet skapar en fin kontrast. Köket erbjuder generösa arbetsytor samt bra förvaring. All den maskinella utrustningen införskaffades 2024 och består av induktionshäll med inbyggd kolfilterfläkt, ugn, integrerad diskmaskin samt kyl med frys (2022). Ovan köket släpper ett takfönster in generöst dagsljus, vilket skapar en ljus och trivsam atmosfär. På golvet bidrar den ljusa klinkern till en varm, ombonad känsla samtidigt som den är slitstark och lättskött.
Från ena sidan av vardagsrummet nås sovdelen, som kan inredas med dubbelsäng och som erbjuder generöst förvaringsutrymme tack vare noggrann planering och genomtänkta detaljer som ger funktion åt varenda kvadratmeter.
Bostaden erbjuder ytterligare smarta rum som kan användas som sovrum, kontor eller walk-in closet – valen är många.
Badrummet är fräscht med klinkergolv i grått och kaklade vita väggar. Här finns wc och duschhörna samt en modern avställningsplats med ovanpåliggande handfat och kommod i grå nyans med gott om förvaring. Här finns tvättmaskin som underlättar vardagen. Ett takfönster bidrar med rikligt ljusinsläpp och vädringsmöjlighet. Originaldetaljer som element och spegelskåp har fint bevarats och bryter av mot den mer moderna känslan.

