Rumsbeskrivning: Villan disponeras enligt följande:
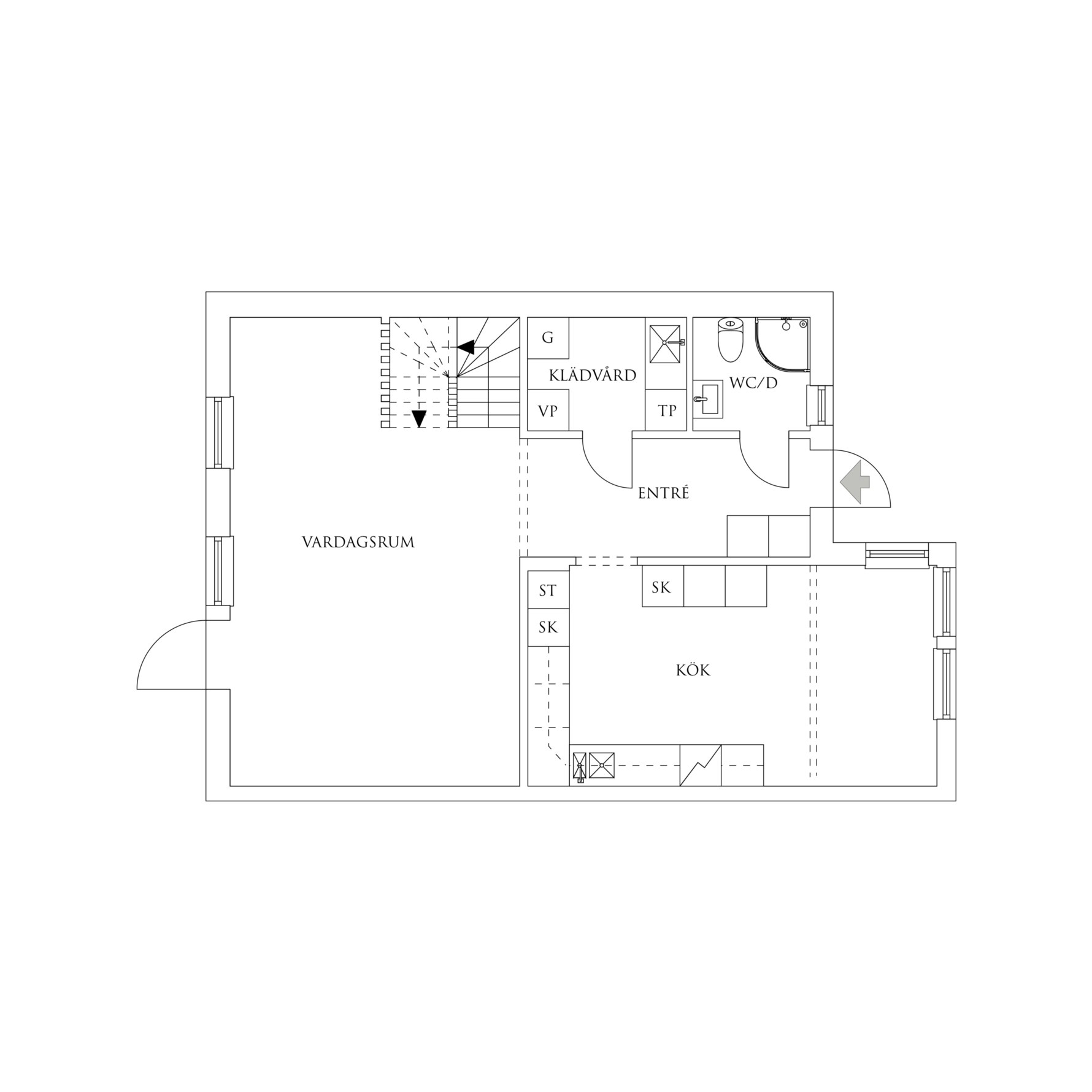
Innanför ytterdörren möts ni av en rymlig, möblerbar hall. Direkt till vänster innanför entrédörren finns en garderob med plats att hänga av sig ytterkläder och skor. Golvet pryds av parkett och väggarna går i en ljus ton. Till höger om entrén finns badrummet som har ett ljusgrått kakel på väggarna med ett matchande klinkergolv. Badrummet är utrustat med dusch, toalett och handfat med kommod. Ett vädringsfönster finns här. Därefter ligger tvättstugan som är utrustat med tvättmaskin och torktumlare. Det finns även en ho med hyllor ovanför. Frånluftsvärmepumpen (-17) är också här. Köket finns till vänster innanför entrén och går i ett smakfullt utförande med vita köksluckor. Ovanför arbetsbänken sitter ett ljust kakel. Gott om förvaringsmöjligheter finns i över- och underskåpen. Köket är utrustat med inbyggnadsugn, spishäll, fläkt, diskmaskin och kyl/frys i fullhöjd. Vid fönstret finns plats för ett köksbord. På golvet finns ett klinkergolv och väggarna går i en vit ton. Vardagsrummet är rejält tilltaget. Här finns plats för både soffgrupp och matsalsbord. Golvet pryds av parkett och väggarna är tapetserade i vitt. Stora fönsterpartier ger hela rummet ett fint ljusinsläpp och här kan man bjuda över vänner och familj på middagar utan att det känns trångt. Från vardagsrummet har ni utgång till ett underbart trädäck i västerläge helt fritt från insyn. Här njuter ni av solen under eftermiddag och kväll.
En trappa leder er upp till andra våningen. Här möts ni av en rymlig övre hall med plats för viss möblering. Hallen binder samman sovrummen på ett trevligt sätt. Det finns även en klädkammare som ger huset goda förvaringsmöjligheter. På detta plan finns ett sovrum med plats för dubbelsäng med tillhörande sängbord. En garderob finns här. På golvet ligger en heltäckningsmatta och väggarna är ljusa. Sovrum två har en plastmatta på golvet och väggar som går i ett vitt utförande. Sovrum tre har även det heltäckningsmatta samt tapetserade väggar. Härifrån har ni utgång till en underbar balkong i österläge. Perfekt att sitta här och njuta av en kopp kaffe. Det fjärde sovrummet har plastmatta på golvet och vita väggar. Badrummet är helkaklad med vitt kakel på väggarna samt klinkergolv. Här finns badkar, handfat med kommod, toalett och badrumsskåp.
