Huset disponeras enligt följande:
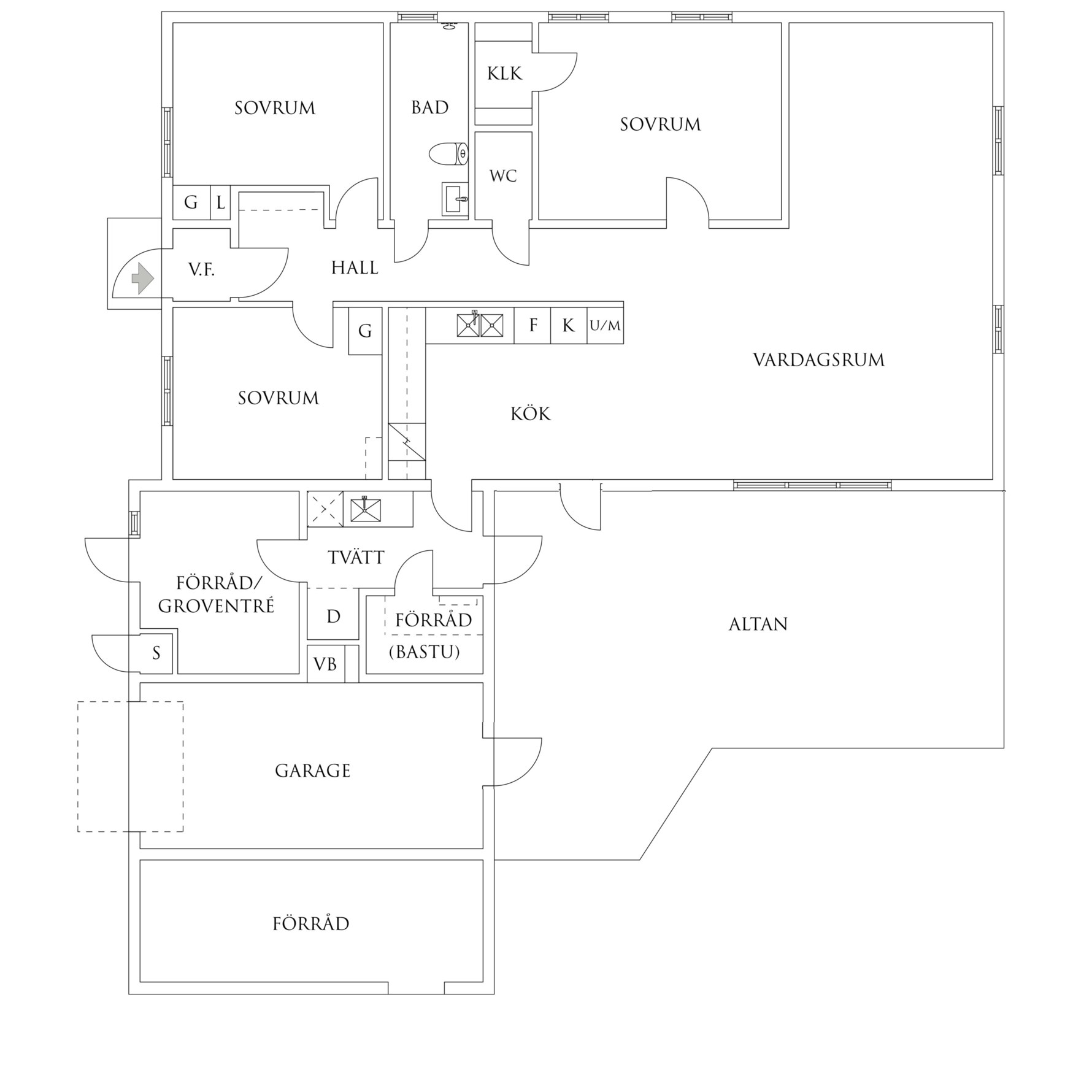
Välkommen in i hallen, här möts man med avhängningsmöjligheter direkt till vänster. På golvet ligger ett parkettgolv i Holländskt mönster som sträcker sig vidare in i vardagsrummet. Två av husets sovrum nås till både höger och vänster. Båda med parkettgolv. Längre in i hallen nås badrum och gäst-WC. Elegant renoverat med grått klinker och vitt kakel. Vägghängd WC underlättar städningen.
Vidare in öppnar ett ljust och hemtrevligt vardagsrum upp sig. Den L-formade ytan kan avdelas till ett extra sov- eller arbetsrum för den som är i behov. Köket ligger i en behaglig halvöppen planlösning och erbjuder goda förvarings- och arbetsytor. Modernt med ugn och mikro i ståhöjd, övrig maskinell utrusning består av kyl och frys i fullhöjd, fläkt, induktionshäll och diskmaskin. Bänkskiva i ek och ett gråvitt kakel ovan. Vita skåpsluckor i allmogestil. Från vardagsrummet nås husets tredje sovrum, golvet är belagt med en heltäckningsmatta (parkettgolv under denna). Från det tredje sovrummet nås en klädkammare.
Från köket nås tvättstuga, förråd och groventré. Ett kliv ut och en stor insynsskyddad altan nås. Plats för stora sällskap i ett solsäkert läge. Tomten har fina ytor för både odling och lek. Gott om utrymme för studsmatta och rekreation.
Området erbjuder direkt närhet till kommunikationer, service (bl.a pizzeria och café ) och hela två förskolor. Den närmsta är Toredalsgatans förskola som ligger ca. 100 meter från huset. Inom några minuters promenad ligger även Lerlyckeskolan (F-6).
Välkomna på visning!

