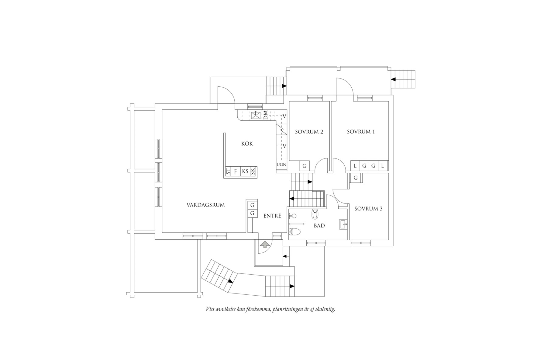
Entréplan,
Hall med plats för ytterkläder och förvaring i garderob med skjutdörrar.
Luftigt vardagsrum i vinkel med fina ljusinsläpp och plats för både soffgrupp och ett stort matbord i anslutning till köket. Parkettgolv och fin träpanel i taket.
Välutrustat kök med bra arbetsytor och förvaring. Utgång från köket till en mysig altan.
En halvtrappa upp från entréplanet ligger tre sovrum, varav ett större med egen utgång till trädgården. I det större sovrummet finns även platsbyggd förvaring med skjutdörrar.
Badrum med dusch och fönster. Kakel på väggar och klinker på golvet.
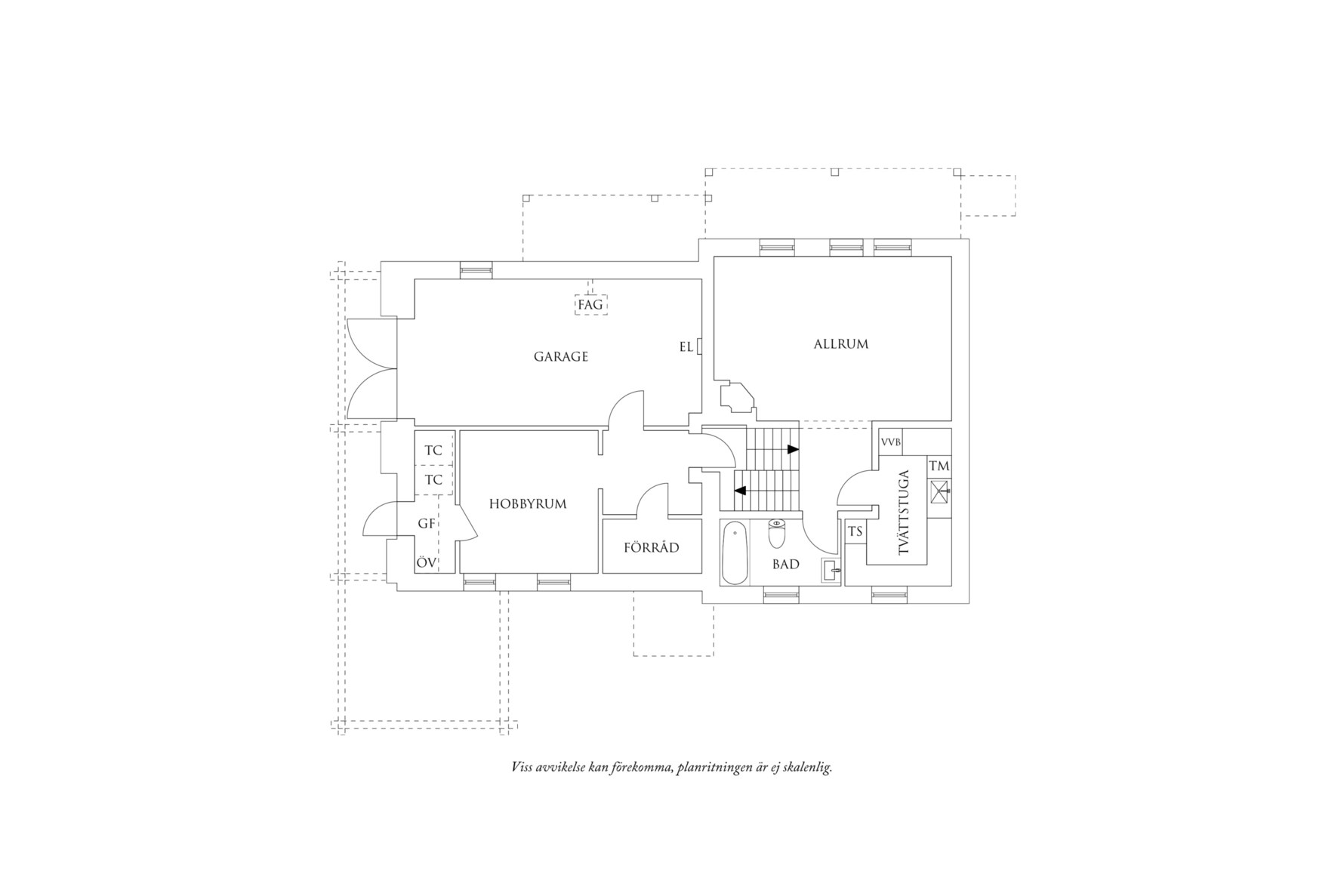
En halvtrappa ner från entréplanet ligger ett stort allrum med en murad öppen spis.
Badrum med badkar och fönster. Kakel på väggar och klinker med värmeslingor på golvet.
Tvättstuga med tvättmaskin, torktumlare och tvättho. Ventilations/värme system och varmvattenberedare.
Ytterligare en halvtrappa ner ligger ett förråd och ett allrum med egen utgång. Garage i anslutning.

