Välkommen till detta magnifika hem i hjärtat av Örgryte!
Denna exklusiva New England inspirerande pärla sträcker sig över tre våningar och erbjuder hela 9 rum inklusive källare med genomgående golvvärme. Här finner ni en harmonisk balans mellan elegans och bekvämlighet.
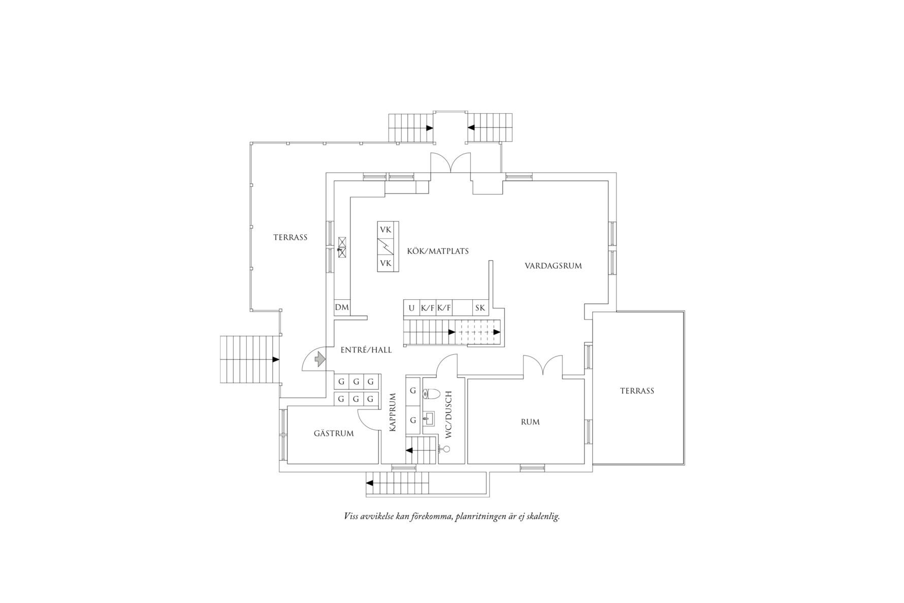
När ni stiger in i huset möts ni av en rymlig och ljus hal med ett tidlöst klinkergolv. Till vänster om hallen finner ni bostadens hjärta- det magiskt fina köket med öppen planlösning mot
vardagsrummet.
Köket är utrustat med vitvaror från Gaggenau och bänkskivor i sten, vilket gör det till en dröm för alla som älskar att laga mat. Här finns gott om utrymme för matlagning samt sociala stunder, vilket toppas av med den mycket fina kakelugnen. I övrigt är köket utrustat med två kombinerande kyl med frys, varmluftsugn, ångugn samt ett skafferi som fortsätter under trappar med plats för god förvaring.
Den öppna planlösningen ansluter köket till ett härligt vardagsrum samt ett tv-rum eller bibliotek som skapar den perfekta miljön för umgänge och avkoppling.
Från vardagsrummen kliver man ut till en väl tilltagen veranda samt en plan trädgård och ett soldäck för den som vill njuta av sommarens varma soldagar.
Det finns även ett arbetsrum och ett badrum som disponeras på detta plan.
På övre plan möts ni av ett litet allrum och härifrån nås det fantastiska master bedroom som erbjuder både walk-in closet samt ett privat badrum. Härifrån når ni även den övre terrassen med utsikt över den trevliga omgivningen.
Ytterligare två sovrum finner ni på detta plan samt bostadens andra badrum och en praktisk tvättstuga.
Husets inredda källare erbjuder ytterligare möjligheter för avkoppling och underhållning. Generös takhöjd om ca 2,5 meter. Här finner ni två väl tilltagna sovrum, ett smakfullt badrum, härlig vinkällare samt två generösa rum som kan inredas som spelrum, biograf, gym eller det perfekta ungdoms hänget. Denna delen av bostaden har en egen in och utgång och kan också enkelt hyras ut med möjlighet för god inkomst.
Utanför källaringången finns ytterligare ett rymligt förråd.
Detta hus är en perfekt kombination av modern elegans och bekvämlighet, det erbjuder allt ni behöver för att leva ett bekvämt och lyxigt liv i Örgryte.
Välkommen!
