Hela huset har äldre ytskikt, vilket ger en fin möjlighet att sätta sin egen prägel på bostaden.
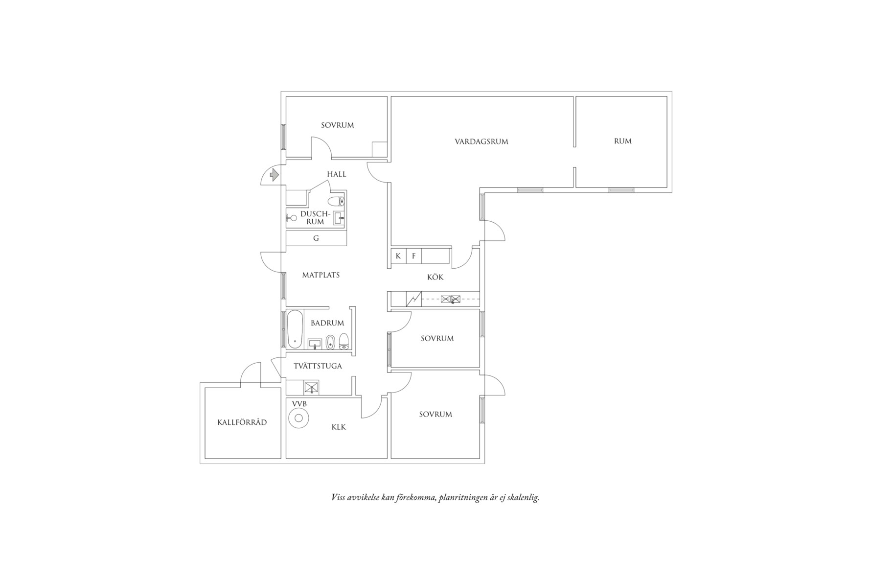
Hall – Välkomnande hall med plats för avhängning. Direkt till höger ligger duschrummet och till vänster finner du sovrum 1, perfekt som gästrum eller kontor.
Vardagsrum – Generöst och inbjudande vardagsrum i vinkel, vilket skapar en luftig och social yta. I den inre delen finns sovrum 2, som även kan användas som arbetsrum eller en mysig tv-hörna.
Kök & Matrum – Praktiskt kök med anslutning till matrummet, som har en smidig garderobsvägg för extra förvaring. Köket har äldre vitvaror med dubbla kyl och frysar där en kyl och frys är ur funktion.
Sovrum 3 & 4 – Vidare in i huset ligger sovrum 3 samt master bedroom (sovrum 4), som har gott om plats för både dubbelsäng och förvaring.
Badrum & Tvättstuga – Badrummet är väl tilltaget och komplementeras av en separat tvättstuga, som har utgång till entré sidan av byggnaden.
Ett hem med välplanerade ytor och stor potential för dig som vill skapa ditt drömboende!


