Välkomna till detta härliga enplanshus med ett utmärkt läge i området! Här får ni ett välplanerat boende med funktionella och ljusa rum.
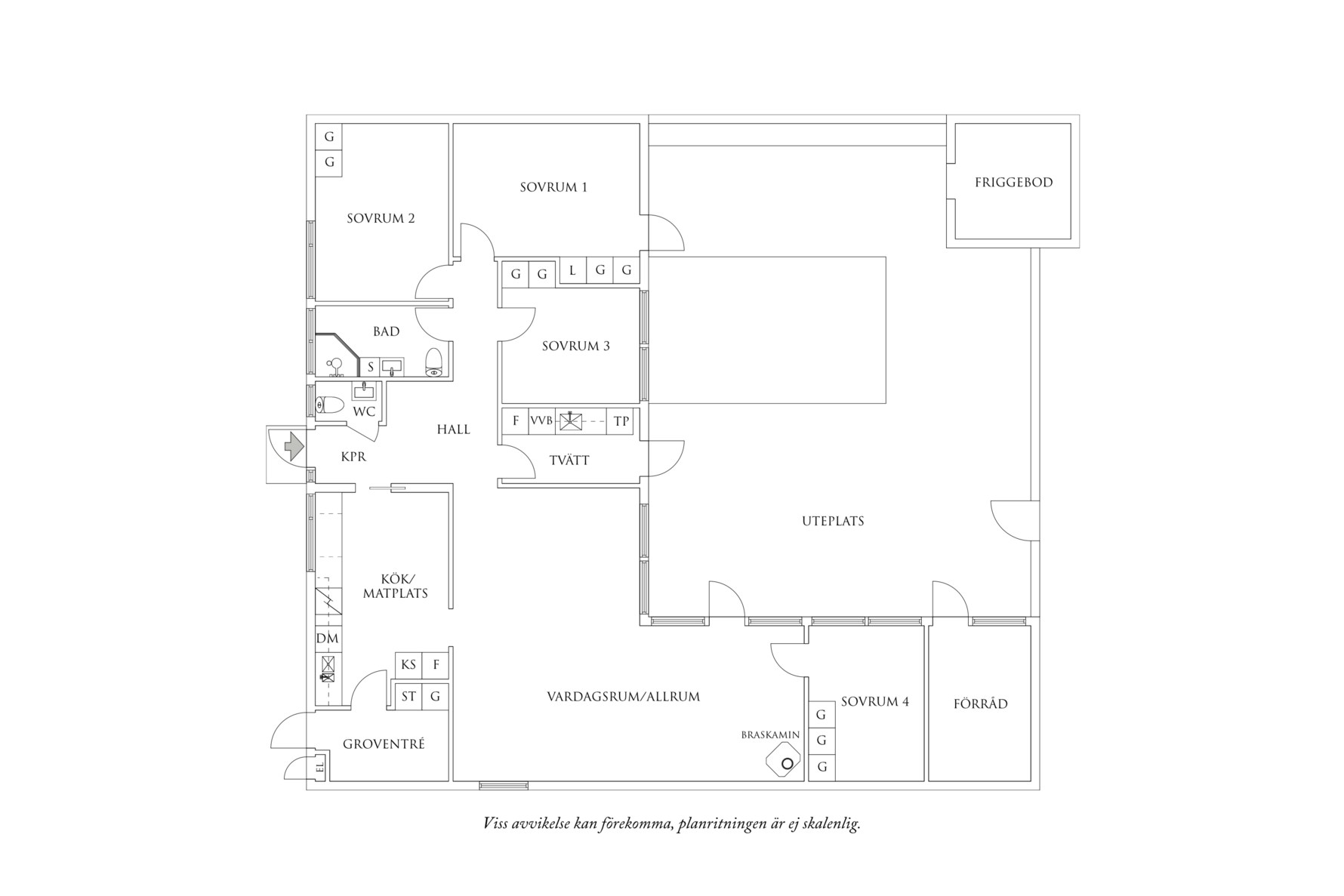
Huset erbjuder en rymlig hall som leder vidare till ett kök med matplats – en perfekt plats för både vardagsmål och samvaro. Trivsamt kök med fina köksluckor, kyl och frys i fullhöjd, vackert vitrinskåp, spishäll med ugn, fläkt och diskmaskin. Från köket finns ingång till en praktisk groventré som har en förvaring att hänga ytterkläder samt två garderober.
Det rymliga vardagsrummet i vinkel ger en luftig känsla och har en behaglig braskamin i täljsten, som både värmer och skapar en mysig atmosfär under kyligare dagar. Från vardagsrummet nås den tilltalande uteplatsen som har ett privat läge, idealisk för avkoppling eller trevliga stunder med familj och vänner.
Huset rymmer fyra bra sovrum, varav alla har bra storlek och ger goda möjligheter för både vuxna och barn. Från Masterbedroom når man ut till den trevliga uteplatsen.
Smakfullt badrum med klinkergolv som har golvvärme och helkaklade ljusa väggar. Fin kommod med tvättställ, duschplats, och wc.
Tvättstugan har tvättmaskin och torktumlare. Vvb och extra frys. Från tvättstugan kommer man ut till trädgården.
En utmärkt kombination av funktionalitet, bekvämlighet och ett fantastiskt läge!


