Bostaden disponeras enligt nedan:
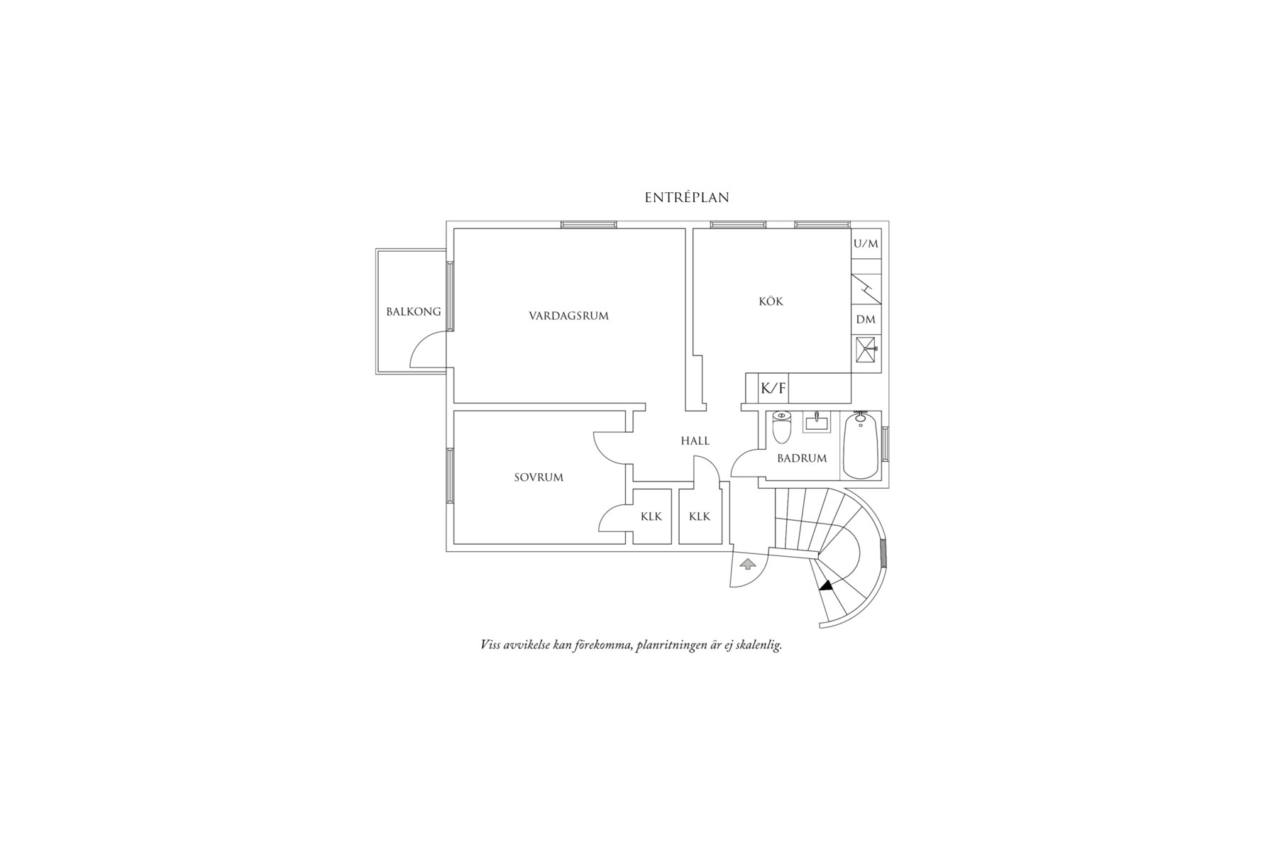
Upp för trapporna och in genom ytterdörren möts ni av en hall med plats för avhängning av ytterkläder och skor. Golvet kläs praktiskt av klinker som sedan övergår till genomgående fint trägolv och väggarna går i en ljusgrå ton.
Ett par steg in möts ni av ett fint ljusinsläpp från rummens alla stora fönster som sprider sig i hela bostaden. Inbjudande och fint vardagsrum med mycket rymd och där flera möbleringsalternativ erbjuds. Ni får plats med såväl soffgrupp, tv-bänk, byrå samt övrigt möblemang. Från vardagsrummet har ni direkt utgång till den underbara söderbalkongen som med sitt höga och fria läge bjuder på utsikt över takåsar och grönska.
Stilrent och modernt kök med vit köksinredning, mörk stenskiva och vitt stänkskydd. Här finner ni generös förvaring bakom flertalet skåp och lådor samt yta för den som tycker om att laga mat. Intill fönstret får ett stort matbord för hela familjen att samlas runt plats. Den maskinella utrustningen består av kolfilterfläkt, inbyggd ugn, inbyggd mikro, spishäll i keramik, integrerad diskmaskin samt kombinerad kyl och frys. Samtliga vitvaror är i rostfritt utförande. En fondvägg av mönstrad tapet blir en snygg detalj i rummet.
På entréplan finner ni ett rofyllt och fint sovrum som med sina jordnära färger och toner skapar en känsla av harmoni. En plats att komma ner i varv efter en lång dag. Här får en dubbelsäng, sidobord samt garderober för förvaring plats. Det vackra originalgolvet smälter in och blir en helhet med rummet. Stort fönster bidrar till ljusinsläpp.
I anslutning till hallen når ni ett av bostadens två badrum. På golvet pryds ett 6-kantigt marockanskt klinker i svart/grått och vitt kakel på väggarna. Inredningen består av vägghängd wc, handfatskommod, inbyggt badkar med regn-dusch, spegel med belysning samt handdukstork. Härlig golvvärme för extra komfort erbjuds.
En trappa upp når ni de resterande privata delarna som alla nås från den övre hallen. Rymligt och ljust allrum med stora takfönster som öppnar upp och släpper in ljus hela dagen. Här kan ni inreda med soffgrupp, byrå eller skrivbord. En vacker mönstrad tapet från William Morris & CO pryder stora delar av väggarna. Golvet är genomgående parkett från 2020 i alla rum. En generös walk-in-closet nås från allrummet och ger goda ytor till förvaring från golv till tak.
Master bedroom har gott om plats för en dubbelsäng, sidobord samt skrivbord. Två stora fönster bidrar till fint ljusinsläpp. Även här inne syns en vacker tapet från William Morris & CO med mönster i.
Det andra sovrummet här uppe är idag inrett som barnrum med säng, soffa, hörna med plats för pyssel och lek samt förvaring bakom en skjutdörrsgarderob.
Ni finner ett helkaklat badrum med mörkt klinkergolv och vitt kakel på väggarna i anslutning till den övre hallen. Inredningen består av vägghängd wc, handfatskommod, spegel, skåp för förvaring, duschhörna, handdukstork samt tvättmaskin och torktumlare som förenklar vardagens sysslor. Golvvärme för extra komfort.

