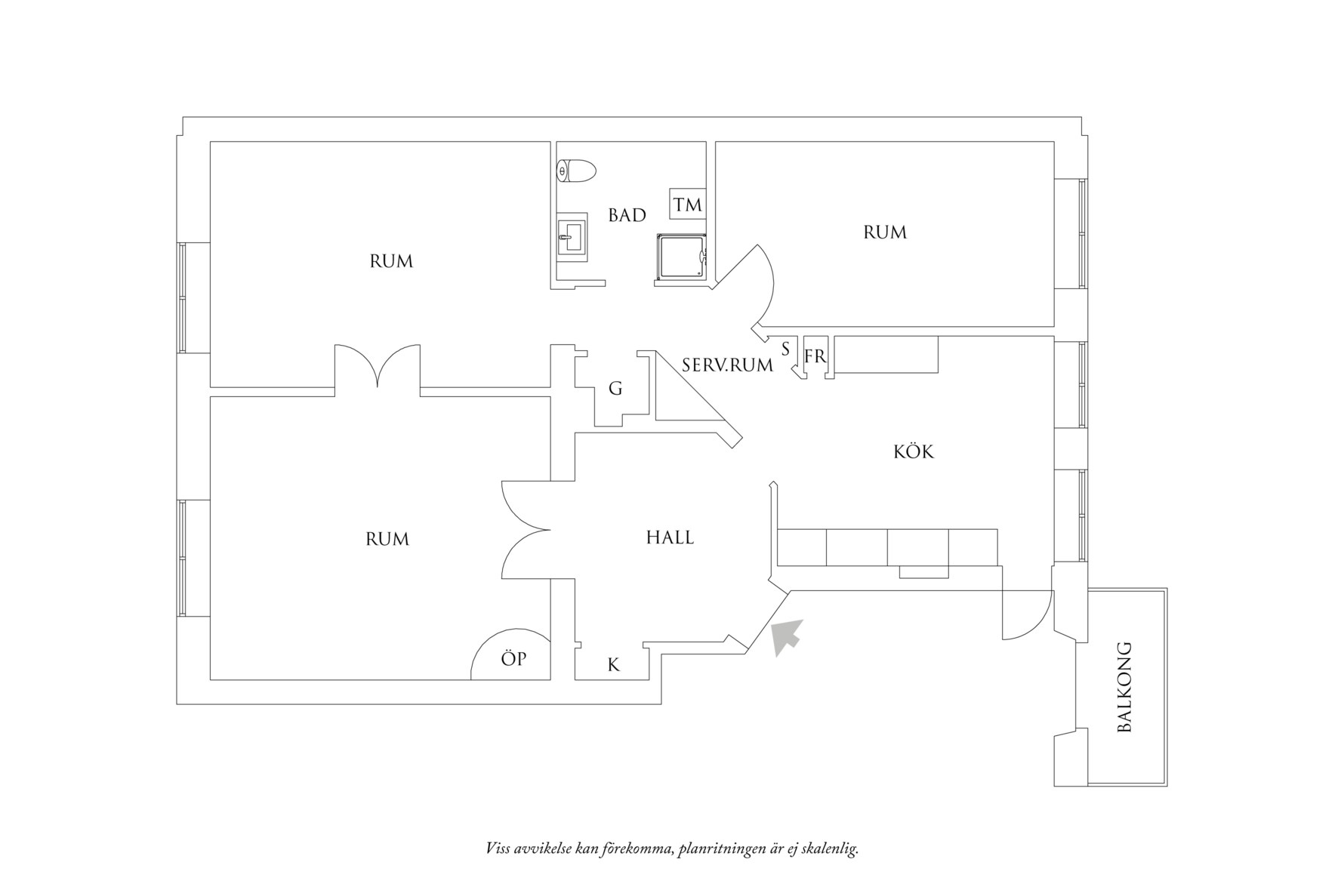
Lägenheten disponeras enligt nedan:
Vardagsrum och matsal/sovrum
Lägenheten har som nämnts en klassisk planlösning med rymliga och luftiga rum i fil. Rummen pryds av takrosetter och höga fotlister. Ljuset strömmar in genom generösa treluftsfönster med spröjs. Vardagsrummet har gott om plats för en stor soffgrupp med tillhörande möblemang. Härlig rymd och känsla. Den öppna spisen är pricken över i'et! Det som i dag används som sovrum kan självfallet användas som matsal och duka upp till stora middagar i goda vänners lag. Som sovrum finns det plats för dubbelsäng med nattduksbord och annan möblemang ryms lätt och ledigt. I båda rummen är golven belagda med ekparkett.
Sovrum
I rofyllt gårdsläge ligger ett mysigt sovrum med plats för både dubbelsäng och skrivbord. Det spröjsade treluftsfönstret fyller rummet med ljus och skapar, tillsammans med den generösa takhöjden, en härlig atmosfär.
Kök
Köket är inbjudande, och det finns gott om plats för ett stort matbord. Det är rejält tilltaget med bänk yta och förvaring.. Skåpen har vita luckor och lådor från Marbodal , och bänkskivan är i ett stycke ceasar stone. Ugnen, micro, fläkten och samt diskmaskin är rostfri design. Kyl och frys är integrerade. Kökets väggar är målade i vitt. De två höga fönstren med utsikt över innergården ger ett stort ljusinsläpp, och köket har även utgång till en delad balkong i västerläge där man kan sitta och njuta av solen och gårdslugnet.
Serveringsgång
En serveringsgång med serverings skåp och två inbyggda garderober från 1920-talet binder samman matsalen, sovrummet, köket och badrummet med hallen.
Badrum
Badrummet som är helkaklat, inrymmer duschhörna, kombinerad tvättmaskin och torktumlare samt WC. Det finns självklart också golvvärme. Taket har infällda och dimbara spottar som ger en bra och behaglig belysning.
Hall
Hallen är välkomnande och öppnar mot vardagsrummet. Ljuset strömmar in, och liksom i övriga lägenheten är det högt i tak. Det finns gott om plats för hatthylla, skoställ, sittbänk med mera. Väggarna är målade i brutet vitt och golvet belagt med ekparkett

