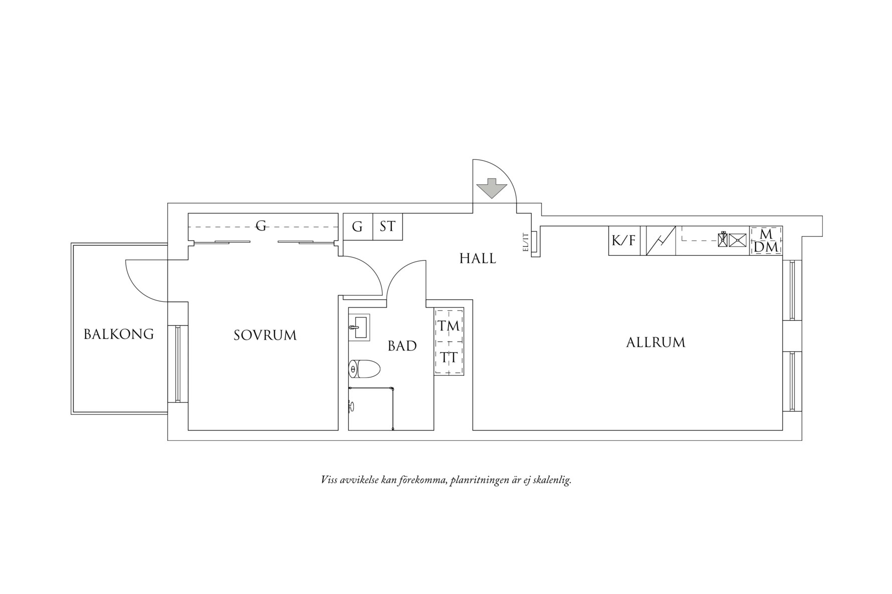
Bostaden disponeras enligt följande:
Innanför ytterdörren möts man av en hall med plats för fri avhängning samt förvaringsmöjligheter i en garderob och ett städskåp. Lägenheten har genomgående tvåstavig mattlackad ekparkett och vitmålade väggar. Alla rum har även vattenburen golvvärme vilket ger ett behagligt inomhusklimat.
Trivsamma sällskapsytor med vardagsrum och kök i öppet samband som har ljusinsläpp från två fönster. Här kan man inreda med soffhörna och matsalsbord och det finns även en perfekt plats för en arbetshörna.
Tidlöst kök från Vedum som har släta vita luckor med dämpning och fullutdragslådor. Bänkytor i ljusgrå laminat med underlimmad diskho och stänkskydd i vitt kakel. Vitvaror från Siemens som utgörs av induktionshäll, kolfilterfläkt, inbyggnadsugn, inbyggnadsmikro, integrerad diskmaskin samt kyl med frys.
Rymligt och rofyllt sovrum med utgång till bostadens härliga gårdsbalkong som bjuder på älvutsikt. Sovrummet har plats för dubbelsäng och goda förvaringsmöjligheter i en skjutdörrsgarderob.
Modernt badrum med ljusgrå klinker och vitt kakel. Inredningen består av vägghängd wc, handfatskommod, spegelskåp samt duschhörna med vikdörrar i glas. I badrummet finns även en tvättsektion med tvättmaskin och torktumlare från Siemens, arbetsbänk samt överskåp.
Lindholmen är ett innovativt område under utveckling som präglas av både gammal och ny bebyggelse, hotell- och kontorsverksamheter samt Lindholmen Science Park. I området finns livsmedelsbutiker, Backateatern, restauranger samt förskolor, grundskolor och gymnasium och de vackra promenadstråken på kajen längs med älven lockar människor från hela staden och skapar liv och rörelse. I området planeras Karlastaden, där bland annat Nordens högsta skyskrapa håller på att byggas. Som om inte det vore nog finns det även långt gångna planer på att binda samman Lindholmen och Göteborgs stadskärna med en linbana. Tack vare det centrala läget och kommunikationerna med kollektivtrafiken är det enkelt att bo och klara sig här utan bil. Bussarna går var sjätte minut och det tar bara 6 minuter till centralstationen. Väljer du vägen över älven går två olika båtlinjer i strid ström.

