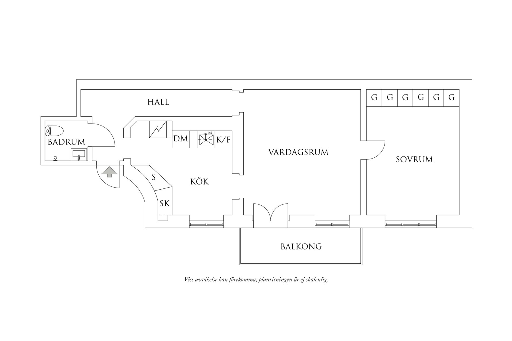
Bostadens yta disponeras enligt följande:
Hall
Ett par trappor upp välkomnas vi in i en precis lagom stor hall. Plats för ytterkläder och skor i nisch och plats för antingen förvaringsmöbler eller skrivbord finns i gången mot vardagsrum. Köket nås direkt till höger.
Golv: Klinker intill entrén och framtaget trägolv.
Väggar: Målade bruten vit.
Kök
Fint kök med sobra materialval signerat HTH renoverat år 2007. Vita skåpsluckor, vitt kakel och bänkskiva i valnöt. Bra och genomtänkta arbetsytor och förvaringslösningar, en hurts på hjul som både rymmer redskap och utgör extra arbetsyta och det gamla kallskafferiet och serveringsskåpet finns bevarat sedan huset byggdes. Den maskinella utrustningen består av: Spishäll (AEG/Electrolux), köksfläkt (Fjäråskupan), ugn och mikro (AEG/Electrolux), integrerad diskmaskin och kyl samt frys (AEG/Electrolux). Plats för ett köksbord för fyra personer intill fönstret.
Golv: Framtaget trägolv.
Väggar: Målade bruten vit.
Sällskapsrum
Väl tilltaget vardagsrum med stora fönster och access mot bostadens ljuvliga balkong, denna är västervänd och rymmer vänner och växter. Vardagsrummet är stort och lämnar flertalet möbleringsalternativ, plats för soffgrupp, bokhyllor och matbord. Vackra detaljer som skvallrar om en svunnen tid, högt i tak med fina stuckaturer och takrosett.
Golv: Framtaget trägolv.
Väggar: Målade bruten vit.
Sovrum
Intill ovan nås sovrummet som ligger tyst och lugnt in mot gården. Plats för dubbelsäng och tillhörande möblemang. Läshörna och byråer eller skrivbord. Mycket förvaringsmöjligheter lämnas via flertalet garderober.
Golv: Framtaget trägolv.
Väggar: Målade i kulör Sand.
Badrum
Badrummet nås ifrån hallen. Renoverat år 2011. Smakfulla val, väggarna är kaklade i vitt och golvet är belagt med klinker med underliggande komfortvärme. Utrustat med wc, handfat med kommod och spegel samt takdusch med vikbara glasade dörrar.

