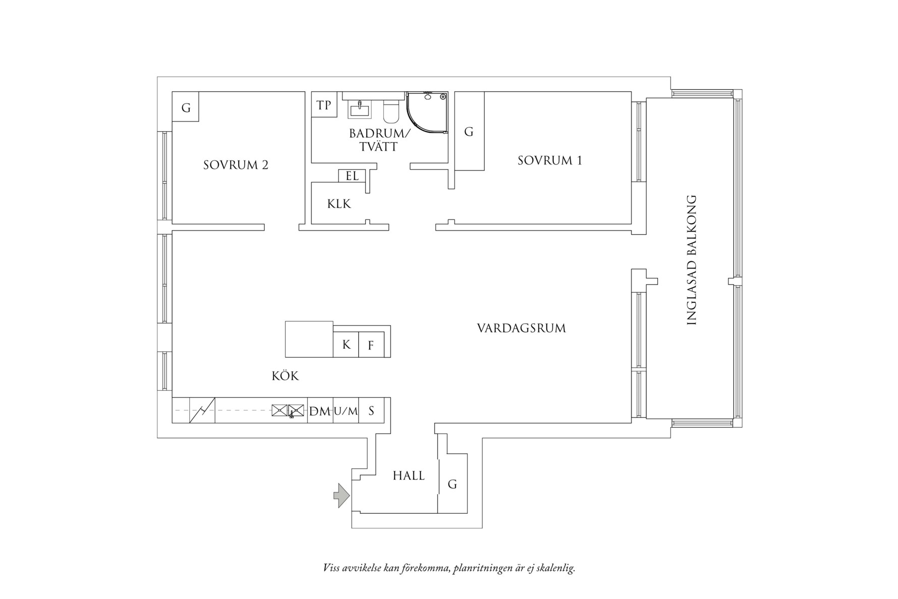
Bostaden disponeras enligt följande:
Innanför ytterdörren möts man av en hall med plats för avhängning samt en skjutdörrsgarderob. I hallen ligger praktisk klinkergolv och väggarna är målade i vitt och en gröngrå ton.
Lägenheten har härliga sällskapsytor med kök och vardagsrum i öppen planlösning, generösa fönsterpartier i två väderstreck samt utgång till en stor inglasad balkong om ca 20 kvm. Balkongen vetter mot innergården och blir som ett extra rum. Vardagsrummet kan inredas med soffhörna och matplats. Golvet kläs av ljus enstavsparkett och vitmålade väggar.
Stort och välplanerat kök som erbjuder generösa arbetsytor och bra förvaring. Köksinredning från Marbodal kombineras med bänkytor i ek och stänkskydd i kakel. Alla skåp fick nya handtag 2020. Den maskinella utrustningen utgörs av induktionshäll, ffrånluftsläkt, inbyggnadsugn, inbyggnadsmikro, diskmaskin samt kyl med frys i fullhöjd. Samtliga vitvaror är från Siemens och installerades 2008 förutom hällen som är från Electrolux och installerades 2020. Ljus enstavsparkett och vitmålade väggar. I köket ryms en större matplats invid fönstret.
Lägenheten största sovrum kan inredas med dubbelsäng och tillhörande sängbord. Goda förvaringsmöjligheter i en skjutdörrsgarderob. Ljus enstavsparkett och väggar målade i en mörkgrön ton. Ett stort fönster bidrar med ljusinsläpp.
Det andra sovrummet kan inredas med säng och arbetshörna. Förvaringsmöjligheter i en garderob. Ljus enstavsparkett och målade väggar i en gröngrå ton. Ett stort fönster bidrar med ljusinsläpp.
Via en inre hall med klädkammare nås lägenhetens badrum. Badrummet har klassiska materialval med mörkt klinkergolv och vitt kakel. Behaglig vardagslyx som golvvärme och handdukstork samt ny inredning från 2020 som består av handfatskommod, duschhörna med väggar i glas, kombimaskin från Bosch, skåp och arbetsyta.
I Nya Gårda bor ni i ett trevligt område som sträcker sig längs vackra Gullbergsån. Evenemangsstråket med Ullevi, Scandinavium och Filmstaden Bergakungen ligger alldeles i närheten och efter en kort promenad är ni inne i centrala Göteborg. Från närliggande Svingeln går flera buss- och spårvagnlinjer. På bekvämt gångavstånd ligger Friggagatan och Odinsgatan som har ett flertal caféer och restauranger, två välutrustade gym och en stor Coop. I närområdet finns även både vårdcentral och skolor.


