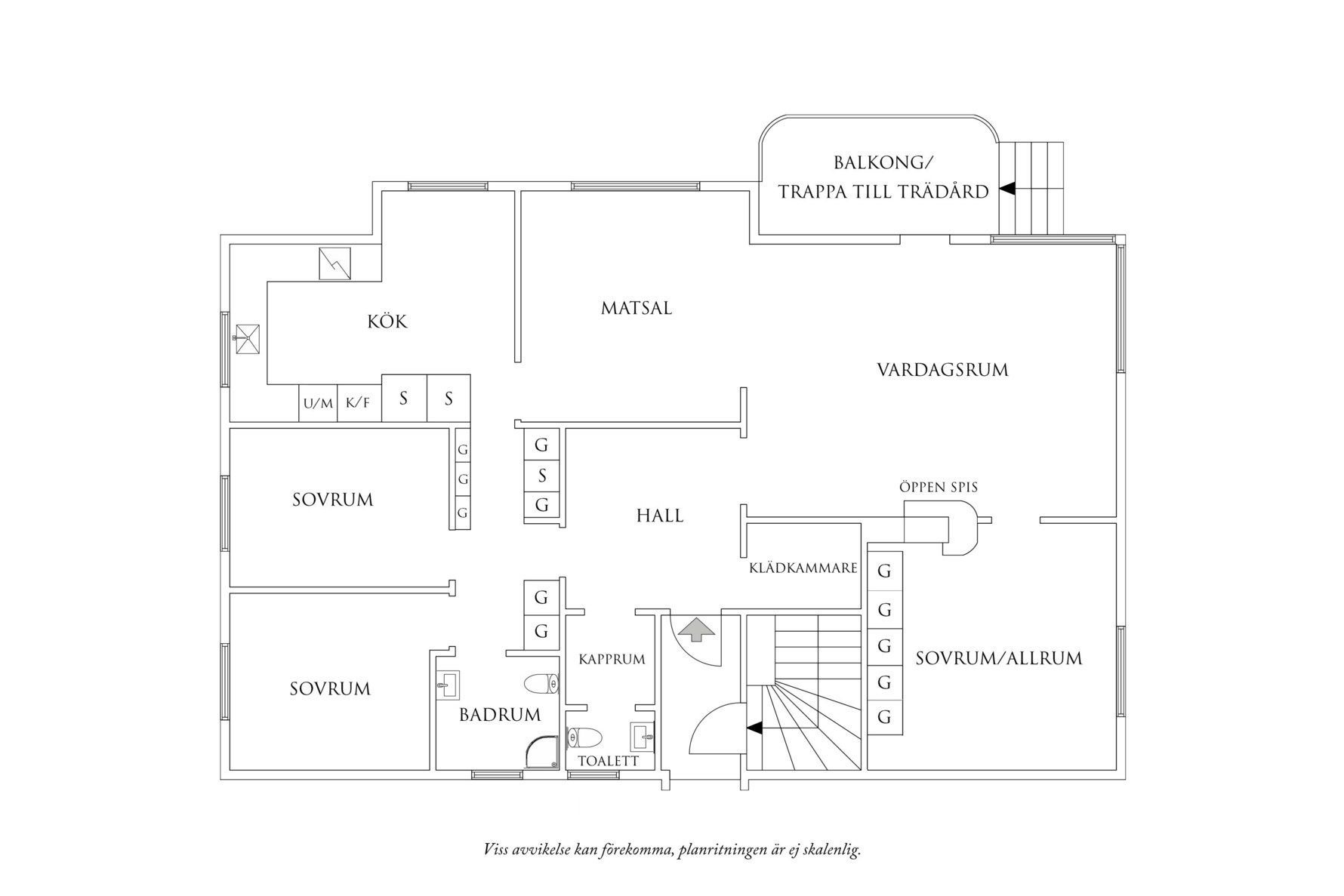
Lägenheten disponeras enligt nedan:
Innanför ytterdörren kliver ni in i en stor och luftig hall med generös yta att inreda med avlastningsmöbel. En anslutande klädkammare bidrar till goda förvaringsmöjligheter och till vänster finner ni ett praktiskt kapprum för avhängning av ytterkläder. På golvet ligger fint parkettgolv och väggarna är genomgående målade i en ljus färg.
Ett par steg in till höger når ni det öppna och inbjudande vardagsrummet som har ett otroligt fint ljusflöde som kommer från stora fönsterpartier. En fungerande öppen spis är en charmig detalj och en underbar plats att slå sig ner vid under de kalla månaderna när snön faller ner på utsidan. Vardagsrummet erbjuder flera möbleringsalternativ med soffgrupp, tv-bänk samt övrigt möblemang. Härifrån har ni direkt utgång till den magiska uteplatsen som erbjuder sol från morgon till kväll och genom att öppna dörren från vardagsrummet förlänger ni rummet. Här ute får loungemöbler plats och här skapas en villa-känsla med gräsmatta nedanför.
I anslutning till vardagsrummet finns en matsal som har plats för ett stort matbord med stolar för trevliga middagar med familj och vänner. Härligt ljusinsläpp från fönsterparti öppnar upp och ger rymd i rummet. Den generösa ytan ger flera möbleringsalternativ och rummet går att göra om till ett extra sovrum om behov finns.
Bostadens topprenoverade kök är platsbyggt från Nordiska kök har noga utvalda detaljer där inget har lämnats åt slumpen. Här erbjuds goda förvaringsmöjligheter i såväl högskåp till tak som lådor. Inredningen är i en harmonisk ljus ton och går fint ihop med bänkskiva och stänkskydd i exklusiv Carrara marmor. Inredningen utgörs av fläkt från Fjäråskåpan, induktionshäll, inbyggd ugn, inbyggd mikro, integrerad diskmaskin samt kombinerad kyl och frys. Samtliga vitvaror utom fläkt är från högkvalitativa Miele. Flertalet fönster bidrar till såväl ljus från två väderstreck som vädringsmöjligheter. Ett matbord med stolar från plats här inne. Golvet är en läcker detalj och går i svart/vit rutigt mönster.
En inre-hall med generösa förvaringsmöjligheter på båda sidor tar er till bostadens två andra sovrum. Det första är målat i en ljusgrå/beige kulör och är idag ett gästrum med kontorsplats. Rummet erbjuder flera möbleringsalternativ och går att inreda om kontor, gästrum, barnrum eller efter annat behov.
Bostadens tredje sovrum går i en mer ljusgrön ton och används idag som ett barnrum. Här ges flera möbleringsalternativ och går att inreda med säng, skrivbord, byrå samt övrigt möblemang. Ljust rum med härligt ljusinsläpp.
Längst ner i korridoren finner ni det helkaklade fräscha badrummet med terrakottafärgat klinkergolv och vitt kakel på väggarna. Inredningen består av wc, handfatskommod, spegelskåp, duschhörna samt hängare för handdukar.
Innanför kapprummet finns en gästtoalett inredd med wc och handfat. Praktiskt och optimal placering i förhållande till hallen och avhängningen av ytterkläder. Här inne är väggarna målade i grått och ett litet fönster släpper in fint ljus.

