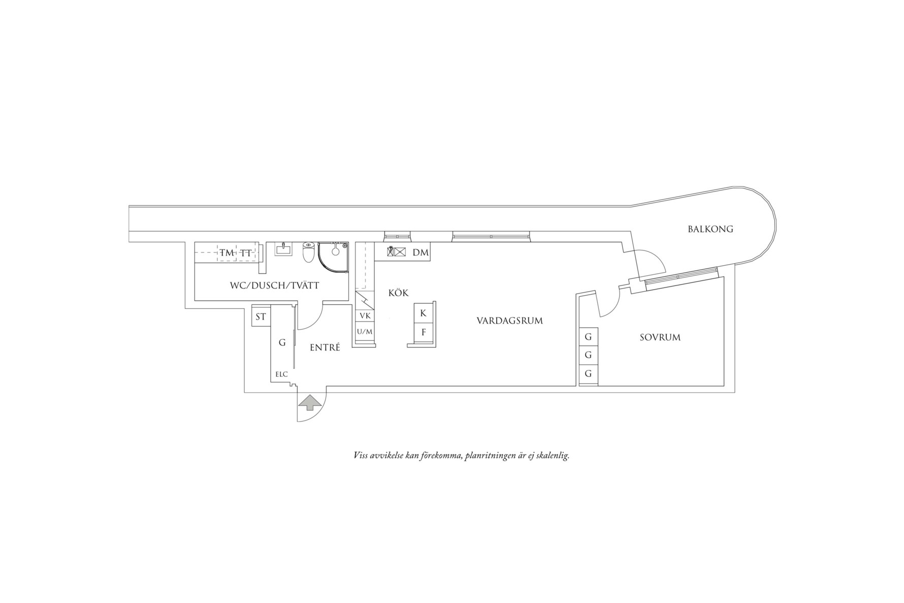
Innanför ytterdörren möts man av en hall med plats för fri avhängning samt goda förvaringsmöjligheter i en generös skjutdörrsgarderob. Lägenheten har genomgående parkettgolv och målade väggar.
Härliga sociala ytor som kan möbleras med både soffgrupp och matplats för större middagssällskap. De stora fönsterpartierna och öppningen mot balkongen ger rikligt med ljusinsläpp. Balkongen är generöst utformad och har ett fint formspråk som är karaktäristiskt för huset.
Välplanerat arbetskök som ligger i halvöppen planlösning med vardagsrummet. Köksinredning från Marbodal kombineras med bänkskiva i laminat och stänkskydd i kakel. Kvalitativa vitvaror som utgörs av induktionshäll, kolfilterfläkt, inbyggnadsugn med varmluftsfunktion, inbyggnadsmikro, integrerad diskmaskin, inbyggd vinkyl med två kylzoner samt kyl och frys i fullhöjd. Samtliga vitvaror är från Siemens och installerades 2018 förutom vinkylen.
Avskilt från de sociala ytorna finner ni ett rymligt sovrum som har gott om plats för dubbelsäng med tillhörande sängbord samt förvaringsmöjligheter i tre garderober. Sovrummet har fint ljusinsläpp från ett generöst fönsterparti.
Stort och välplanerat badrum med separat tvättavdelning. Grått klinkergolv med underliggande golvvärme och helkaklade väggar i vitt. Inredningen består av wc, handfatskommod, spegel samt duschhörna med vikväggar. Tvättavdelningen har tvättmaskin och torktumlare från Siemens med ovanliggande arbetsyta och förvaringsskåp.
Brf Jarlaplatsen är ett spännande modernt inslag i Johannebergs funkisområde och bjuder på ett av stans mest attraktiva lägen. Johanneberg är ett mycket populärt område som erbjuder såväl mataffärer, restauranger, småbutiker, träningsanläggningar, bageri, blomsteraffär och närhet till Chalmers. I området finns flera lekplatser, förskolor och skolor samt Universeum vilket passar barnfamiljen perfekt. Utmärkta busskommunikationer och direkt närhet till Korsvägen vilken är en av stans största knutpunkter för kollektivtrafiken nås på ett par minuter. Ta en promenad till Näckrosdammen, traska ner till Götaplatsen eller njut av musiken på Konserthuset. Valmöjligheterna är många!

