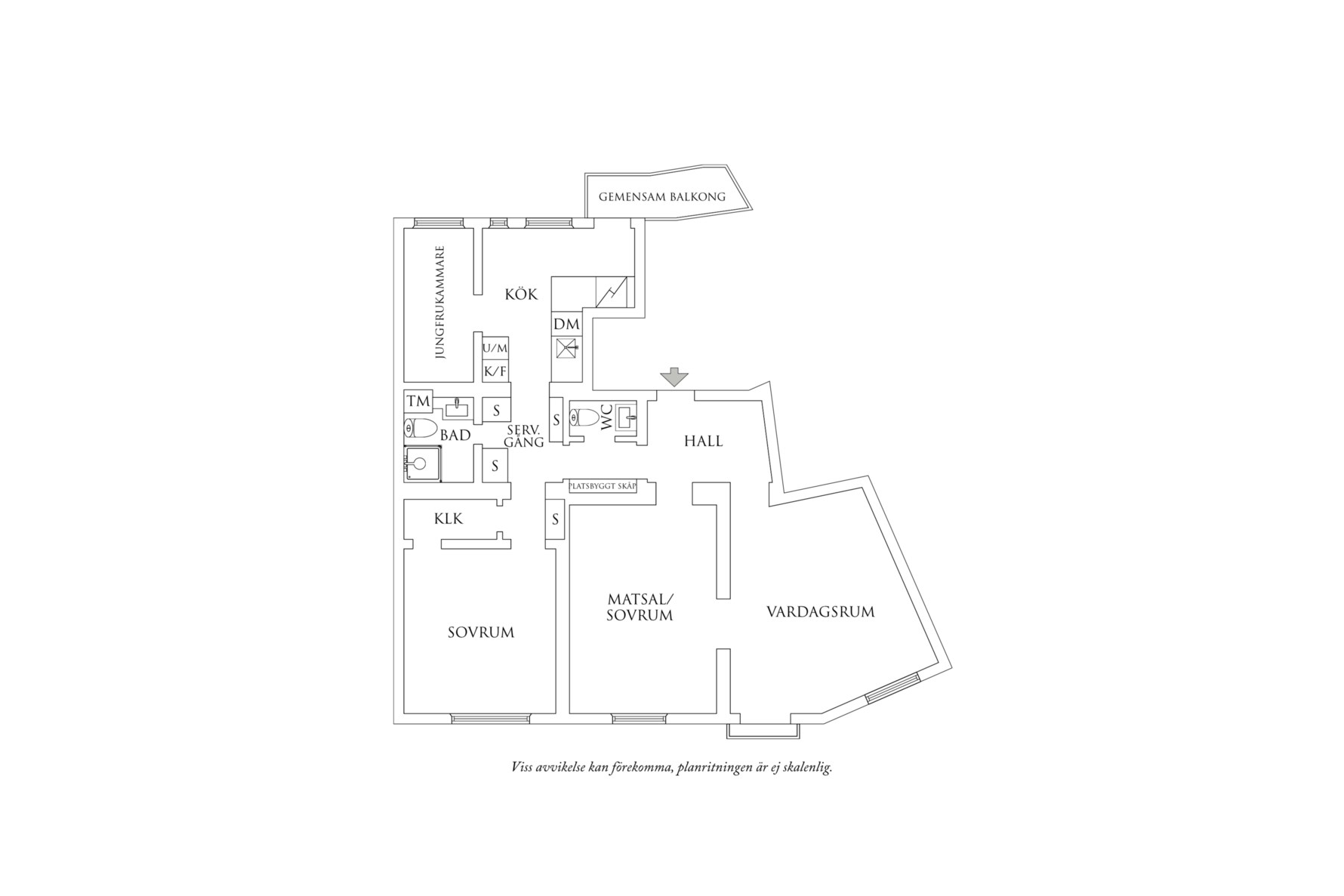
Bostadens yta disponeras enligt följande:
Hall
Vi tar hissen upp och välkomnas in via tidsenlig entré. Rymlig och möblerbar hall med plats för tamburmajor och skor.
Golv: Stavparkett av ek i original.
Väggar: Målade i bruten vit nyans.
Vardagsrum
Från hallen kliver vi in i detta ljusa och luftiga rum. Givetvis finner vi de förväntade detaljerna som tjugotalsklassicismen erbjuder i form av listverk och generös takhöjd. Spröjsade fönster med vy över Linnéplatsen och en fransk balkong med utsikt mot Rosengatan. Flertalet möbleringsalternativ lämnas med plats för soffgrupp och sittgrupp.
Golv: Fiskbensparkett av ek i original.
Väggar: Målade i bruten vit nyans.
Matsal/sovrum
I fil med vardagsrummet nås det som idag disponeras som matsal, ett rum som inbjuder till middagar med många vänner kring matbordet. Alla fina detaljer återfinns såklart även här. Den "runtgående" planlösningen ger dessutom en skön struktur som gör att man har ett härligt flöde mellan rummen. Om man istället önskar använda rummet som sovrum så ryms här en rejäl dubbelsäng med sängbord, förvaringsmöbler och kanske ett skrivbord.
Golv: Fiskbensparkett av ek i original.
Väggar: Målade i bruten vit nyans.
Serveringsgång
Vi leds vidare in i bostaden genom serveringsgången med platsbyggd bokhylla och generöst med platsbyggda garderober och skåp.
Golv: Skeppsgolv.
Väggar: Målade i bruten vit nyans.
Kök
Totalrenoverat enligt estetikens alla regler år 2009 signerat Kvik med släta vita luckor, bänkskiva av granit och ovansittande stänkskydd i mosaik. Maskinell utrustning från kvalitativa Siemens bestående av: Induktionshäll, spisfläkt (Verona), integrerad diskmaskin, varmluftsugn och mikrovågsugn i ergonomisk höjd, kyl och frys i rostfritt utförande och vinkyl (Cava 56-BI). Bra arbetsytor och goda förvaringslösningar. I taket sitter infällda spotlights. Ett matbord ryms med enkelhet intill det lilla fönstret där det en gång i tiden stod ett kalkskafferi.
Golv: Stengods.
Väggar: Målade vita.
Balkong
Med access från köket nås den väl tilltagna balkongen. Belägen mot gårdens grönska.
Sovrum
Intill köket finner vi den gamla pigkammaren som är i perfekt storlek för barnet, gästen eller som kontor. Här får vi plats med både säng och arbetsplats.
Golv: Stavparkett av ek i original.
Väggar: Målade i bruten vit nyans.
Sovrum
Sovrummet är stort och rymmer gott och väl en dubbelsäng med tillhörande möblemang och mängder med förvaringsmöjligheter erbjuds via klädkammare som nås både härifrån och ifrån serveringsgången.
Golv: Brädgolv (furu) i original.
Väggar: Målade i bruten vit nyans.
Badrum
Klassiskt utförande med helkaklade väggar i vitt och svart, golv belagt med ljusgrå och svart klinker med underliggande komfortvärme. Badrummet är utrustat wc, handfat med kommod, spegel, öppna hyllplan, handdukstork och dusch med invikbara dörrar samt tvättmaskin (Bosch, 2020).
Gäst-wc
Utrustad med wc och handfat. Vitmålade väggar med vitmålad pärlspont och golv belagt med marmorerad klinker.

