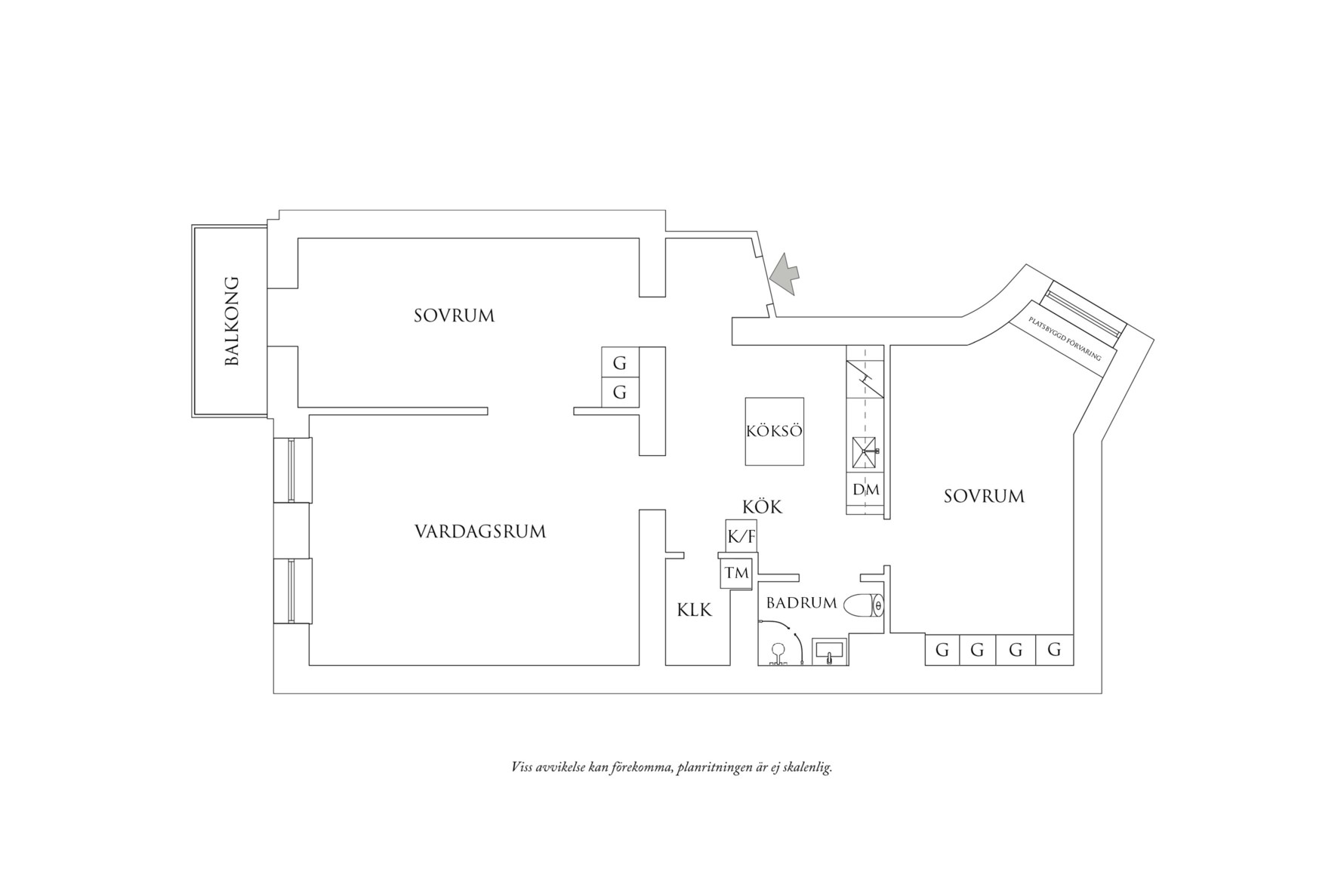
Innanför ytterdörren möts ni av hall med plats för fri avhängning. Lägenhetens väggar är till största del målade i vitt med grå högsockel och ljust fiskbensparkettgolv.
Direkt från hallen når ni bostadens kök som renoverades 2020. Köket har mörk köksinredning kombinerat med stänkskydd och bänkskiva i ljusgrå komposit. Den maskinella utrustningen består av induktionshäll, kolfilterfläkt, inbyggnadsugn, inbyggnadsmikro, integrerad diskmaskin samt kyl med frys . I köket finns en köksö med plats för två barstolar. Köksön är förberedd att installera vinkyl i om så önskas.
I anslutning till köket har bostaden en stor klädkammare, där ni finner en kombinerad tvättmaskin/torktumlare.
Rymligt vardagsrum med två stora fönster med djupa nischer som bidrar till ett underbart ljusinsläpp. Vardagsrummet kan inredas med soffhörna, matsalsbord och övrigt möblemang. Här finns även vackra stuckaturer samt takrosett.
Lägenhetens första sovrum har gott om plats för en dubbelsäng med tillhörande möblemang. Från detta sovrum nås även lägenhetens mysiga balkong. Sovrummet har goda förvaringsmöjligheter i en rymlig platsbyggd garderob.
Det andra sovrummet har även det plats för dubbelsäng men passar även perfekt som barn-, arbets- eller gästrum. Ett stort fönster med djupa nischer bidrar till ett underbart ljusinsläpp. Sovrummet bjuder på goda förvaringsmöjligheter både vid fönstret där det finns platsbyggd förvaring med två lådor samt i flertalet garderober. Målade väggar i grått.
Badrummet är renoverat 2022, fackmannamässigt utfört och certifikat finns. Badrummet är helkaklat med klinker och kakel i olika nyanser av grått. Inredningen består av vägghängd wc, handfat med kommod, spegelskåp, handdukstork samt dusch med taksil och vikbara väggar. I badrummet finns även behaglig golvvärme.

