Välkommen till

Stora Nygatan 9

Stora Nygatan 9
3:a Inom Vallgraven

Spatiös våning med vacker utsikt över Vallgraven

Storslagen våning uppförd 1850 med högresta fönster med djupa nischer i mörk marmor, stuckaturer samt generös takhöjd. Spatiösa och fantastiska ytor som enkelt går att göra till en fyra. Här bor ni med ett insynsskyddat läge och underbar utsikt mot grönskade Trägårdföreningen samt Vallgraven. De rymliga vardagsrummet har generöst ljusinsläpp tack vare de stora fönsterpartierna samt utgången till den soliga balkongen. Generösa sällskapsytor, rymligt kök med given plats för stor matgrupp, två stora sovrum samt gäst-wc och helkaklat badrum med bastu och tvättpelare. Här bor du på första parkett med allt du kan önska dig inom ett bekvämt räckhåll!

Tack vare ett tidigare kapitaltillskott har lägenheten en betydligt mycket lägre månadsavgift än de andra lägenheterna i föreningen i samma storlek.

Läs hela beskrivningen
Johan
ansvarig mäklare
Johan Gille
Fastighetsmäklare & Senior Partner
0704-55 22 70 johan.gille@lundin.se
Lundin Innerstaden

Med oss får du en lokal, heltäckande och modern mäklartjänst med stort personligt engagemang. Läs mer här.

Johan
ansvarig mäklare
Johan Gille
Fastighetsmäklare & Senior Partner
0704-55 22 70 johan.gille@lundin.se
Lundin Innerstaden

Med oss får du en lokal, heltäckande och modern mäklartjänst med stort personligt engagemang. Läs mer här.

Bilder

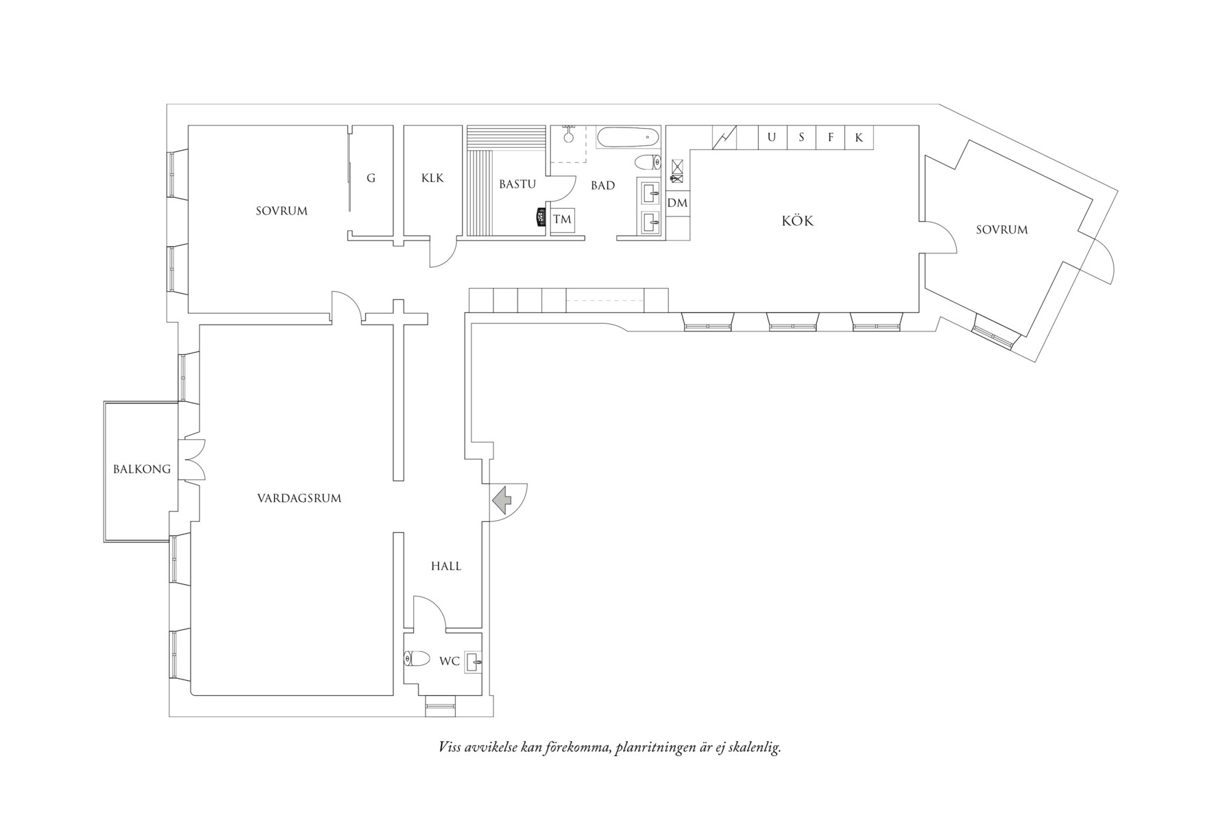
Planritning

Beskrivning

Bostaden disponeras enligt följande:

Innanför ytterdörren möts man av en entré med plats för fri avhängning. Redan vid entrén kan man blicka in mot de generösa sällskapsytorna. Entrén mynnar ut i en möblerbar korridorhall som leder vidare i bostaden. Golven kläs av enstavsparkett och väggarna har ljusa tapeter.

Spatiöst vardagsrum som bjuder in till sociala tillställningar för vänner och familj där inredningsmöjligheterna är oändliga. Rummet präglas av vacker fiskbensparkett, djupa fönsternischer och välbevarade takrosetter. Fint ljusflöde tack vare flertalet höga fönster och utgången till den soliga balkongen. Underbart läge med utsikt över den grönskande Trädgårdsföreningen och den stilla Vallgraven.

Stort sällskapskök med gott om förvaring, generösa arbetsytor och utrymme för stor matplats. Härligt ljusinsläpp från tre stora fönster i lugnt gårdsläge. Köksinredning i trä kombineras med bänkskiva i mörk sten och stänkskydd i ljust kakel. Utrustningen består av spishäll, fläkt, inbyggnadsugn, mikro, integrerad diskmaskin samt integrerad kyl och frys i fullhöjd. Golvet kläs av samma enstavsparkett som hall och väggarna är målade i vitt.

Master bedroom är väl tilltaget med vackra stuckaturer och ljusinsläppet är generöst från två stora fönster. Här ryms med lätthet såväl dubbelsäng med tillhörande sängbord som kontorshörna. Förvaringsmöjligheterna är goda i en stor skjutdörrsgarderob. På golvet ligger trestavsparkett och väggarna har ljusa tapeter.

Innanför köket nås bostadens andra sovrum som har en separat entré. Här ryms dubbelsäng med tillhörande möblemang och förvaring finner ni i flertalet garderober. På golvet ligger trestavsparkett och väggarna har ljusa tapeter.

Stort helkaklat badrum med sandfärgat klinkergolv och helkaklade väggar i ljus kakel. Inredningen består av wc, handfatskommod, spegel med belysning, tvättpelare, badkar samt dusch med vikbara väggar. Här finner du även en mysig bastu för vinterhalvårets kalla kvällar.

Till sist erbjuder bostaden en gästtoalett som har sandfärgat klinkergolv och helkaklade väggar i ljust kakel. Inredningen består av wc, handfatskommod och spegel med belysning.

Beskrivning planlösning
Ekonomi
Bostad
Förening
Området
Inom Vallgraven
Inom Vallgraven är stadsdelen där Göteborgs kärna och stadens vagga är belägna. På 1600-talet drog kung Gustav II Adolf igång det stora kanalbyggandet. Idag är många kanaler igenlagda men de som finns kvar är mycket betydelsefulla för stadsdelens utseende. Bebyggelsen inom vallgraven är idag en spännande blandning av historiska byggnader och toppmodern arkitektur.

För den som bor här ligger allt nära till hands. Mataffärer, vårdmottagningar, apotek och träningsställen finns alldeles inpå knuten. Stadsdelen har ett av stadens största utbud av shopping, kaféer, restauranger och nöjesställen. Magasinsgatan, kvarteren runt Domkyrkan, och Hamngatorna är några av alla shoppingstråk.

För barnfamiljen finns förskolor, grundskolor och gymnasier att välja mellan. För studenten finns Sociala Huset som inhyser Pedagogen, och flera av universitetets andra institutioner ligger i intilliggande Vasastaden. Majoriteten av stadens spårvagns- och busslinjer går igenom stadsdelen, vilket gör det mycket lätt att förflytta sig.

Sköna oaser finner man här och var, exempelvis i Kronhusparken, Kungsparken och i anrika Trädgårdsföreningen med Palmhuset, Rosencaféet och Trägår’n. Nere vid Lilla Bommen ligger Göteborgs gästhamn och Göteborgsoperan. Utmed kajerna på södra älvstranden växer ett nytt rekreationsområde fram. Uppe på Kungshöjd får man en härlig utsikt över hamnen och skärgården utanför.

Inom Vallgraven inbjuder till ett bekvämt boende i klassisk Göteborgsmiljö.
Här finns alla förutsättningar att trivas!
Karta
Kartan laddas