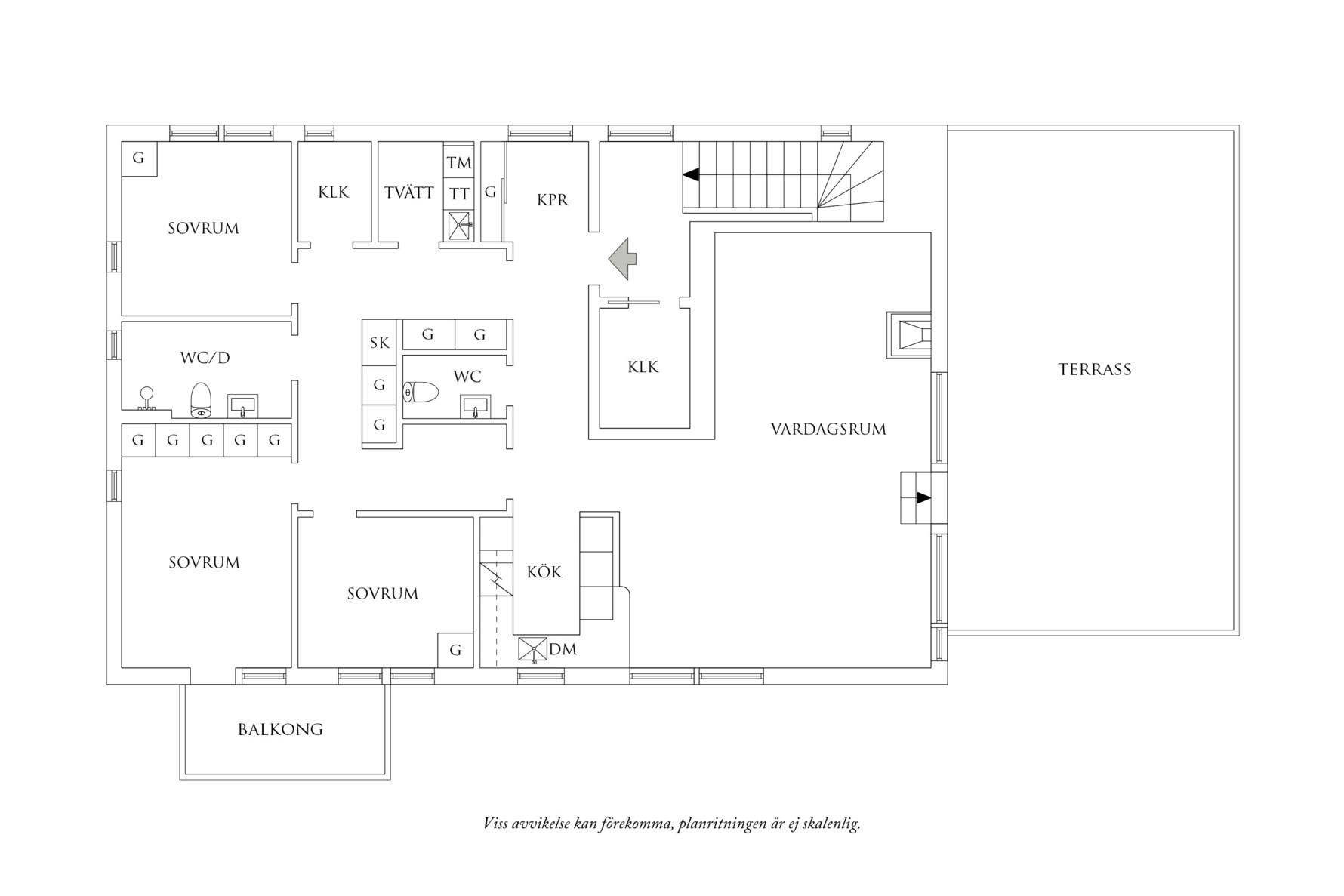
Lägenheten disponeras enligt följande:
Innanför ytterdörren möts ni av en hall med plats för fri avhängning samt goda förvaringsmöjligheter i en skjutdörrsgarderob. Innanför hallen möts ni av ett kapprum som erbjuder ännu mer förvaring. Bostaden har genomgående parkettgolv i ek och väggarna är målade i vitt.
Rymligt vardagsrum i gavelläge med fantastiskt ljusinsläpp från flertalet stora fönster och utgången till terrassen. Fantastisk terrass om ca 50 kvm i sydväst läge med plats för alla önskade möbleringsalternativ. Vardagsrummet erbjuder även flertalet olika möbleringsalternativ med plats för både en soffgrupp och ett stort matsalsbord. Här finns även en mysig braskamin för de kyligare dagarna.
Modernt kök renoverat 2023 från Marbodal. Köket har inredning i en mörkgrå färg tillsammans med svarta beslag samt bänkskiva och stänkskydd i laminat. Samtliga vitvaror är från Siemens och utgörs av induktionshäll, frånluftsfläkt, inbyggd varmluftsugn, inbyggnadsmikro, integrerad diskmaskin samt integrerad kyl med frys.
Bostaden erbjuder tre sovrum varav det största sovrummet, även kallat Master bedroom, kan inredas med en dubbelsäng samt tillhörande möblemang. Här finns goda förvaringsmöjligheter i flertalet garderober som sträcker sig längs ena väggen. Från detta sovrum når ni bostadens balkong. Balkongen ligger i västerläge och kan inredas med en mindre loungegrupp.
De två övriga sovrummen kan inredas med en enkelsäng samt övrigt möblemang. Båda rummen har trevligt ljusinsläpp från stora fönster, varav det ena ligger i ett trevligt gavelläge.
Stilfullt badrum med klinker i en ljusblå färg och vitt kakel på väggarna. Inredningen består av wc, handfatskommod, spegelskåp, handdukstork, högskåp samt dusch med glasvägg. Badrummet har även underliggande behaglig golvvärme.
Bostadens erbjuder dessutom en gäst-wc. På golvet ligger klinker i en ljusblå färg och väggarna kläs av vitt kakel. Inredningen består av wc, handfatskommod och spegelskåp
Slutligen har vi bostadens tvättstuga. Här finns tvättmaskin och torktumlare från Siemens samt ett handfat för att underlätta vardagssysslorna.

