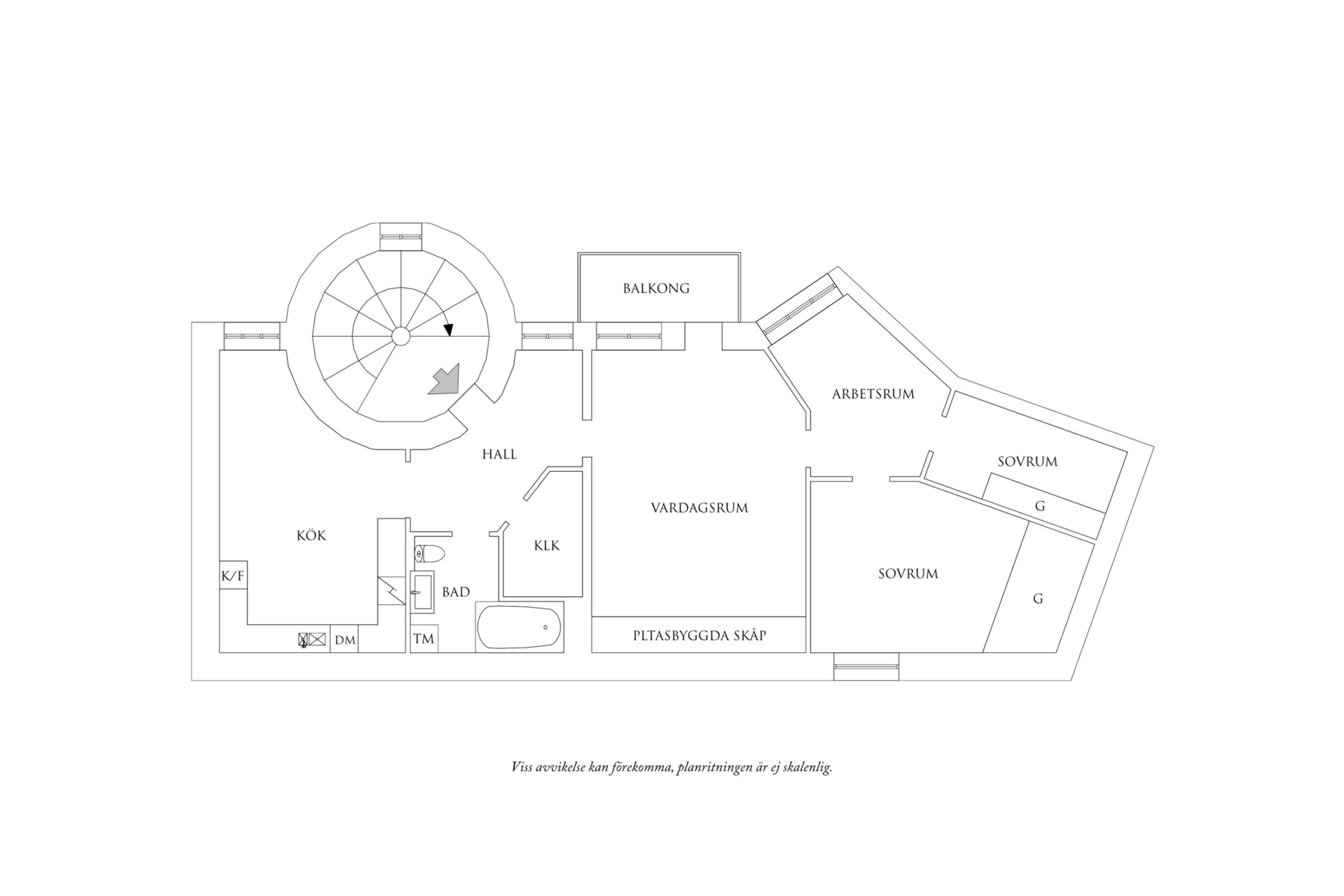
Bostadens yta disponeras enligt följande:
Hall
Med lätta steg går vi ett par trappor upp, behagligt belägen på andra våningen välkomnas vi in i en rymlig hall med plats för ytterkläder och skor. Generösa förvaringsmöjligheter lämnas via en rejäl klädkammare.
Golv: Schackrutigt linoleumgolv.
Väggar: Målade år 2021, 015 Emilia White – Alcro.
Kök
Det är sällan man ser så väl tilltagna kök i dessa gamla hus, ett matbord för ett större sällskap ryms med enkelhet och det finns gott om både arbetsyta och porslinsförvaring. Ett tidlöst kök med släta vita skåpsluckor med frästa greppshandtag, massiv ekbänkskiva och vita kakelplattor med fasade kanter.
Den maskinella utrustningen består av: Induktionshäll, frånluftsfläkt, inbyggd varmluftsugn, mikrovågsugn, integrerad diskmaskin och integrerad kyl samt frys.
Golv: Vitbetsat ekgolv (2020).
Väggar inklusive frilagt tegel mot trapphuset: Målade år 2021, 015 Emilia White – Alcro.
Vardagsrum
Högt i tak, tidsenliga stuckaturer, lister och klassisk takrosett. Fina platsbyggda bänkskåp och flertalet möbleringsalternativ med utrymme för både matgrupp och soffgrupp.
Golv: Vitlackerade (2020) brädgolv i original, ny trappa mot arbetsrum 2021.
Väggar: Målade år 2021, 015 Emilia White – Alcro.
Balkong
Med access från vardagsrummet, precis som man vill ha det. Via helglasade pardörrar, södervänd mot gården och väl tilltagen med plats för möbler, växter och grill.
Arbetsrum
Från vardagsrummet leder två trappsteg upp till en privat del med inre hall och två sovrum. Den inre hallen kallar vi för arbetsrum eftersom det är precis så det används idag, med plats för skrivbord och bokhyllor.
Golv: Vitlackerade (2020) brädgolv i original.
Väggar: Målade år 2021, 015 Emilia White – Alcro.
Sovrum
Knäpptyst beläget sover vi gott om natten. Kontrasten är väl påtaglig trots det centrala läget, helt ostört från stadens brus. Sovrummet rymmer en dubbelsäng med tillhörande möblemang, mängder med förvaringsmöjligheter lämnas via platsbyggda garderober som enhetligt målats in i samma kulör som väggar och listverk. Ljuvliga stuckaturer finner vi även här.
Golv: Lackerade ljusgrå (2020) brädgolv i original.
Väggar: Målade år 2021, 015 Emilia White – Alcro.
Sovrum
Det mindre sovrummet nyttjas idag som gästrum/klädkammare och är precis lagom stort för ändamålet, eller som barnkammare. Klädförvaringen tas om hand via en platsbyggd skjutdörrsgarderob inredd med Elfa-system.
Golv: Lackerade ljusgrå (2020) brädgolv i original.
Väggar: Målade år 2021, 015 Emilia White – Alcro.
Badrum
Klassiskt badrum som nås via hallen med kaklade väggar i vitt och svart och golv belagt med klinker med underliggande komfortvärme. Utrustat med vägghängd wc, handfat med kommod, spegel, badrumsskåp, handukstork, tvättmaskin och torktumlare (Bosch, 2020) samt badkar för avkopplande stunder.

