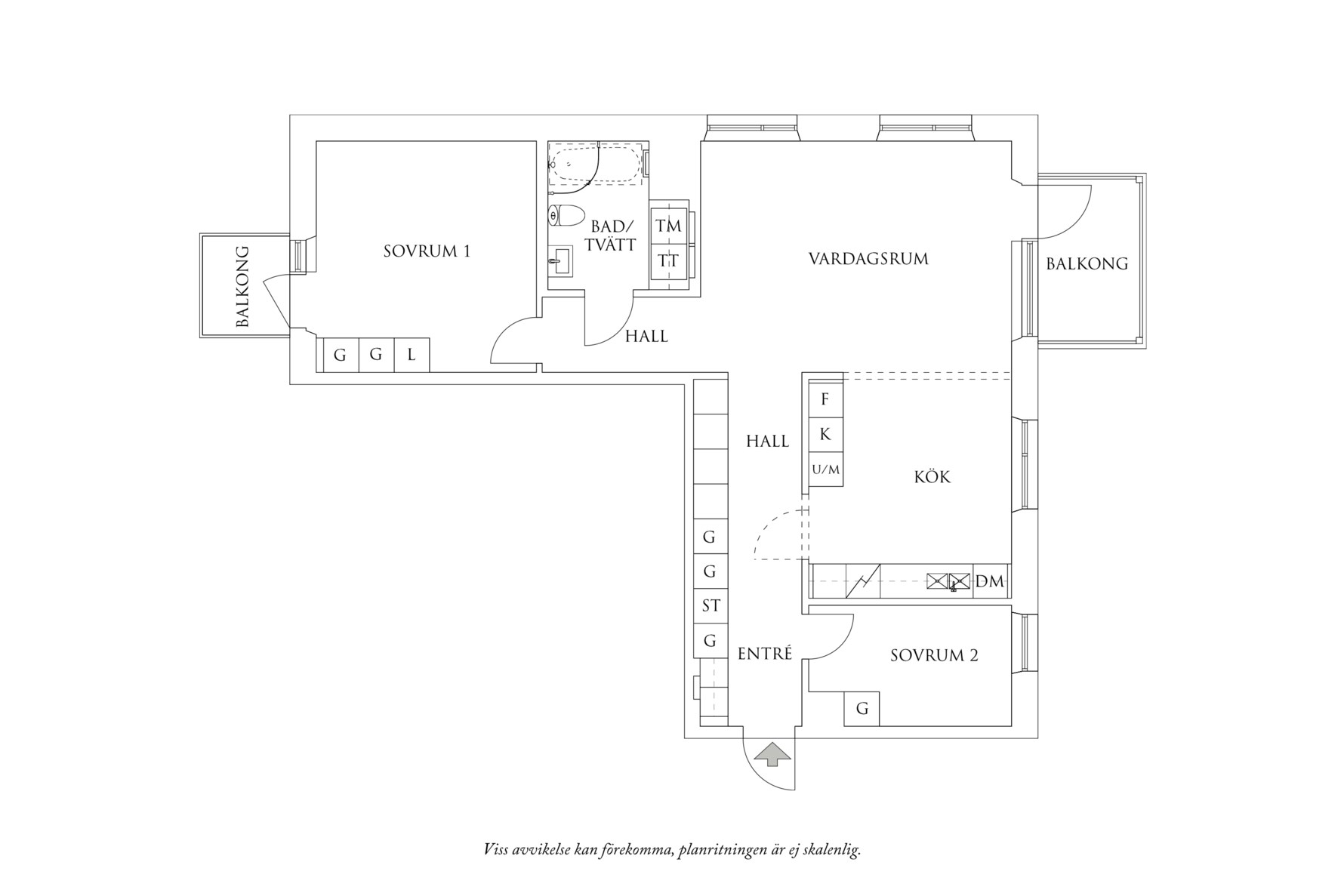
Innanför ytterdörren möts man av en hall som erbjuder plats för fri avhängning samt goda förvaringsmöjligheter i flera platsbyggda garderober. Lägenheten har genomgående vitpigmenterad mattlackad trestavsparkett i ek och krispigt vita väggar i nyansen NCS S0500-N som skapar en neutral bas. Alla rum har vita eluttag och strömbrytare med dimmer.
Lägenhetens sällskapsytor har ett härligt gavelläge med ljusinsläpp från fönster i två väderstreck och utgång till en av balkongerna som är inglasad. Åt ena hållet har fönstren utsikt över hustaken med Karlatornet i blickfånget och de andra fönstren samt balkongen vetter mot gården. Den öppna planlösningen mellan kök och vardagsrum bjuder in till social samvaro och gemenskap med gott om plats för en större soffgrupp med tillhörande möblemang och matsalsbord.
Köket har köksinredning i en varmgrå ton med mässingshandtag, bänkskiva i blankpolerad kompositsten Oyster och stänkskydd i vitt liggande kakel i halvförband. Under överskåpen sitter infällda dimbara spotlights. Kvalitativa vitvaror som utgörs av induktionshäll, integrerad fläkt, inbyggnadsugn i svart/rostfritt, inbyggnadsmikro i svart/rostfritt, integrerad diskmaskin samt rostfri kyl och frys i fullhöjd.
Lägenhetens största sovrum har utgång till den andra balkongen som ligger i västerläge med utsikt mot hamninloppet och Älvsborgsbron. Här finns gott om utrymme för dubbelsäng med tillhörande sängbord samt förvaringsmöjligheter i tre garderober.
Det mindre sovrummet ligger direkt vid entrén. Här kan man inreda med enkelsäng och förvaringsmöjligheter finns i en garderob.
Stort helkaklat badrum med vitt blankt kakel och grå klinker med underliggande elburen komfortvärme. Inredningen består av vägghängd wc, handfatskommod i mellangrått, spegelskåp, handdukstork, rymlig duschhörna med raka vikväggar i klarglas samt både handdusch och taksil. I badrummet finns även en tvättavdelning med tvättmaskin och torktumlare från Electrolux, ovanliggande arbetsbänk som belyses av LED-skena samt två förvaringsskåp i mellangrått. I taket sitter infällda dimbara spotlights.
Det nya området Fixfabriken har ett attraktivt läge mellan Sandarna, Klippan och Kungsladugård. Här planeras totalt cirka 500 nya bostäder i fyra kvarter. Här skapar en ny plats där man kan verka, leva och bo. För över 60 år sedan flyttade AB Fixfabriken in på Bruksgatan och under många år var Fix neonskylt ett landmärke för stadsdelen. För att bevara historien från platsen kommer delar av fabriken att tas om hand, rustas upp och bli en del av det nya bostadsområdet. Här befinner ni er i skärningspunkten mellan hav och stad. Närhet till salta bad, shopping i centrum, nybakat bröd på stans bästa surdegsbageri Cum Pane eller en lugn stund i Sannaparken. Tar man sig istället ner mot havet och Klippan kan du njuta av en god middag på restaurang Sjömagasinet eller besöka kulturhuset Röda Sten. Området har även goda kommunikationer. Med spårvagn tar man sig enkelt och snabbt in till centrala Göteborg eller till salta bad vid Saltholmens klippor.

