Lägenheten disponeras enligt följande:
Bostaden nås via trappan från entréplan och väl där möts ni av en möblerbar hall.
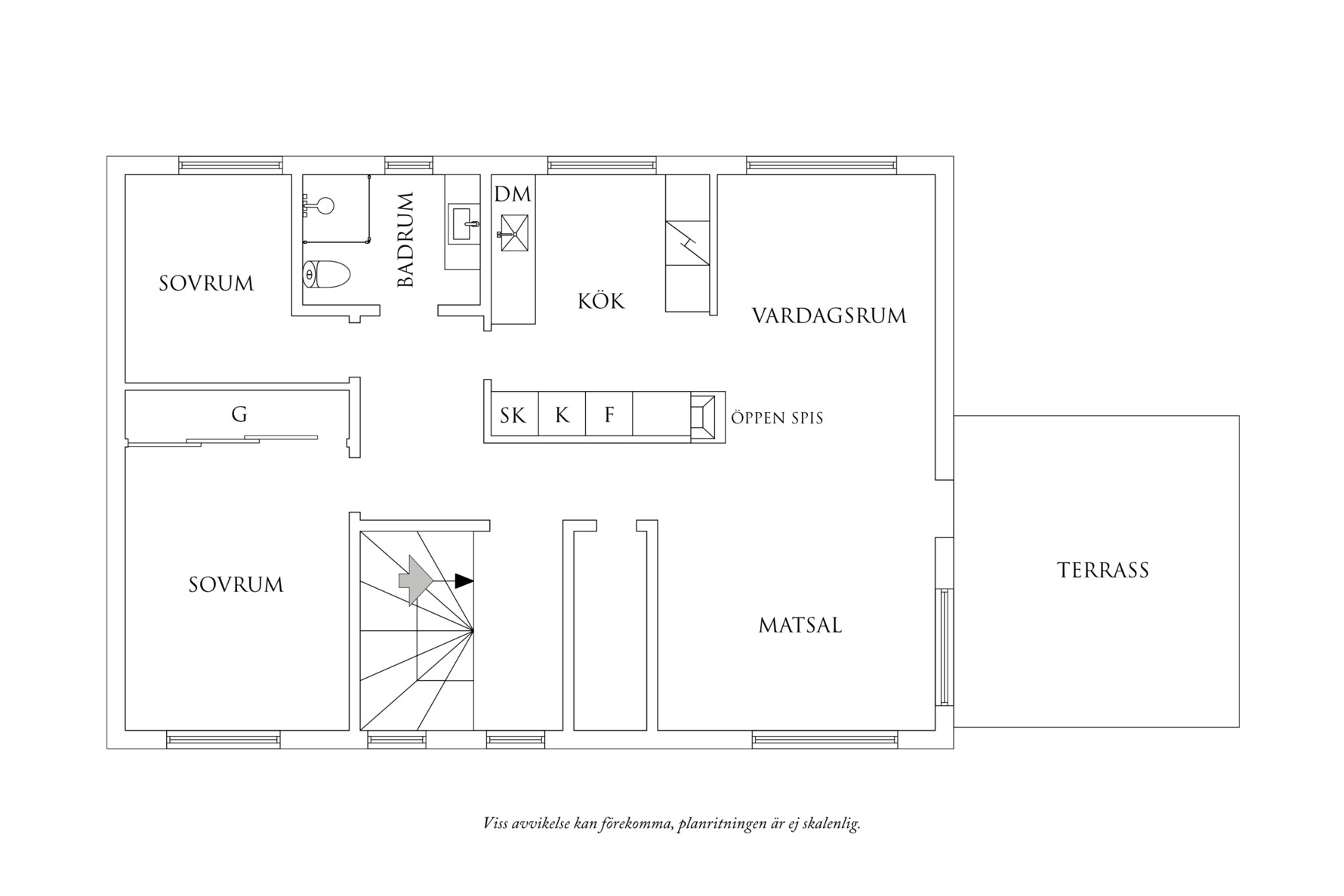
Vidare in i lägenheten öppnar sig ett härligt vardagsrum som får ett fint ljusinsläpp från fönster i tre väderstreck. Från vardagsrummet nås bostaden stora altan om ca 16 kvm med vacker utsikt över Skår. Altanen har söderläge och erbjuder sol större delen av dagen. Vardagsrummet är rymligt och kan inredas med både soffa och matsalsbord. Rummet stoltserar med nylagd fiskbensparkett och nyinsatt vacker öppen spis. Ytskikten är nygjorda och har givits stor omsorg. Fönstren förseddes 2021 med exklusiva persienner från Luxaflex som går att reglera efter önskat solskydd
Köket erbjuder generösa arbetsytor och goda förvaringsmöjligheter. Kvik köksinredning i vitt tillsammans med bänkytor i vitoljad ek och stänkskydd i grönt kakel. Köket är utrustat med induktionshäll, fläkt (Gorenje), ugn (Siemens), integrerad diskmaskin (Neff) samt kyl och frys i full höjd (Siemens). På golvet ligger grått klinkergolv och ett stort fönsterparti bidrar med fint ljusinsläpp.
Lägenhetens största sovrum har plats för dubbelsäng alternativt säng och arbetshörna. Längs ena väggen finns gott om förvaring i en stor skjutdörrsgarderob från Ballingslöv. Även här pryds golvet av vacker fiskbensparkett och väggarna är vitmålade.
Det andra rummet kan antingen användas som sovrum alternativt arbetsrum. Här finns goda förvaringsmöjligheter med garderober längs ena väggen. Ett stort fönster bidrar med ljusinsläpp. På golvet ligger ekparkett och väggarna är målade i en grå ton.
Helkaklat badrum med vitt kakel på väggarna och grått klinkergolv. Inredningen består av wc, handfat med kommod, spegel med belysning, samt dusch med vikbara glasväggar. Golvet har behaglig golvvärme och ett fönster bidrar med dagsljus och vädringsmöjlighet.

