Läget är fenomenalt och omgivningarna har allt du kan önska. Kanske är det just kombinationen av det pulserande nöjeslivet och närheten till Slottsskogen och Botaniska som gjort Linnéstaden till en av Göteborgs mest attraktiva stadsdelar? Det är svårt att sätta fingret på vad det är som gör stämningen här så oerhört gemytlig. Kanske är det den sköna blandningen av caféer, krogar och små butiker som gör att det alltid är liv och rörelse på gatan. I kombination med den starka kvarterskänslan och närheten till Slottsskogens grönska för rekreation och lugn.
Dessutom befinner vi oss nära expansiva Masthuggskajen med internationella intryck som kommer binda ihop staden med vattnet. En plats full av kontraster mellan gammalt och nytt, storslaget och småskaligt, högt och lågt, globalt och lokalt, av affärer, gatuliv och möten. En plats där det är lätt att leva!
Som om inte detta vore nog är detta hem beläget i en trivsam förening med ekonomi i god balans och en fastighet i absolut toppskick!
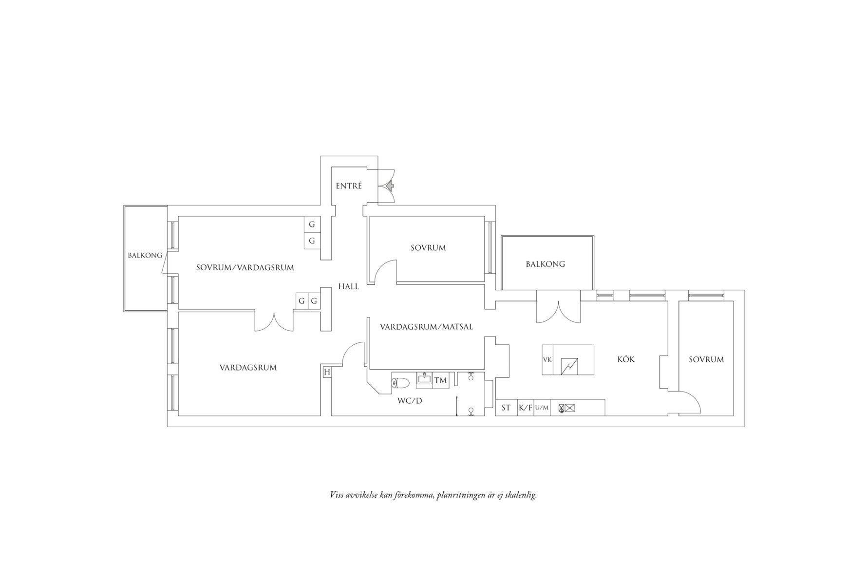
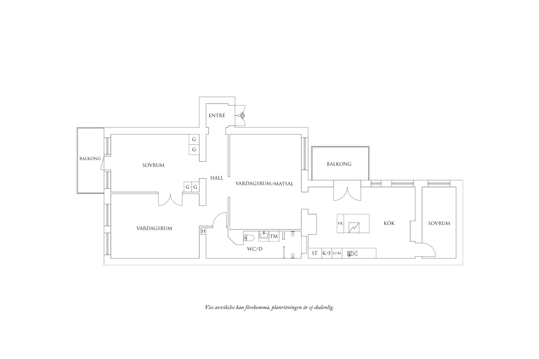
Bostadens yta disponeras enligt följande:
Hall
Redan i trappan på väg upp förstår vi att detta är ett välbevarat vackert hus från förra seklet. Tidstypiska smidesräcken leder upp till två massiva pardörrar med glasade partier, spröjs och profilerade snickerier. Vi välkomnas in i entréhall i perfekt storlek för jackavhängning och skor, två garderober och plats för tamburmajor och skor. Den inre hallen leder oss sedan vidare, som binder samman delar av bostaden med ingång till sovrum, vardagsrum, badrum och matsal.
Golv: Klinker från Marrakech i naturnära toner intill entrén, ljusbehandlade brädgolv i inre hall.
Väggar: Målade, Stockholmsvit (S0502-Y).
Sovrum
Direkt till höger från hallen nås rummet som idag disponeras som master bedroom, ett stort rum som fullkomligt badar i ljus. Fönsterpartier med överljus, spröjs och access ut mot bostadens ena balkong. Sovrummet rymmer gott och väl en dubbelsäng med tillhörande möblemang och gott om förvaring lämnas via fyra garderober. I rummets ena hörn fanns en gång en kakelugn och rökkanalerna finns kvar, i samråd och med godkännande av styrelsen finns möjlighet att sätta in en ny.
Golv: Ljusbehandlade brädgolv.
Väggar: Målade, Jotun - 10679 Washed Linen (2303-Y14R).
Balkong
Södervänd smidesbalkong mot Plantagegatan och stadsbilden. Härifrån kan man följa hur södersolen förflyttar sig mot väst och hur fasaden på Oscar Fredriks kyrka skiftar i färg beroende på solens styrka. Det höga läget och öppningen mot väster borgar för många härliga soltimmar.
Vardagsrum
Klassiskt i fil, med höga pardörrar emellan avskiljs rummet från master bedroom. Två stora fönsterpartier med överljus i söderläge, renoverade med original karaktär. Stuckatur, takrosett och höga fotlister. Ett rum med flertalet möbleringsalternativ och plats för soffgrupp, fåtöljer och bokhyllor. Bostadens "runtgående" planlösning ger en skön struktur som gör att man har ett härligt flöde mellan rummen. Även här finns möjlighet att sätta i en ny kakelugn eller en braskamin.
Golv: Ljusbehandlade brädgolv.
Väggar: Målade, Jotun - 0394 Varmgrå (3504-Y19R).
Allrum/Matsal
Detta pampiga och luftiga rum nyttjas idag som matsal och rymmer ett bord för hela kalassällskapet. Färgsättningen känns helrätt och framhäver alla vackra originaldetaljer. Rummet är stort nog för att kunna delas av genom att sätta upp en vägg och således få ytterligare ett fullgott sovrum.
Golv: Ljusbehandlade brädgolv.
Väggar: Målade, Jotun - 8302 Lagerträd (S3010-G70Y).
Kök
Totalrenoverat år 2022 enligt estetikens alla regler med fokus på socialt umgänge och matlagning på hög nivå. Tidlösa, ljusgrå profilerade skåpsluckor, granitbänkskivor med ovansittande vita kakelplattor med fasade kanter och infällda, dimmerbara downlights.
En stor köksö som erbjuder goda arbetsytor och ett par sittplatser. Integrerad vinkyl, induktionshäll (Siemens) och köksfläkt (Lux/whirlpool). Inbyggd ugn och mikrovågsugn i ergonomisk höjd (Siemens), integrerad diskmaskin (Blomberg) och integrerad kyl samt frys (Ikea). Ett ordentligt matbord har sin naturliga plats invid fönstret med vy över gården.
Golv: Ljusbehandlade brädgolv.
Väggar: Målade, Stockholmsvit (S0502-Y).
Balkong
Från köket, via helglasade pardörrar nås bostadens andra balkong. Denna belägen mot väster och den lugna gården.
Sovrum
Intill köket nås ytterligare ett sovrum. En del av det före detta pigtrapphuset som år 2022 integrerades i bostaden. I god storlek med plats för säng och tillhörande möblemang, läshörna och skrivbord.
Golv: Ljusbehandlat brädgolv.
Väggar: Målade, Jotun - 10679 Washed Linen (2303-Y14R).
Badrum
Smakfullt, stort och påkostat badrum renoverat till perfektion år 2020 (våtrumsintyg finns). Helkaklade väggar i vitt och golv belagt med grön- marmorliknande klinker med underliggande komfortvärme. Utrustat med vägghängd wc, handfat på Carramarmorskiva och mörkgrön kommod, spegelskåp, kombinerad tvättmaskin/torktumlare (Samsung, 2020), handdukstork samt två lyxiga duschar mittemot varandra skyddade med kaklad halvvägg och glas. I taket sitter infällda dimmerbara spotlights.

