Lundin Köparregister
Vi hittar din bostad
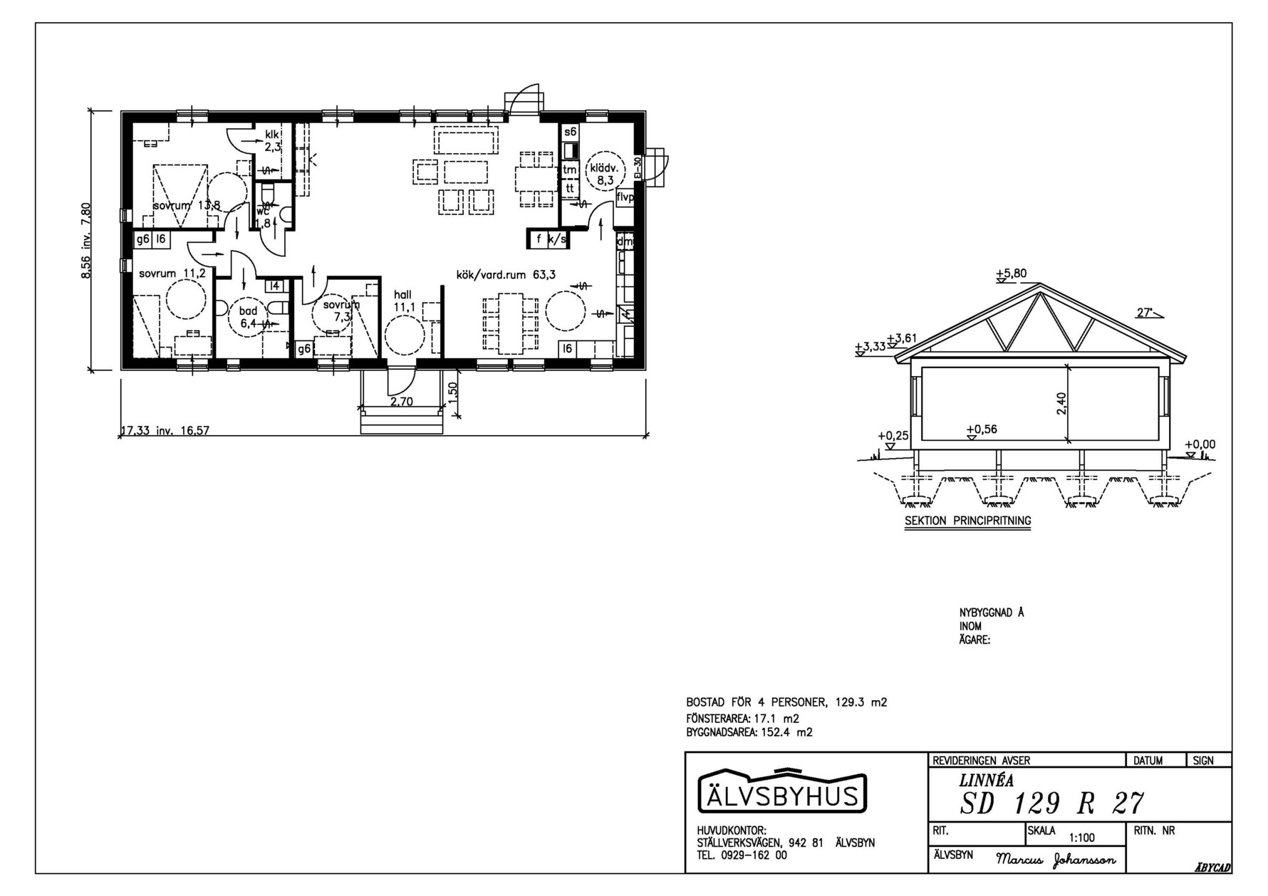
Nu har ni chansen att förvärva en tomt och bygga ert drömhus precis så som ni vill ha det på populära Trädgårdsängen. Husmodellen vi har tagit fram tillsammans med Älvsbyhus heter Linnéa och är ett stort och luftigt enplanshus med tre sovrum som standard. För dig som gärna bjuder hem folk och som ser kök och vardagsrum som husets hjärta, är det här ett givet val. Här är sovrummen strategiskt placerade i ena änden av huset, liksom de två toaletterna.
Önskar du ytterligare ett sovrum placeras det i anslutning till övriga sovrum.
Drömmer du om att flytta ut middagarna på sommaren smälter vardagsrum och altan ihop extra fint med helglasad balkongdörr och låga fönster som tillval. Tänk sommarkalas med uppsikt över barnen från soffan. Extra livsnjutarpoäng får du med tillvalet dusch även i den mindre toaletten. Och hur bra är inte groventré smidigt placerad i den rymliga tvättstugan.
Här bor ni mitt i hjärtat av Angered med en känsla av svensk småstadsidyll. Här finns allt från livsmedelsaffärer och klädbutiker till vårdcentral, förskola/skola, bibliotek och en livlig torghandel. På torget ligger även Blå Stället som är ett kulturellt centrum med teater, biograf, sim - och ishall samt andra fritidsaktiviteter. Angered har naturen inpå knuten och här är det nära till både bad, fiske, svampplockning och friluftsliv i naturreservatet Vättlefjäll med sin orörda natur. Här bor ni med närhet till goda kommunikationer samt vardaglig bekvämlighet med närliggande butiker. Goda kommunikationer finns i området och vid Angereds torg finns såväl buss som spårvagn med ett flertal linjer. Här finns människor, kunskaper och kultur från hela världen vilket gör det till ett levande och uppskattat bostadsområde.
Husmodellen vi presenterar är ett förslag och du har möjlighet att välja fritt bland Älvsbyhus olika modeller så länge detaljplanen godkänner. Byggrätten tillåter en byggnadsyta om 150 kvm och en nockhöjd upp till 7,5 meter. Separat byggnad om 40 kvm. Se huskalkyl under "Dokument och länkar". Tomten säljs separat och är inte bunden till någon husleverantör.
Kontaktperson på Älvsbyhus:
Emelie Hamnes
Mail: Emelie.hamnes@alvsbyhus.se
Tel: 072 973 03 95
Länk till hus Linnéa: https://www.alvsbyhus.se/vara-hus/1-planshus/linnea/
Övrig information
VA:
Anslutningskostnaden för vatten och avlopp är preliminär och är beräknad enligt 2022 års VA-taxa, se separat dokument.
Fastighetsskatt:
För obebyggd tomt betalas statlig fastighetsskatt med f n 1,0 procent av taxeringsvärdet. Först när ett nyuppfört småhus är färdigställt och har fått ett värdeår vid fastighetstaxeringen, övergår småhuset och tillhörande tomtmark till systemet med kommunal fastighetsavgift. Småhus nybyggda 2012 och därefter (värdeår 2012 och senare) har f n hel befrielse från kommunal fastighetsavgift i 15 år.
Detaljplan:
Detaljplanen finns uppladdad under "Dokument och länkar". Nybyggnadskarta finns att tillgå.

Med oss får du en lokal, heltäckande och modern mäklartjänst med stort personligt engagemang. Läs mer här.

Med oss får du en lokal, heltäckande och modern mäklartjänst med stort personligt engagemang. Läs mer här.