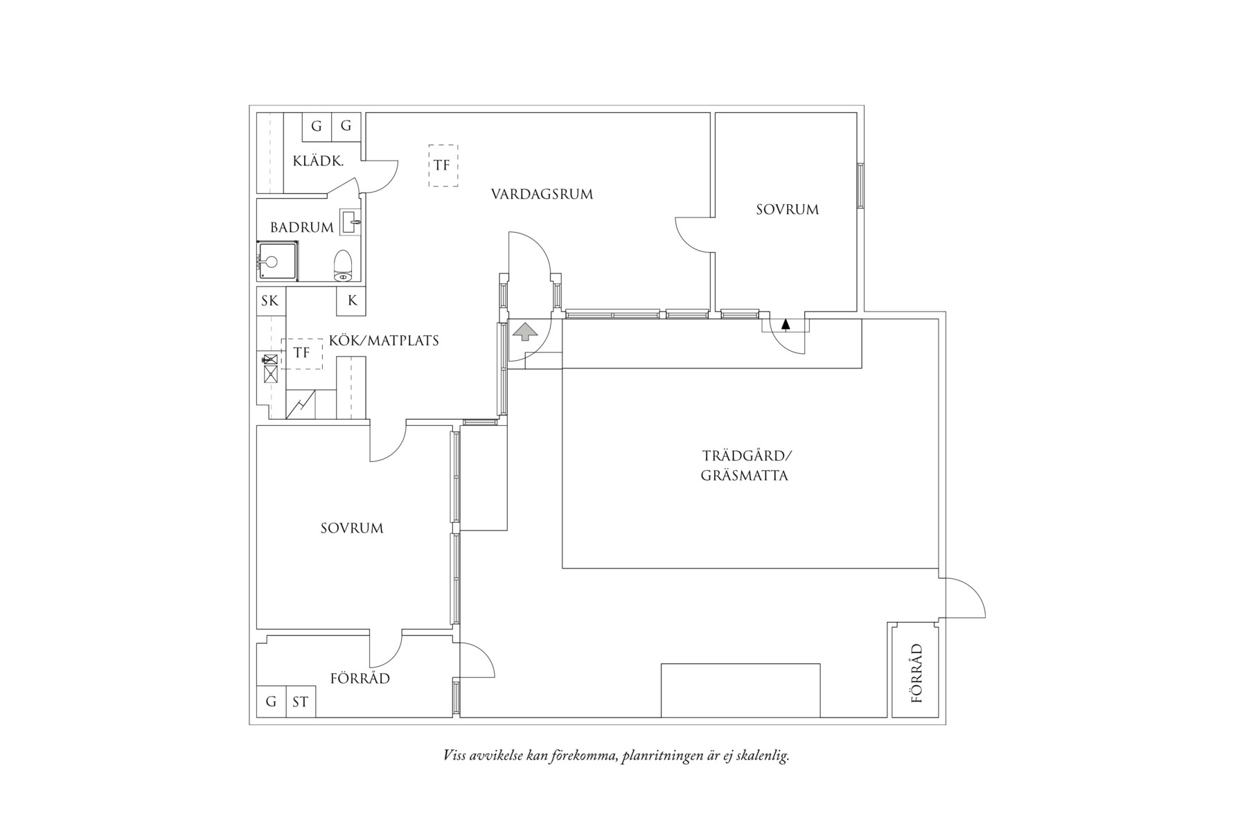
Bostaden disponeras enligt följande:
Detta rymliga enplansradhus med gavelläge erbjuder en bekväm och avkopplande livsstil. Beläget i det gröna området Kortedala har du en fantastisk möjlighet att leva nära naturen samtidigt som du har närhet till stadens bekvämligheter. Här har du möjligheten att sätta din egen prägel på bostaden då den är i behov av viss renovering och underhåll.
Välkomnande entrén leder dig in i bostadens rymliga vardagsrum. Här möts du av fint ljusinsläpp och en trevlig atmosfär som genomsyrar hela bostaden.
Det stora vardagsrummet utgör hjärtat av hemmet och erbjuder generöst med utrymme för både vardagliga aktiviteter och sociala sammankomster. De stora fönstren släpper in mycket naturligt ljus och ger en vacker utsikt över den angränsande atriumgården.
Bostaden har ett äldre kök som erbjuder gott om förvaringsutrymme och arbetsyta. Här har du möjligheten att skapa ditt drömkök efter dina egna preferenser och behov.
Bostaden har två rymliga sovrum, och det finns även möjlighet att inreda ett tredje sovrum om så önskas. Sovrummen är ljusa och trivsamma, perfekta för avkoppling och vila.
Badrummet nås från vardagsrummet och är utrustat med de grundläggande bekvämligheterna. Detta område kan uppgraderas för att passa dina personliga behov.
Den stora, fina atriumgården är en oas av grönska och privatliv. Här kan du njuta av utomhusmöbler och skapa din egen lilla blomsterträdgård. Det är en plats att koppla av och umgås med vänner och familj.
Radhuset har möjlighet att hyra både parkeringsplats och garageplats via samfälligheten, vilket gör det bekvämt och enkelt att parkera din bil. Endast 20 minuter från centrala Göteborg har du nära till stadens shopping, restauranger och nöjen. Det här är din chans att förvärva en bostad med stor potential i en vacker naturskön miljö. Med lite kärlek och omsorg kan du skapa ditt drömhem. Välkommen på visning!

