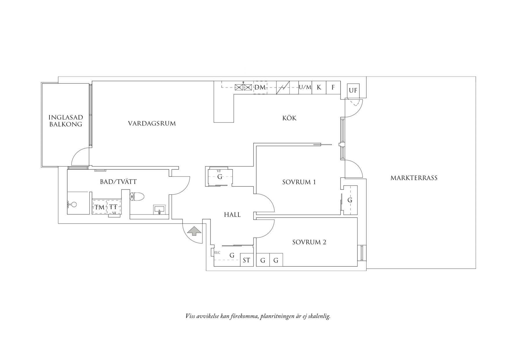
Innanför ytterdörren möts man av en möblerbar hall med plats för kapphylla samt goda förvaringsmöjligheter i två platsbyggda skjutdörrsgarderober som sträcker sig från golv till tak. Lägenheten har en generös takhöjd om ca 2,8 m som ger en känsla av rymd. Enhetliga materialval med genomgående ekparkett som har underliggande vattenburen golvvärme och väggarna är målade i vitt.
Generösa sällskapsytor i öppen planlösning med fint ljusinsläpp från stora fönsterpartier i två väderstreck som sträcker sig från golv till tak vilket ger ett exklusivt intryck och skapar kontakt mellan inne och ute. Sällskapsytorna kan möbleras med en generös soffgrupp samt ett matsalsbord för stora middagssällskap. Från vardagsrumsdelen har man utgång till en inglasad balkong mot nordväst med kvällssol.
Sobert kök med köksinredning i vitt från Marbodal som kombineras med bänkytor och kakel i stilfullt grått. Köket erbjuder generösa arbetsytor samt gott om förvaring då överskåpen sträcker sig ända upp till taket. Den maskinella utrustningen består av induktionshäll, integrerad fläkt, inbyggnadsugn med varmluftsfunktion, inbyggnadsmikro, integrerad diskmaskin samt integrerad kyl och frys i fullhöjd. Även i köket ryms en matplats för större middagssällskap. Härifrån har man utgång till en fantastisk markterrass i sydostläge som kan inredas med både loungemöbler, grill och större matplatsgrupp. Under sommarhalvåret och inte minst när den varma vårsolen tittar fram en oerhört stor potential för uteliv och social samvaro på hemmaplan, som en förlängning av den egna bostadsytan, med bekväm kontakt mellan ute och inne och med den anslutande naturen i sikte.
Lägenheten har två bra sovrum i lugnt gårdsläge som båda nås från hallen. Det största sovrummet har plats för en dubbelsäng tillsammans med sängbord och för klädförvaringen finns en inbyggd skjutdörrsgarderob som sträcker sig från golv till tak. Höga fönsterpartier med egen utgång till lägenhetens stora terrass.
Det mindre sovrummet har plats för enkelsäng och skrivbord och passar perfekt som barn-, gäst- eller arbetsrum. Förvaringsmöjligheter i två garderober. Fint ljusinsläpp från ett högt fönsterparti som sträcker sig från golv till tak.
Generöst tilltaget badrum som har antracitgrått klinkergolv med underliggande golvvärme och helkaklade väggar med vita stora kakelplattor. Badrummet är indelat i tre sektioner. Den första delen är inredd med vägghängd wc, handfatskommod, stor spegel med väl tilltagen avställningsyta i marmor nedtill samt spegelskåp. Den andra delen är en tvättsektion med tvättmaskin och torktumlare från Siemens med ovanliggande arbetsyta och överskåp samt handdukstork och längst in finner man en duschhörna som avgränsas med en glasdörr.
Bostadskomplement som förråd nås bekvämt från samma trapphus. Likaså förbindelse till garage där bilplats hyrs separat.
Området kring Örgryte Torp har otroligt mycket att erbjuda. Bakom bostadsområdet ligger natursköna området med slottsliknande Stora Torp med sin park i direkt anslutning till Delsjöskogen. Här kan man hämta kraft ur den vackra och grönskande miljön med en skogspromenad upp mot Delsjöarna. I närheten ligger Skatås friluftsområde, Vollyebollplan, GLTK, Nordic Wellness, Delsjö Golfklubb, Göteborgs Fältrittklubb och badplatserna vid Delsjön. Vintertid finns även en egen närliggande skidanläggning att njuta av. Bra kommunikationer in till stan erbjuds via femmans spårvagn som tar dig in till Avenyn på ca 10 minuter. Det finns dessutom fina gång- och cykelvägar hela vägen in till centrum. Focushuset vid Liseberg har all service man kan tänkas behöva såsom apotek, systembolag, frisör samt en av Göteborgs mest välsorterade matbutiker. På motsatt sida Delsjövägen ligger Bö centrum och i närheten ligger Ekmanska vårdcentral. I området finns två förskolor och det finns även ett flertal bra skolor; Skårsskolan, Kärralundsskolan, Gamla och Nya Lundenskolan samt Böskolan och Montessoriskolan Casa. Området är grönskande och rofyllt samtidigt som man tar sig snabbt ut på de stora lederna med bil.

